Bénéficiez des services de nos partenaires locaux soigneusement sélectionnés
pour vous accompagner dans votre parcours d'achat immobilier

Appartement 77m² à mainvilliers

— Mainvilliers 28300 —
149 000 €
78 m²
4 pièces
parking

Nos partenaires locaux
Bienvenue dans un appartement pensé pour votre confort !
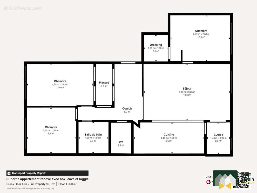
Entièrement rénové avec des matériaux de qualité, ce T4 vous séduira par sa luminosité, sa fonctionnalité, et ses finitions soignées. Sa superbe cuisine aménagée et équipée ainsi que les annexes attachées au logement (cave, cellier et box) en font un bien rare, prêt à vous accueillir sans aucun travaux. Profitez de notre visite virtuelle, pour découvrir cette opportunité à saisir.

Découvrez un appartement composé comme suit :
- Entrée avec placard
- Un séjour spacieux de 19 m², baigné de lumière
- Cuisine américaine aménagée et équipée
- Trois chambres confortables dont une avec dressing
- Une salle de bains moderne
- Un WC indépendant suspendu, avec lave-main
- Une loggia pour profiter des beaux jours été comme hiver
- Une cave privative de 3 m²
- Un box de stationnement

Côté confort :
- Appartement traversant exposé nord-sud
- 4ème et dernier étage (sans ascenseur)
- Chauffage collectif avec répartiteur individuel pour un confort optimal
- Fibre optique et internet haut débit disponibles
- En excellent état, habitable sans travaux

L'emplacement :
- Commodités accessibles à pied :
- Écoles (de la crèche au collège) à 10 min maximum
- Commerces et alimentation à 10 min
- Médecins généralistes à 5 min
- Bus au pied de la résidence
- Gare de Chartres à 15 min à pied
- Parcs et hôpital à moins de 5 min en voiture

À propos de la copropriété :
- Résidence bien tenue, avec parties communes en bon état et aucun travaux votés - DPE immeuble D.
- Les charges mensuelles intègrent des services complets, rarement inclus ailleurs :
- Chauffage collectif (40€/mois selon consommations réelles)
- Eau chaude et eau froide (30?€/mois selon consommations réelles)
- Entretien des parties communes
Un fonctionnement simple, qui évite les abonnements individuels et centralise les principaux postes de dépense.

N'hésitez pas à contacter votre agent au Noeud Pap' pour obtenir plus d'informations et visiter cet appartement !

Honoraires à la charge du vendeur. Dans une copropriété de 122 lots. Quote-part moyenne du budget prévisionnel 3 664 €/an. Aucune procédure n'est en cours. Classe énergie D, Classe climat C Montant estimé des dépenses annuelles d'énergie pour un usage standard : entre 1470.00 € et 2040.00 € sur les années 2021, 2022 et 2023 (abonnements compris). Les informations sur les risques auxquels ce bien est exposé sont disponibles sur le site Géorisques : georisques.gouv.fr.

Votre conseiller Bien Serein immobilier : Doriane BARBE
Agent commercial (Entreprise individuelle)
RSAC 829314210
Voir plus

Référence: 824-BIENSEREIN28
Bien en copropriété. Nombre de lots : 122. Charges de copropriété : 3664 €.
Honoraires à la charge du vendeur.
Barème des honoraires
DPE
A
B
C
D
E
F
G
GES
A
B
C
D
E
F
G

Prêt immobilier

Vous souhaitez connaître votre capacité d’emprunt et trouver le meilleur crédit immobilier ?
Réaliser une simulation gratuite

Appartement à MAINVILLIERS
Appartement à MAINVILLIERS
Appartement à MAINVILLIERS
Appartement à MAINVILLIERS
Appartement à MAINVILLIERS
Appartement à MAINVILLIERS
Appartement à MAINVILLIERS
Appartement à MAINVILLIERS
Appartement à MAINVILLIERS
Ce site est protégé par reCAPTCHA la Politique de confidentialité et les Conditions d’utilisation de Google s’appliquent.
Obtenir un prêt immobilier au meilleur taux ?

En poursuivant votre navigation sans modifier vos paramètres, vous acceptez l'utilisation de cookies susceptibles de réaliser des statistiques de visite. Cliquez ici pour plus d'informations