Bénéficiez des services de nos partenaires locaux soigneusement sélectionnés
pour vous accompagner dans votre parcours d'achat immobilier

Appartement 60m² à mainvilliers

— Mainvilliers 28300 —
155 000 €
60 m²
3 pièces
parkingbalcon/terrasseascenseur

Nos partenaires locaux
Bienvenue dans votre futur chez vous !
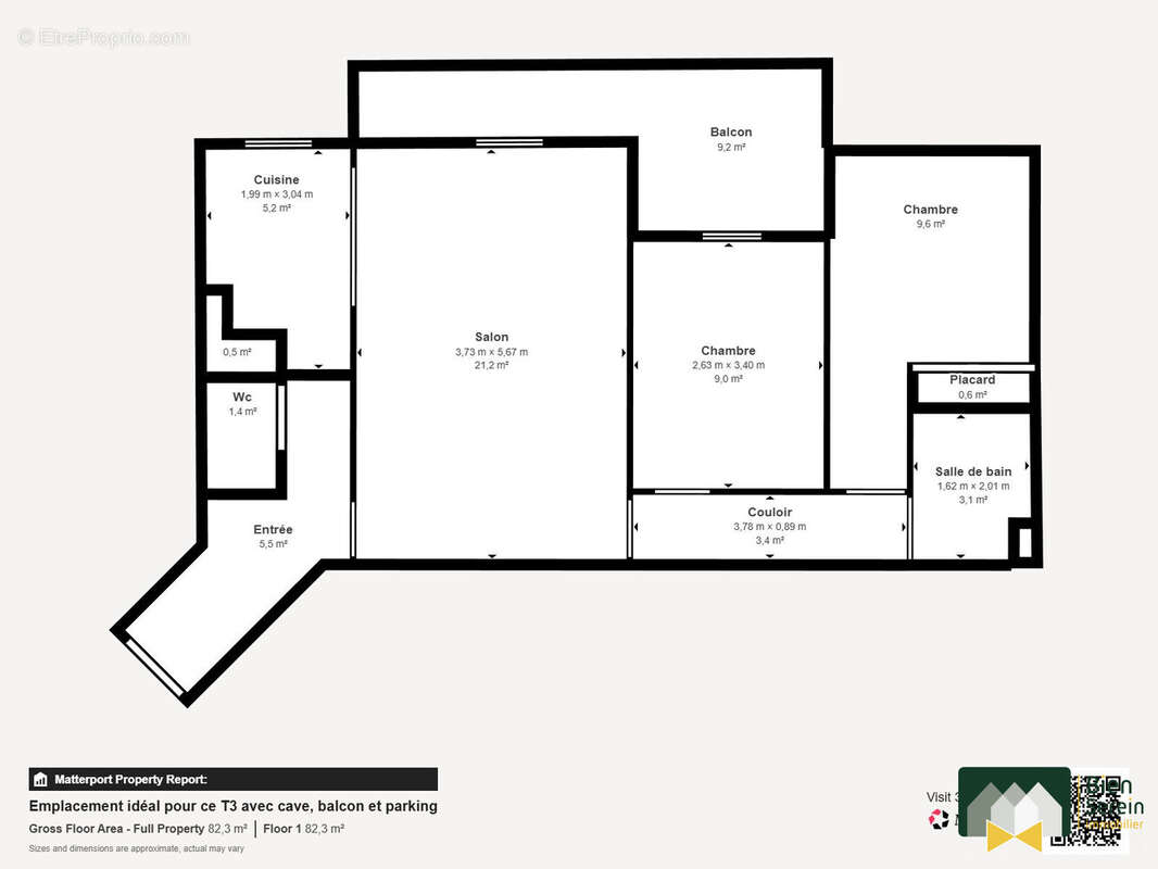
Situé dans une résidence recherchée, à deux pas de toutes les commodités, ce T3 vous séduira par sa localisation, ses prestations et sa fonctionnalité. Sa pièce de vie avec cuisine ouverte et balcon, ainsi que les annexes attachées au logement (cave et box) en font un bien rare, prêt à vous accueillir sans aucun travaux.

Découvrez un appartement composé comme suit :
- Entrée avec espace de rangement
- Un séjour spacieux de 21 m² baigné de lumière
- Cuisine américaine aménagée
- Deux chambres dont une avec placard
- Une salle de bains
- Un Wc indépendant

Côté confort :
- Exposition ouest pour une luminosité optimale
- 1er étage avec ascenseur
- Un balcon de 9m²
- Une cave privative
- Un stationnement au sous sol
- Un local vélo

L'emplacement :
- Commodités accessibles à pied :
- Bus au pied de la résidence
- Gare de Chartres à 5 min
- École maternelle et primaire à 8 min
- Collège à 14 min
- Commerces, alimentation et centre ville de Chartres à 10 min

À propos de la copropriété :
Edifiée en 2006, la résidence composée de 3 étages, est parfaitement entretenue, avec des parties communes en très bon état.
Les charges mensuelles intègrent l'entretien et la gestion des parties communes ainsi que l'eau froide selon la consommation réelle.

N'hésitez pas à contacter votre agent au Noeud Pap' pour obtenir plus d'informations et visiter cet appartement alliant confort et modernité ! ??

Honoraires à la charge du vendeur. Dans une copropriété de 33 lots. Quote-part moyenne du budget prévisionnel 1 451 €/an. Aucune procédure n'est en cours. DPE en cours. Les informations sur les risques auxquels ce bien est exposé sont disponibles sur le site Géorisques : georisques.gouv.fr.

Votre conseiller Bien Serein immobilier : Doriane BARBE
Agent commercial (Entreprise individuelle)
RSAC 829314210
Voir plus

Référence: 818-BIENSEREIN28
Bien en copropriété. Nombre de lots : 33. Charges de copropriété : 1451 €.
Honoraires à la charge du vendeur.
Barème des honoraires

Prêt immobilier

Vous souhaitez connaître votre capacité d’emprunt et trouver le meilleur crédit immobilier ?
Réaliser une simulation gratuite

Appartement à MAINVILLIERS
Appartement à MAINVILLIERS
Appartement à MAINVILLIERS
Appartement à MAINVILLIERS
Appartement à MAINVILLIERS
Appartement à MAINVILLIERS
Appartement à MAINVILLIERS
Ce site est protégé par reCAPTCHA la Politique de confidentialité et les Conditions d’utilisation de Google s’appliquent.
Obtenir un prêt immobilier au meilleur taux ?

En poursuivant votre navigation sans modifier vos paramètres, vous acceptez l'utilisation de cookies susceptibles de réaliser des statistiques de visite. Cliquez ici pour plus d'informations