Bénéficiez des services de nos partenaires locaux soigneusement sélectionnés
pour vous accompagner dans votre parcours d'achat immobilier

Gratte-ciel/tolstoï - t3/t4 de 74m² avec balcon

— Villeurbanne 69100 —
289 000 €
74 m²
4 pièces
parkingbalcon/terrasseascenseur

Nos partenaires locaux
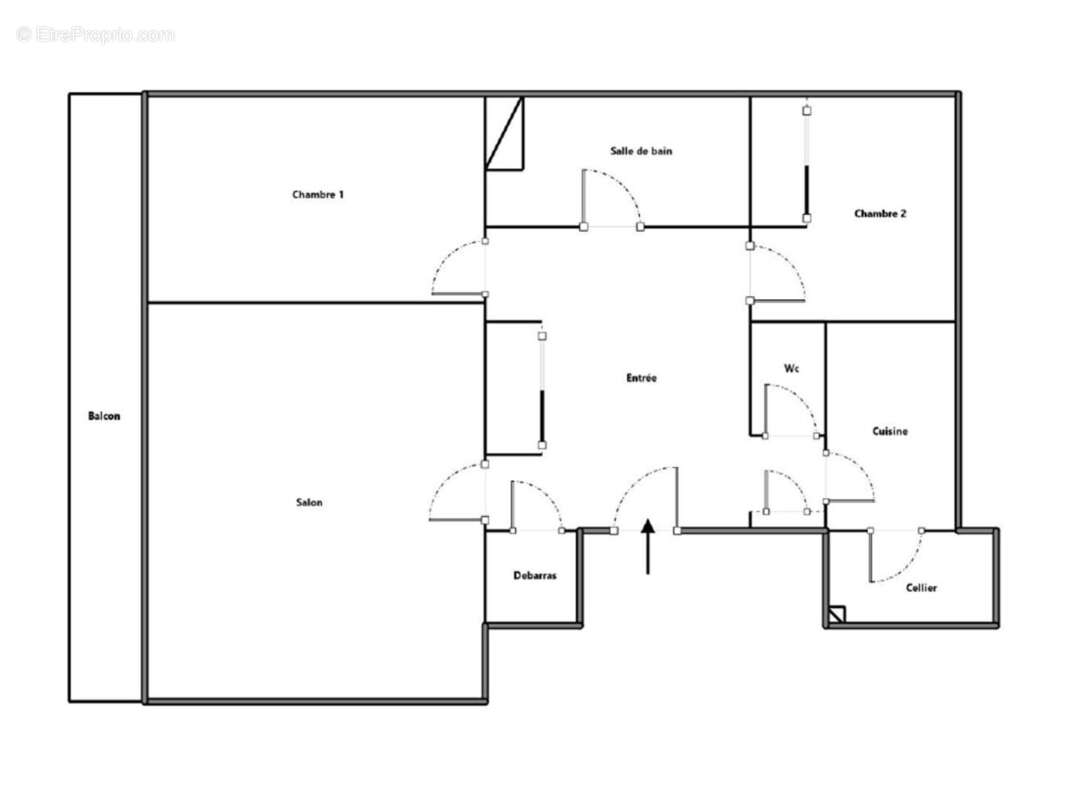
Lumineux T3/T4 de 74m² traversant N/S sans vis-à-vis et avec vue dégagée idéalement situé dans le secteur Gratte-Ciel/Tolstoï, rue Richelieu. En dernier étage d'un immeuble en intérieur de copropriété, Appartement T3 /T4 de 74m² en bon état composé : - d'une entrée avec rangements desservant toutes les autres pièces du logement. - d'un séjour double climatisé de 26m² exposé Sud. - d'une cuisine indépendante de 8m² exposée Nord donnant accès à un cellier de 2,60m². - de deux chambres de 11m² . - d'un balcon de 10m² ensoleillé et exposé au Sud accessible depuis le séjour et l'une des chambres. - d'une salle de bains et de WC séparés. Le bien est vendu avec une cave en sous-sol et il est possible d'acquérir pour 10.000 euros supplémentaires une place de parking privative dans la copropriété. Cet appartement T3/T4 est idéal pour une résidence principale de part son emplacement à proximité immédiate des transports, des commerces et des écoles : - Mairie des Gratte-Ciel, TNP et avenue Henri Barbusse à 700 mètres. - Marché des Gratte-Ciel à 800 mètres. - Bus TB11/C23/69 (arrêt Verlaine) et Tramway T6 (arrêt Verlaine-Tolstoï) à 250 mètres. - Groupe scolaire Jaurès (rue Lafontaine) à 150m et collège Louis Jouvet à 800 mètres. Bien soumis au régime de la copropriété dans un immeuble composé de 151 lots principaux qui ne fait pas l'objet d'une procédure en cours. Quote-part annuelle de charges : 2412 euros incluant les charges de copropriété, d'ascenseur, de chauffage, d'eau chaude et d'eau froide. Performance énergétique et climatique : DPE classé F en énergie primaire et finale et GES classé D. Montant estimé des dépenses annuelles d'énergie pour un usage standard : entre 2140 euros et 2950 euros par an. Prix moyens des énergies indexés sur les années 2021 à 2023 (abonnements compris). Les informations sur les risques auxquels ce bien est exposé sont disponibles sur le site Géorisques (C. envir., art. R. 125-25, I). Honoraires à la charge du vendeur. Pour plus d'informations, photos et plans, prenez contact avec notre consultante Alyssa Niculescu, agent commercial immatriculé au RSAC de Lyon sous le numéro 794 964 957. Copropriété de 151 lots (Pas de procédure en cours). Charges annuelles : 2415 euros.
Voir plus

Référence: 1342
Bien en copropriété. Nombre de lots : 151. Charges de copropriété : 2415 €.
Honoraires à la charge du vendeur.
Barème des honoraires
DPE
A
B
C
D
E
F
G
GES
A
B
C
D
E
F
G

Prêt immobilier

Vous souhaitez connaître votre capacité d’emprunt et trouver le meilleur crédit immobilier ?
Réaliser une simulation gratuite

Appartement à VILLEURBANNE
Appartement à VILLEURBANNE
Appartement à VILLEURBANNE
Appartement à VILLEURBANNE
Appartement à VILLEURBANNE
Appartement à VILLEURBANNE
Appartement à VILLEURBANNE
Appartement à VILLEURBANNE
Appartement à VILLEURBANNE
Appartement à VILLEURBANNE
Appartement à VILLEURBANNE
Appartement à VILLEURBANNE
Appartement à VILLEURBANNE
Ce site est protégé par reCAPTCHA la Politique de confidentialité et les Conditions d’utilisation de Google s’appliquent.
Obtenir un prêt immobilier au meilleur taux ?

En poursuivant votre navigation sans modifier vos paramètres, vous acceptez l'utilisation de cookies susceptibles de réaliser des statistiques de visite. Cliquez ici pour plus d'informations