Bénéficiez des services de nos partenaires locaux soigneusement sélectionnés
pour vous accompagner dans votre parcours d'achat immobilier

Appartement 48m² à trouville-sur-mer

— Trouville-Sur-Mer 14360 —
241 500 €
48 m²
3 pièces
balcon/terrasse

Nos partenaires locaux
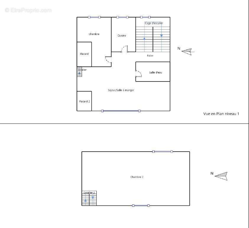
Au 3ème et dernier étage d'une petite copropriété située au coeur du quartier Bonsecours, à quelques pas de la plage et du marché aux poissons, charmant 3 pièces en duplex de 33m² en carrez et 48m² au sol.. Il dispose d'une entrée desservant un séjour avec balcon ( à rénover pour en profiter ) bénéficiant d'une belle vue sur les toits, une cuisine indépendante, 2 chambres dont l'une sous combles, une salle d'eau avec WC. La double exposition et la jolie vue dégagée procurent une belle luminosité. La plage et les commerces sont à quelques pas

Honoraires à la charge du vendeur. Dans une copropriété de 10 lots. Quote-part moyenne du budget prévisionnel 480 €/an. Aucune procédure n'est en cours. Classe énergie F, Classe climat F Logement à consommation énergétique excessive. Montant estimé des dépenses annuelles d'énergie pour un usage standard : entre 1980.00 € et 2730.00 € sur les années 2021, 2022 et 2023 (abonnements compris). Les informations sur les risques auxquels ce bien est exposé sont disponibles sur le site Géorisques : georisques.gouv.fr.
Voir plus

Référence: 1526-ABI
Bien en copropriété. Nombre de lots : 10. Charges de copropriété : 480 €.
Honoraires à la charge du vendeur.
Barème des honoraires
DPE
A
B
C
D
E
F
G
GES
A
B
C
D
E
F
G

Prêt immobilier

Vous souhaitez connaître votre capacité d’emprunt et trouver le meilleur crédit immobilier ?
Réaliser une simulation gratuite

Appartement à TROUVILLE-SUR-MER
Appartement à TROUVILLE-SUR-MER
Appartement à TROUVILLE-SUR-MER
Appartement à TROUVILLE-SUR-MER
Appartement à TROUVILLE-SUR-MER
Appartement à TROUVILLE-SUR-MER
Appartement à TROUVILLE-SUR-MER
Appartement à TROUVILLE-SUR-MER
Appartement à TROUVILLE-SUR-MER
Ce site est protégé par reCAPTCHA la Politique de confidentialité et les Conditions d’utilisation de Google s’appliquent.
Obtenir un prêt immobilier au meilleur taux ?

En poursuivant votre navigation sans modifier vos paramètres, vous acceptez l'utilisation de cookies susceptibles de réaliser des statistiques de visite. Cliquez ici pour plus d'informations