Bénéficiez des services de nos partenaires locaux soigneusement sélectionnés
pour vous accompagner dans votre parcours d'achat immobilier

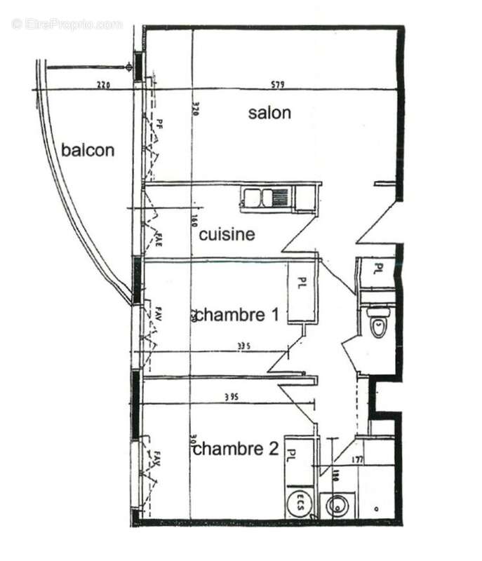
Appartement 71m² à paris-14e

— Paris-14e 75014 —
700 000 €
71 m²
3 pièces
balcon/terrasseascenseur

Nos partenaires locaux
Beau trois-pièces à 100m du métro Saint-Jacques et à 900m du RER Denfert-Rochereau. Situé dans un immeuble bien entretenu, cet appartement est très agréable à vivre.

À VENDRE – Appartement lumineux et fonctionnel de 71 m²

Paris 14e – Quartier Croulebarbe

Les atouts du bien :
• Superficie : 71 m²
• Grande pièce de vie baignée de lumière naturelle
• Cuisine séparée, fonctionnelle et bien agencée
• Salle de bains indépendante
• Situé au 6e étage avec ascenseur dans un immeuble bien entretenu
• DPE : C
• Un superbe balcon et une cave complètent ce bien

Localisation idéale :
Accès rapide aux métros 4,6 et RER B, ainsi qu'à de nombreuses lignes de bus et Noctilien.

Les informations sur les risques auxquels ce bien est exposé sont disponibles sur le site Géorisques : www.georisques.gouv.fr
Prix de vente : 700 000 ¤
Honoraires charge vendeur

Contactez votre conseiller SAFTI : Christiane MAZEL, Tél. : [Coordonnées masquées], E-mail : [Coordonnées masquées] - EI - Agent commercial immatriculé au RSAC de Paris sous le numéro 393 718 747.
Informations LOI ALUR :
Honoraires charge vendeur. (gedeon_26118_32309359)
Voir plus

Référence: 1571759
Honoraires à la charge du vendeur.
Barème des honoraires
DPE
A
B
C
D
E
F
G
GES
A
B
C
D
E
F
G

Prêt immobilier

Vous souhaitez connaître votre capacité d’emprunt et trouver le meilleur crédit immobilier ?
Réaliser une simulation gratuite

Photo 1 - Appartement à PARIS-14E
Photo 1
Photo 2 - Appartement à PARIS-14E
Photo 2
Photo 3 - Appartement à PARIS-14E
Photo 3
Photo 4 - Appartement à PARIS-14E
Photo 4
Photo 5 - Appartement à PARIS-14E
Photo 5
Photo 6 - Appartement à PARIS-14E
Photo 6
Photo 7 - Appartement à PARIS-14E
Photo 7
Photo 8 - Appartement à PARIS-14E
Photo 8
Photo 9 - Appartement à PARIS-14E
Photo 9
Ce site est protégé par reCAPTCHA la Politique de confidentialité et les Conditions d’utilisation de Google s’appliquent.
Obtenir un prêt immobilier au meilleur taux ?

En poursuivant votre navigation sans modifier vos paramètres, vous acceptez l'utilisation de cookies susceptibles de réaliser des statistiques de visite. Cliquez ici pour plus d'informations