Appartement 65m² à nanterre

— Nanterre 92000 —
334 312 €
65 m²
3 pièces

Iad France - Marc Franc ([Coordonnées masquées]) vous propose : DERNIÈRE OPPORTUNITÉ -T3 - Résidence 'BEAU CHEMIN' à NANTERRE

Résidence « BEAU CHEMIN», lieu de vie inédit à Nanterre, une nouvelle page de l'histoire.

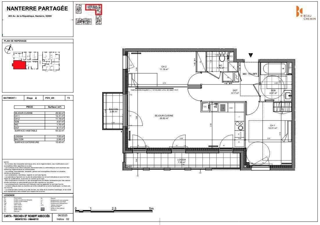
- 3 pièces de 65 m² environ, R + 4,. Orientation Sud / Ouest,. balcon 3 m² environ, loggia de 8 m² environ,. parking au sous-sol,. frais de notaire estimés à 9500 euros en moyenne.

Vous l'avez rêvé, ne manquez pas de concrétiser votre projet, profitez de cette opportunité à Nanterre où se conjuguent dynamisme et culture.

La résidence 'BEAU CHEMIN', logements à l'accession libre, lumineux et confortables, dans un cadre idéal où tout est pensé pour que vous puissiez jouir de logements aux nombreux avantages.

Autres logements encore disponibles :
- de 1 au 5 pièces,
- de 23 à 125 m² environ,
- jardin privatif avec terrasse ou balcon,
- ou Loggia,
- parking au sous-sol (lot secondaire)


Règlementation Environnementale RE2020 - Norme logement HQE. Livraison prévisionnelle 4ème T 2027.

Contactez-moi pour en savoir plus et réserver !

(montant appliqué sur mesure fiscale à 5,5% - Sous réserve de conditions d'éligibilité (notamment résidence principale - plafond de ressources - localisation du bien) une TVA à taux réduit de 5.5% est applicable conformément à l'article 278, III-2° du Code général des impôts) sinon, taux TVA de droit commun à 20 %)

Honoraires d'agence à la charge du vendeur. Bien non soumis au DPE. Les informations sur les risques auxquels ce bien est exposé sont disponibles sur le site Géorisques : www.georisques.gouv.fr. La présente annonce immobilière a été rédigée sous la responsabilité éditoriale de M. Marc Franc EI (ID 83540), mandataire indépendant en immobilier (sans détention de fonds), agent commercial de la SAS I@D France immatriculé au RSAC de VANNES sous le numéro 931732952, titulaire de la carte de démarchage immobilier pour le compte de la société I@D France SAS.
Retrouvez tous nos biens sur notre site internet. www.iadfrance.fr.
Informations LOI ALUR :
Honoraires charge vendeur. (gedeon_6727_32314887)
Voir plus

Référence: 1905151-3
Honoraires à la charge du vendeur.

Prêt immobilier

Vous souhaitez connaître votre capacité d’emprunt et trouver le meilleur crédit immobilier ?
Réaliser une simulation gratuite

Photo 1 - Appartement à NANTERRE
Photo 1
Photo 2 - Appartement à NANTERRE
Photo 2
Photo 3 - Appartement à NANTERRE
Photo 3
Photo 4 - Appartement à NANTERRE
Photo 4
Photo 5 - Appartement à NANTERRE
Photo 5
Photo 6 - Appartement à NANTERRE
Photo 6
Photo 7 - Appartement à NANTERRE
Photo 7
Photo 8 - Appartement à NANTERRE
Photo 8
Photo 9 - Appartement à NANTERRE
Photo 9
Ce site est protégé par reCAPTCHA la Politique de confidentialité et les Conditions d’utilisation de Google s’appliquent.
Obtenir un prêt immobilier au meilleur taux ?

En poursuivant votre navigation sans modifier vos paramètres, vous acceptez l'utilisation de cookies susceptibles de réaliser des statistiques de visite. Cliquez ici pour plus d'informations