Bénéficiez des services de nos partenaires locaux soigneusement sélectionnés
pour vous accompagner dans votre parcours d'achat immobilier

Appartement 79m² à montlouis-sur-loire

— Montlouis-Sur-Loire 37270 —
259 875 €
79 m²
3 pièces
balcon/terrasseascenseur

Nos partenaires locaux
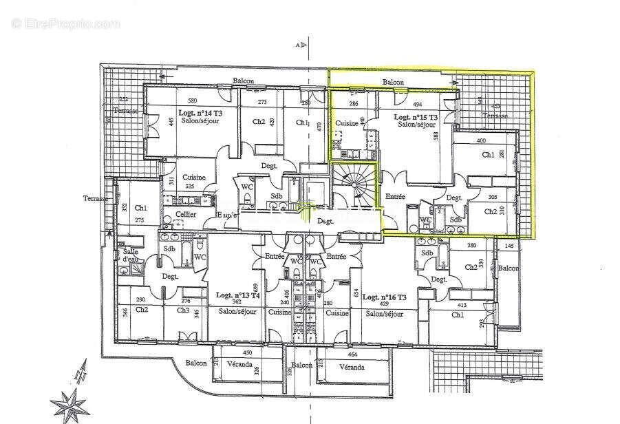
Appartement T3 Exceptionnel avec Vue Panoramique

Découvrez ce magnifique appartement T3 de 79,49 m², situé au 3ème étage d'un immeuble de standing construit en 2009. Ce bien, dans une résidence de standing et sécurisée, vous offre un cadre de vie confortable en plein centre ville.

Imaginez-vous dans un spacieux séjour de 30 m² baigné de lumière, avec une vue panoramique.

Son espace nuit avec deux chambres, lumineuses et bien agencées, vous promettent des nuits paisibles.

Profitez d'un balcon de 10 m² et d'une terrasse de 17 m² pour des moments de détente en plein air. L'appartement est conforme aux normes PMR et dispose d'un ascenseur pour un accès facilité. Les parties communes, tout comme l'intérieur, sont en excellent état.

Les fenêtres en PVC/aluminium avec double vitrage garantissent une isolation optimale. Un garage avec porte motorisée et une autre place de stationnement extérieure vendus avec l'appartement !

Situé à proximité de toutes les commodités, cet appartement est idéal pour les familles et les professionnels. À seulement 5 minutes à pied, vous trouverez des restaurants et un arrêt de bus. En 10 minutes à pied, vous accéderez à une crèche, une maternelle, une école élémentaire, un collège, une alimentation générale et plusieurs médecins généralistes. Deux parcs et jardins sont accessibles en 10 minutes en voiture.

Ne manquez pas cette opportunité de vivre dans un cadre exceptionnel.

Honoraires inclus de 5% TTC à la charge de l'acquéreur. Prix hors honoraires 247 500 €. Dans une copropriété de 1 lots. Aucune procédure n'est en cours. Classe énergie C, Classe climat A Montant estimé des dépenses annuelles d'énergie pour un usage standard : entre 1060.00 € et 1490.00 € sur les années 2021, 2022 et 2023 (abonnements compris). Les informations sur les risques auxquels ce bien est exposé sont disponibles sur le site Géorisques : georisques.gouv.fr.
Voir plus

Référence: 3482YX-AGENCEBELISIMMO
Bien en copropriété. Nombre de lots : 1.
Honoraires d'agence de 5% à la charge de l'acquéreur
Barème des honoraires
DPE
A
B
C
D
E
F
G
GES
A
B
C
D
E
F
G

Prêt immobilier

Vous souhaitez connaître votre capacité d’emprunt et trouver le meilleur crédit immobilier ?
Réaliser une simulation gratuite

Appartement à MONTLOUIS-SUR-LOIRE
Appartement à MONTLOUIS-SUR-LOIRE
Appartement à MONTLOUIS-SUR-LOIRE
Appartement à MONTLOUIS-SUR-LOIRE
Appartement à MONTLOUIS-SUR-LOIRE
Appartement à MONTLOUIS-SUR-LOIRE
Appartement à MONTLOUIS-SUR-LOIRE
Appartement à MONTLOUIS-SUR-LOIRE
Appartement à MONTLOUIS-SUR-LOIRE
Ce site est protégé par reCAPTCHA la Politique de confidentialité et les Conditions d’utilisation de Google s’appliquent.
Obtenir un prêt immobilier au meilleur taux ?

En poursuivant votre navigation sans modifier vos paramètres, vous acceptez l'utilisation de cookies susceptibles de réaliser des statistiques de visite. Cliquez ici pour plus d'informations