Terrain constructible 1418 m² tanneron

— Tanneron 83440 —
435 000 €
1 418 m²

Idéalement situé entre mer et campagne à seulement 10 minutes de Mandelieu, des commerces et des plages. Ce terrain plat, clôturé et viabilisé bénéficie d'un environnement privilégié paisible et verdoyant.

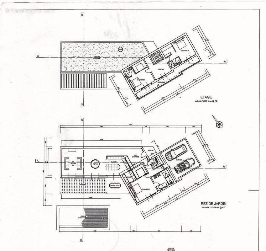
Un permis de construire est accordé et purgé de tous recours pour une villa contemporaine sur deux niveaux d'environ 200m2 de surface de plancher avec séjour double 3-4 chambres, piscine et double garage.

Les informations sur les risques auxquels ce bien est exposé sont disponibles sur le site Géorisques : georisques.gouv.fr Olivier ANTOINE [Coordonnées masquées]
Voir plus

Référence: OA690
Honoraires à la charge du vendeur.

Prêt immobilier

Vous souhaitez connaître votre capacité d’emprunt et trouver le meilleur crédit immobilier ?
Réaliser une simulation gratuite

Terrain à TANNERON
Terrain à TANNERON
Terrain à TANNERON
Terrain à TANNERON
Ce site est protégé par reCAPTCHA la Politique de confidentialité et les Conditions d’utilisation de Google s’appliquent.
Obtenir un prêt immobilier au meilleur taux ?

En poursuivant votre navigation sans modifier vos paramètres, vous acceptez l'utilisation de cookies susceptibles de réaliser des statistiques de visite. Cliquez ici pour plus d'informations