Thiais / maison 5 pièces / quartier la prévoté

— Thiais 94320 —
365 000 €
87 m² / 202 m²
5 pièces
balcon/terrasse

À vendre à Thiais, dans le quartier de La Prévoté, une charmante maison atypique de 5 pièces offrant une surface au sol d'environ 100m² (87m² habitable) sur un terrain de 202 m².

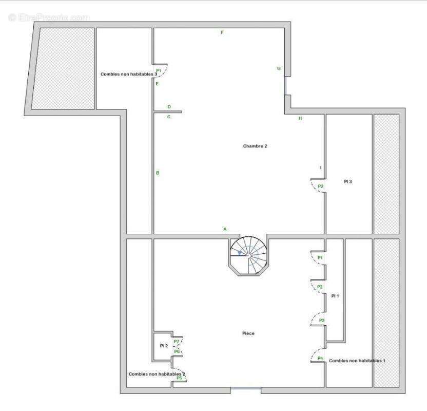
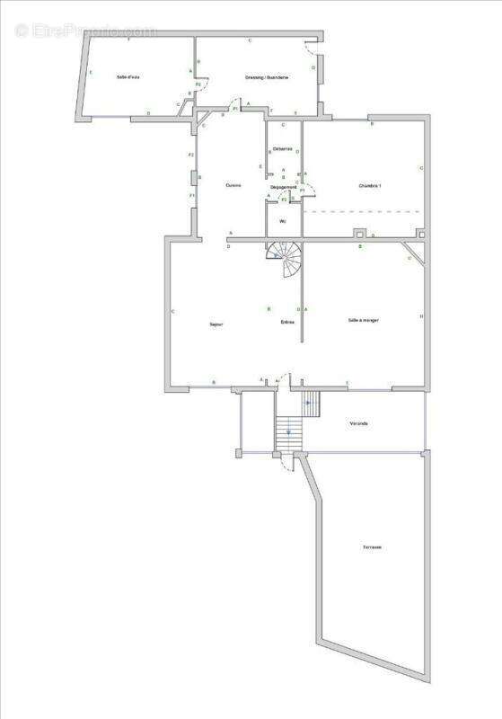
La maison possède 3 niveaux. Elle comprend un double séjour, une cuisine aménagée, 2 chambres (possible 3), une salle d'eau, un wc indépendant, une buanderie, un cellier, une loggia, une véranda, une terrasse, un sous sol total et un garage.
Les fenêtres sont équipées de double vitrage. Le terrain est clôturé. Pas de mitoyenneté ni de copropriété. Pas de jardin à l'arrière de la maison, mais un jardinet a l'avant.

Cette propriété est équipée d'un chauffage moderne par pompe à chaleur air/eau, assurant confort et économies d'énergie.

A proximité: collège, écoles maternelle et élémentaire, commerces de proximités, à 300m de Thiais village (Ikéa, Decathlon, Boulanger, Fnac...), à 10 minutes de l'aéroport d'Orly. Bus (Tvm et 393)

Contactez-moi pour organiser une visite et découvrir tous les atouts de cette maison.

Annonce publiée par Benoit Giot (EI) votre agent commercial en immobilier LF immo à Chilly Mazarin, 91380 immatriculé au RSAC de Evry sous le n°883 396 483 000 25. Consultez nos tarifs sur le site LF immo.

Les informations sur les risques auxquels ce bien est exposé sont disponibles sur le site Géorisques : www.georisques.gouv.fr.
Voir plus

Référence: fr060816
Honoraires à la charge du vendeur.
DPE
A
B
C
D
E
F
G
GES
A
B
C
D
E
F
G

Prêt immobilier

Vous souhaitez connaître votre capacité d’emprunt et trouver le meilleur crédit immobilier ?
Réaliser une simulation gratuite

Maison à THIAIS
Maison à THIAIS
Maison à THIAIS
Maison à THIAIS
Maison à THIAIS
Maison à THIAIS
Maison à THIAIS
Maison à THIAIS
Maison à THIAIS
Maison à THIAIS
Maison à THIAIS
Maison à THIAIS
Maison à THIAIS
Ce site est protégé par reCAPTCHA la Politique de confidentialité et les Conditions d’utilisation de Google s’appliquent.
Obtenir un prêt immobilier au meilleur taux ?

En poursuivant votre navigation sans modifier vos paramètres, vous acceptez l'utilisation de cookies susceptibles de réaliser des statistiques de visite. Cliquez ici pour plus d'informations