Maison 140 m2 6000m2 de terrain

— Cahon 80132 —
325 000 €
140 m² / 6 000 m²
5 pièces
parkingjardin

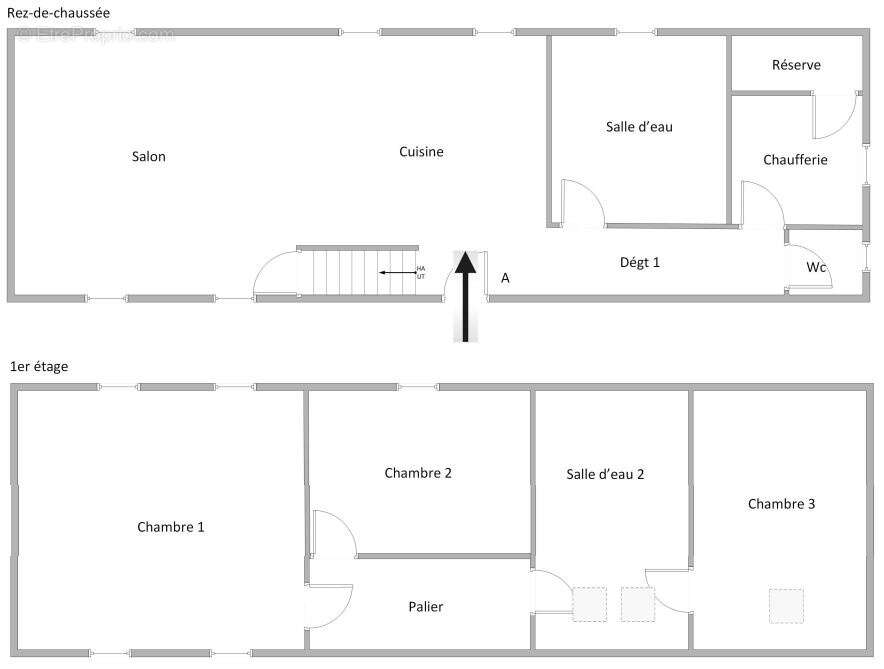
La Cabinet de Simencourt vous propose une maison proche à 15 min de la Baie de Somme comprenant au rez de chaussée, une cuisine aménagée et équipée, une séjour un salon,une salle de bains et un cellier.
Au 1er étage, 4 chambres. Concernant l'extérieur un terrasse bien exposée ,
Vous pourrez profiter d'un grand terrrain de 6000m2 avec un étang ,un garage,un grand batîment.
Téléphone: [Coordonnées masquées]

Référence: 25010
Honoraires d'agence de 4.84% à la charge de l'acquéreur
Barème des honoraires
DPE
A
B
C
D
E
F
G
GES
A
B
C
D
E
F
G

Prêt immobilier

Vous souhaitez connaître votre capacité d’emprunt et trouver le meilleur crédit immobilier ?
Réaliser une simulation gratuite

Maison à CAHON
Maison à CAHON
Maison à CAHON
Maison à CAHON
Maison à CAHON
Maison à CAHON
Maison à CAHON
Maison à CAHON
Maison à CAHON
Maison à CAHON
Maison à CAHON
Maison à CAHON
Ce site est protégé par reCAPTCHA la Politique de confidentialité et les Conditions d’utilisation de Google s’appliquent.
Obtenir un prêt immobilier au meilleur taux ?

En poursuivant votre navigation sans modifier vos paramètres, vous acceptez l'utilisation de cookies susceptibles de réaliser des statistiques de visite. Cliquez ici pour plus d'informations