Bénéficiez des services de nos partenaires locaux soigneusement sélectionnés
pour vous accompagner dans votre parcours d'achat immobilier

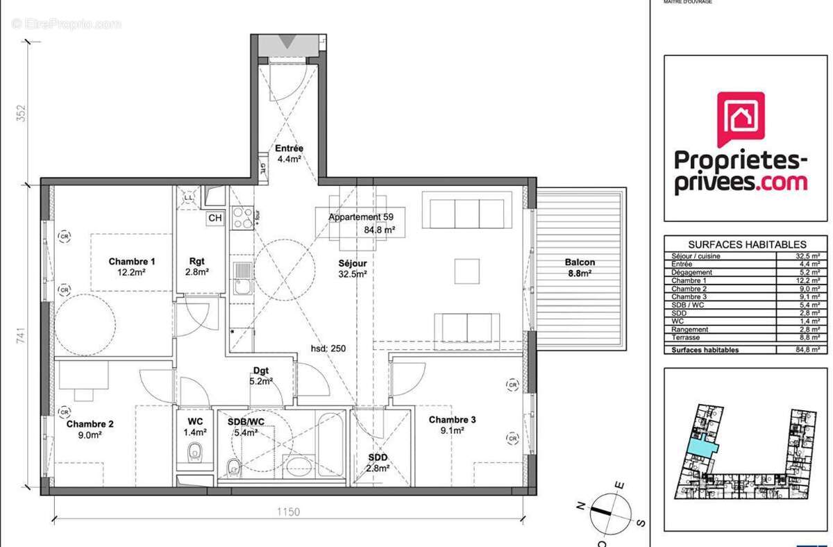
A saisir ! t4 - 84,80 m² idéalement situé: 235 000 avec terrasse , double parking, une cave. très grand confort monteux (84170)

— Monteux 84170 —
235 000 €
84 m²
4 pièces

Nos partenaires locaux
Cette OPPORTUNITÉ vous est proposée par Pascal et sylvie BECOURT : Vaucluse 84170 MONTEUX - 235000 Euros . Dernière baisse de prix....
- Frais de notaire offert
- Une cave offerte
- 2 parkings
Dernières normes énergétique.

Magnifique quatre pièces de presque 85 m² au 3ème étage avec ascenseur, salon séjour cuisine aménagée de 32 m², trois chambres, et une terrasse de 8,80 m². Gros plus sur cette offre, 2 parkings et les frais de notaires inclus

Idéalement situé au coeur de la Provence, entre Avignon et Orange et à 10 minutes de l'autoroute, découvrez le nouvel écoquartier Beaulieu ; avec son parc paysager de 38 hectares, son magnifique lac, sa plage et ses animations. Bientôt restaurant Mc Donald, supermarché, salle de sport.
Véritable pôle d'attractivité et de tourisme : l'association unique d'une offre de shopping et de services et deux grands parcs de loisirs, Spirou et Wave Island.
Située au bord du lac, dans un écrin de verdure, la résidence met l'accent sur la luminosité, le confort, le bien-être et se vit comme une invitation à la détente. La visite virtuelle 360 correspond à l'appartement témoin d'une surface de 84.80m2.

Optimisation de l'espace, distribution fonctionnelle, isolation thermique et phonique renforcée, chauffage individuel au gaz, volets roulants électriques, carrelage grès cérame.
Nombre de lots à la vente : 3 (1 appartement et 2 parkings).
Charges courantes annuelles "prévisionnelles" de 1 100 Euros.
Procédures diligentées contre le syndicat de copropriété : NON.
235 000 euros frais de notaire inclus (honoraires à la charge du vendeur)
Pour visiter et vous accompagner dans votre projet contactez Pascal BECOURT 7/7 sur Carpentras au 0607. 98.09.36
ou par courriel à [Coordonnées masquées]. Cette présente annonce a été rédigée sous la responsabilité éditoriale de Pascal BECOURT agissant sous le statut d'agent commercial immatriculé au RSAC d'Avignon sous le numéro 397 592 882.
Mandat réf : 413277 Le professionnel conseil et sécurise votre projet immobilier
Réseau national immobilier, au capital de 40000 euros, 44 ALLÉE DES CINQ CONTINENTS - ZAC LE CHÊNE FERRÉ, 44120 VERTOU,
RCS Nantes n° 487 624 777 00040, Carte professionnelle T et G n° CPI 44[Coordonnées masquées]10 388 CCI Nantes-Saint Nazaire.

Mandat : 413277
DPE non requis.

Garantie GALIAN - 89 rue de la Boétie, 75008 Paris.
Copropriété de 92 lots ().
Charges annuelles : 1600 euros.

Pascal et Sylvie BECOURT (EI) Agent Commercial - Numéro RSAC : Avignon 397592882 - .
Voir plus

Référence: 413277WPSC
Bien en copropriété. Charges de copropriété : 91 €.

Prêt immobilier

Vous souhaitez connaître votre capacité d’emprunt et trouver le meilleur crédit immobilier ?
Réaliser une simulation gratuite

Appartement à MONTEUX
Appartement à MONTEUX
Appartement à MONTEUX
Appartement à MONTEUX
Appartement à MONTEUX
Appartement à MONTEUX
Appartement à MONTEUX
Appartement à MONTEUX
Appartement à MONTEUX
Appartement à MONTEUX
Appartement à MONTEUX
Appartement à MONTEUX
Appartement à MONTEUX
Appartement à MONTEUX
Appartement à MONTEUX
Appartement à MONTEUX
Appartement à MONTEUX
Appartement à MONTEUX
Ce site est protégé par reCAPTCHA la Politique de confidentialité et les Conditions d’utilisation de Google s’appliquent.
Obtenir un prêt immobilier au meilleur taux ?

En poursuivant votre navigation sans modifier vos paramètres, vous acceptez l'utilisation de cookies susceptibles de réaliser des statistiques de visite. Cliquez ici pour plus d'informations