Entre riotord 43220 et marlhes 42660 maison sur sous-sol complet 175m² habitables 3/4 chambres sur 2643m² de terrain avec entrep

— Riotord 43220 —
364 000 €
175 m² / 2 643 m²
5 pièces

Entre Riotord 43220 et Marlhes 42660 dans un hameau paisible maison sur sous-sol complet 175m² habitables 3/4 chambres sur 2643m² de terrain avec entrepôt indépendant de 160m² idéal pour un artisan.
Prix de vente 364 000 euros présentée EN EXCLUSIVITE par Nicolas FOURNEL O6 78 2O 71 36
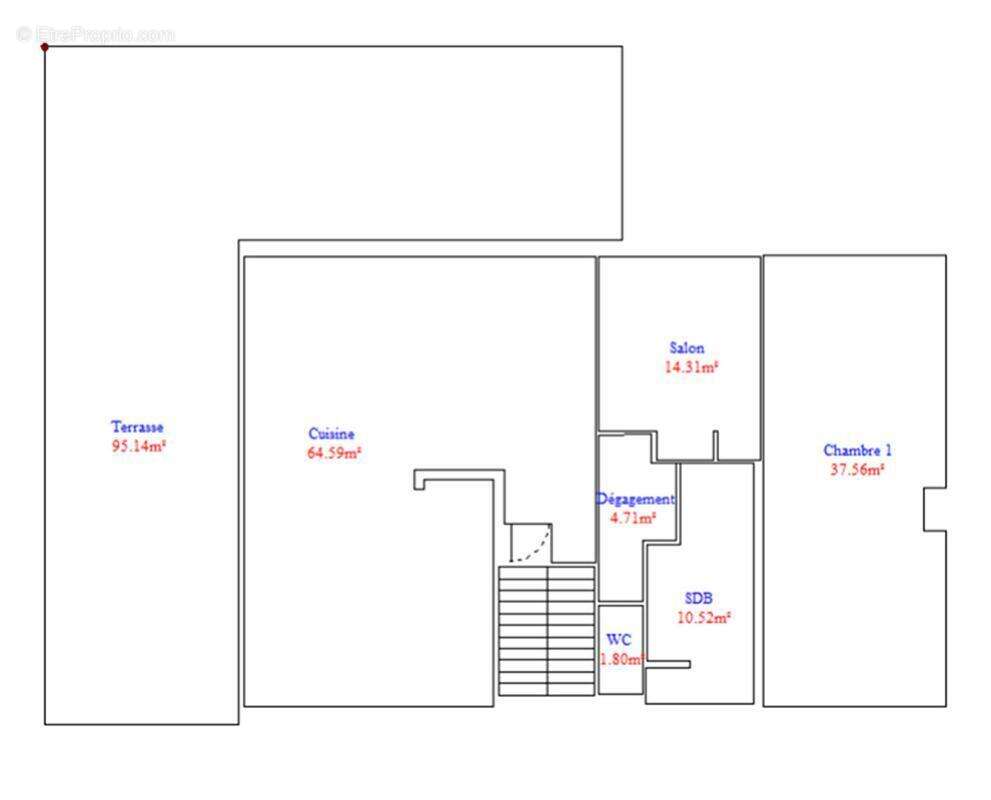
Vous disposerez en sous-sol : d'un double garage accessible par deux portes motorisées, bureau, buanderie, chaufferie, douche et WC
L'étage comprend cuisine aménagée et équipée ouverte sur le salon séjour avec accès par trois portes fenêtres à une grande terrasse en partie couverte exposée Sud-Ouest offrant une agréable vue dégagée sur la campagne environnante.
Une chambre parentale spacieuse avec salle d'eau et un WC séparé complètent ce niveau.
Le dernier étage offre deux petites chambres, une salle de jeux, une pièce initialement destinée à la création d'une salle de bains, et une partie aménageable selon vos besoins ou vos envies.
Fenêtres PVC double vitrage et volets roulants. Chauffage poêle à granules dans la pièce de vie et chaudière fioul.
Côté dépendance vous disposerez d'un entrepôt de 160m² avec un grand portail.
Beau potentiel d'aménagement du terrain plat avec accès goudronné. Possibilité de stationner des véhicules sous la terrasse.
DPE : 236kMh/m2/an : D GES : 48 : D
Montant estimé des dépenses annuelles d'énergie établi à partir des prix de l'énergie des années 2021, 2022, 2023 : entre 4440 et 6100 euros/an
Veuillez noter que toutes les mesures sont approximatives, les informations sont fournies à titre indicatif seulement.
Veuillez noter que toutes les mesures sont approximatives, les informations sont fournies à titre indicatif seulement.
Pour visiter et vous accompagner dans votre projet contactez Nicolas FOURNEL [Coordonnées masquées] ou par courriel à [Coordonnées masquées] agissant sous le statut de d'agent commercial indépendant inscrit au RSAC 878 773 209 Mandat 3749FOI Le professionnel garantit et sécurise votre projet immobilier.
SAS Agence immobilière de Saint Genest Malifaux (O4 77 51 7O 6O) concession PROPRIETES PRIVEES 4 rue du Velay 42660 St Genest Malifaux Carte professionnelle CPI 42[Coordonnées masquées]10 412 CCI Lyon Métropole St Etienne Roanne RCS 450 309 422

Nicolas FOURNEL (EI) Agent Commercial - Numéro RSAC : 878773309 - .
Les informations sur les risques auxquels ce bien est exposé sont disponibles sur le site Géorisques : www. georisques. gouv. fr
Voir plus

Référence: 3749FOI
Honoraires à la charge du vendeur.
DPE
A
B
C
D
E
F
G
GES
A
B
C
D
E
F
G

Prêt immobilier

Vous souhaitez connaître votre capacité d’emprunt et trouver le meilleur crédit immobilier ?
Réaliser une simulation gratuite

Maison à RIOTORD
Maison à RIOTORD
Maison à RIOTORD
Maison à RIOTORD
Maison à RIOTORD
Maison à RIOTORD
Maison à RIOTORD
Maison à RIOTORD
Maison à RIOTORD
Maison à RIOTORD
Maison à RIOTORD
Maison à RIOTORD
Maison à RIOTORD
Maison à RIOTORD
Maison à RIOTORD
Maison à RIOTORD
Maison à RIOTORD
Maison à RIOTORD
Ce site est protégé par reCAPTCHA la Politique de confidentialité et les Conditions d’utilisation de Google s’appliquent.
Obtenir un prêt immobilier au meilleur taux ?

En poursuivant votre navigation sans modifier vos paramètres, vous acceptez l'utilisation de cookies susceptibles de réaliser des statistiques de visite. Cliquez ici pour plus d'informations