Appartement proche mer

— Notre-Dame-De-Monts 85690 —
174 941 €
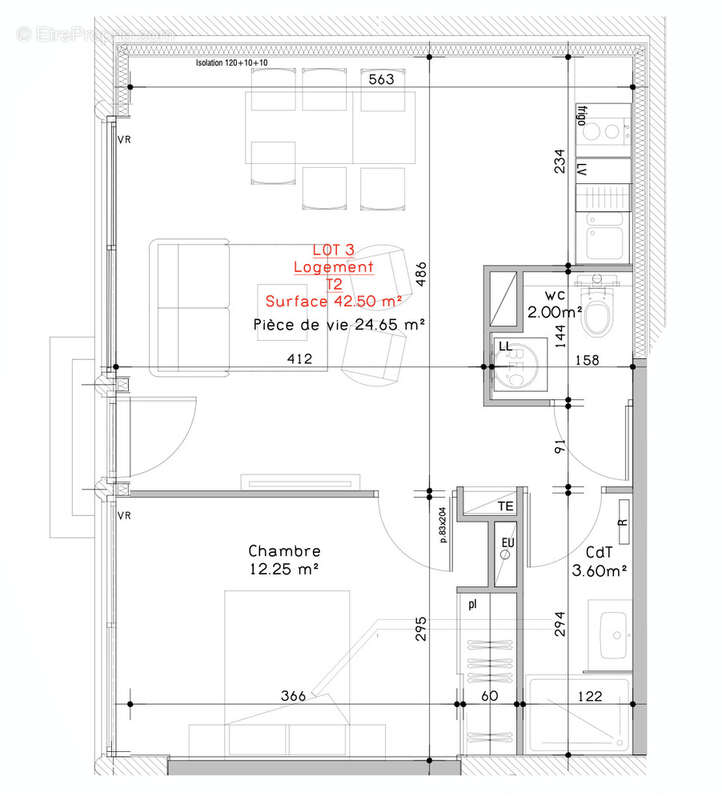
43 m²
2 pièces

L’agence RH Immobilier vous présente cet appartement T2 idéalement situé à seulement 150 mètres de la plage.
En rez-de-chaussé d’une résidence rénovée de 10 lots, ce T2 de 42,65 m2 se compose d’une pièce de vie avec cuisine ouverte, d’une chambre avec placard intégré, d’une salle d’eau ainsi que d’un wc indépendant. Le bien est entièrement refait à neuf.
Une cave vient également compléter cet ensemble.
Livraison prévue fin 2026.

Bien en copropriété. Nombre de lots : 10.
Barème des honoraires

Prêt immobilier

Vous souhaitez connaître votre capacité d’emprunt et trouver le meilleur crédit immobilier ?
Réaliser une simulation gratuite

Appartement à NOTRE-DAME-DE-MONTS
Appartement à NOTRE-DAME-DE-MONTS
Appartement à NOTRE-DAME-DE-MONTS
Appartement à NOTRE-DAME-DE-MONTS
Appartement à NOTRE-DAME-DE-MONTS
Ce site est protégé par reCAPTCHA la Politique de confidentialité et les Conditions d’utilisation de Google s’appliquent.
Obtenir un prêt immobilier au meilleur taux ?

En poursuivant votre navigation sans modifier vos paramètres, vous acceptez l'utilisation de cookies susceptibles de réaliser des statistiques de visite. Cliquez ici pour plus d'informations