Propriete d'exception crehen

— Crehen 22130 —
577 500 €
146 m² / 40 551 m²
8 pièces
parkingjardin

Uniquement à l'agence Armor Conseil Immobilier
Geoffrey perrée vous propose cette magnifique longère au calme absolu, à seulement 10 minutes des plages
Nichée au bout d’une allée, à l’abri de tout regard et entourée de verdure, cette superbe propriété de caractère offre un cadre de vie exceptionnel : 4 hectares de terrain, environ 300 m2 de bâtis et un potentiel unique pour les amoureux d’espace, de nature et de tranquillité.

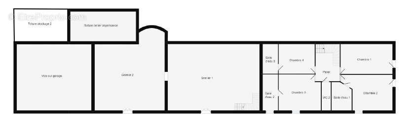
La longère se compose de trois maisons qui communiquent entre elles:

La maison principale dispose aujourd’hui de 145 m2 entièrement rénovés (DPE C).

Au rez-de-chaussée, vous découvrirez une vaste pièce de vie lumineuse, sublimée par un poêle à bois central, idéale pour recevoir et profiter de moments chaleureux en famille.

À l’étage, quatre chambre ont été aménagées, chacune disposant de sa propre salle d’eau : un confort rare pour une maison de campagne.

À cela, s’ajoutent une seconde maison à rafraîchir, parfaite pour créer un second logement, un atelier, un gîte ou un espace professionnel.

Une troisième maison à rénover vient compléter cette longère.

Les parties annexes complètent ce bien : dépendances, garage.

La toiture a été refaite sur la totalité du bâti, des drains ont été posés, et des prestations de qualité mariant charme de la pierre et confort moderne ont été réalisées.

À l’extérieur, l’environnement se compose de 4 hectares de prairies et de bois. Aucun vis-à-vis, une intimité totale Un cadre naturel préservé et harmonieux.

Les plages de Saint-Jacut-de-la-Mer et toutes les commodités se trouvent à seulement 10 minutes en voiture, offrant un parfait équilibre entre calme rural et dynamisme littoral.


Les informations sur les risques auxquels ce bien est exposé sont disponibles sur le site Géorisques : www.georisques.gouv.fr
Voir plus

Référence: 14091
Honoraires d'agence de 5% à la charge de l'acquéreur
Barème des honoraires
DPE
A
B
C
D
E
F
G
GES
A
B
C
D
E
F
G

Prêt immobilier

Vous souhaitez connaître votre capacité d’emprunt et trouver le meilleur crédit immobilier ?
Réaliser une simulation gratuite

Maison à CREHEN
Maison à CREHEN
Maison à CREHEN
Maison à CREHEN
Maison à CREHEN
Maison à CREHEN
Maison à CREHEN
Maison à CREHEN
Maison à CREHEN
Maison à CREHEN
Maison à CREHEN
Maison à CREHEN
Maison à CREHEN
Maison à CREHEN
Ce site est protégé par reCAPTCHA la Politique de confidentialité et les Conditions d’utilisation de Google s’appliquent.
Obtenir un prêt immobilier au meilleur taux ?

En poursuivant votre navigation sans modifier vos paramètres, vous acceptez l'utilisation de cookies susceptibles de réaliser des statistiques de visite. Cliquez ici pour plus d'informations