Bénéficiez des services de nos partenaires locaux soigneusement sélectionnés
pour vous accompagner dans votre parcours d'achat immobilier

Appartement 52m² à la ciotat

— La Ciotat 13600 —
229 000 €
52 m²
3 pièces

Nos partenaires locaux
Appartement T3 à vendre à LA CIOTAT Chez COMBAREL IMMOBILIER,

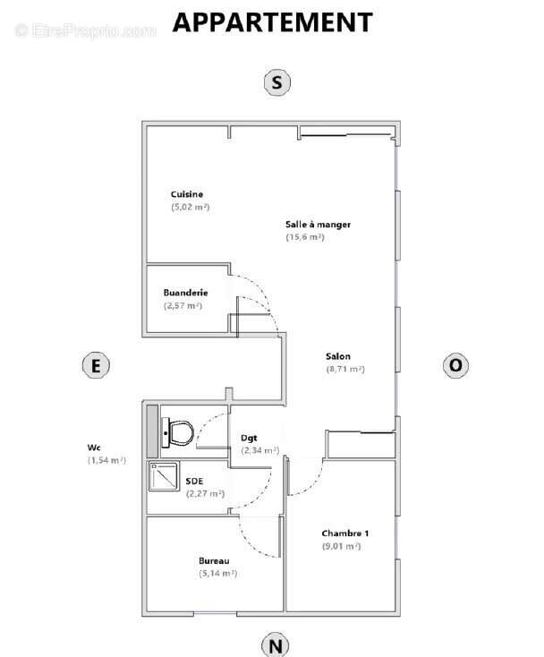
Véritable coup de c?ur pour toute notre équipe, pour cet appartement de plus de 52 m² qui se situe en plein c?ur du centre historique de La Ciotat, à deux pas de toutes les commodités.

Ce dernier est composé d'un salon, d'une cuisine ouverte, d'une salle à manger, d'une chambre, d'un bureau, d'une salle d'eau, d'une buanderie, d'un WC et d'un dégagement.

L'appartement qui a un fort potentiel est agréable à vivre, bien agencé, convivial, fonctionnel, traversant et lumineux.

Il se trouve au 1er étage d'une petite copropriété de 4 lots à taille humaine et bien entretenue.

N'attendez pas pour venir découvrir cet appartement cocooning qui sera libre au 31 décembre 2025.

Visite virtuelle disponible sur notre site www.combarel-immobilier.com
Voir plus

Référence: AG743-86170328J
Bien en copropriété. Nombre de lots : 4. Charges de copropriété : 140 €.
Honoraires à la charge du vendeur.
DPE
A
B
C
D
E
F
G
GES
A
B
C
D
E
F
G

Prêt immobilier

Vous souhaitez connaître votre capacité d’emprunt et trouver le meilleur crédit immobilier ?
Réaliser une simulation gratuite

Appartement à LA CIOTAT
Appartement à LA CIOTAT
Appartement à LA CIOTAT
Appartement à LA CIOTAT
Appartement à LA CIOTAT
Appartement à LA CIOTAT
Ce site est protégé par reCAPTCHA la Politique de confidentialité et les Conditions d’utilisation de Google s’appliquent.
Obtenir un prêt immobilier au meilleur taux ?

En poursuivant votre navigation sans modifier vos paramètres, vous acceptez l'utilisation de cookies susceptibles de réaliser des statistiques de visite. Cliquez ici pour plus d'informations