Bénéficiez des services de nos partenaires locaux soigneusement sélectionnés
pour vous accompagner dans votre parcours d'achat immobilier

Brest europe - vente d'un appartement t3 de 59 m² avec terrasse de 10 m² et parking privé

— Brest 29200 —
170 000 €
59 m²
3 pièces
parkingbalcon/terrasse

Nos partenaires locaux
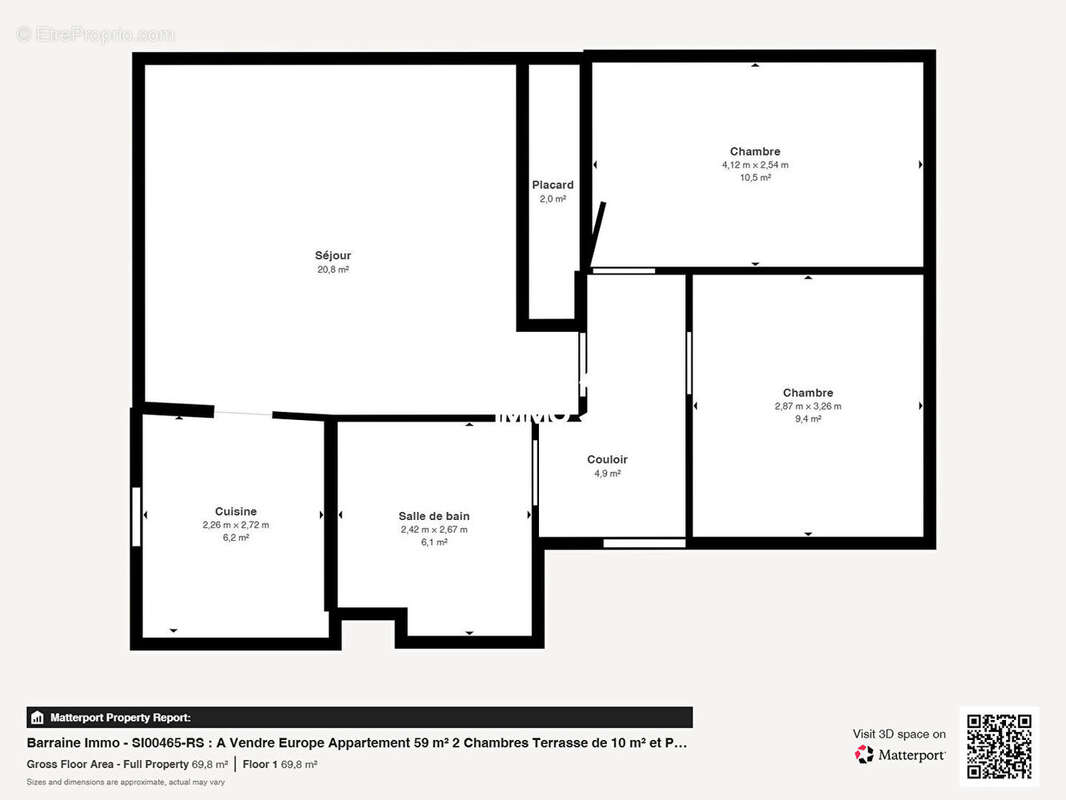
BREST EUROPE - APPARTEMENT 3 PIÈCES DANS IMMEUBLE CONTEMPORAIN - AU CALME SI00465-RS A vendre : Près des grands axes et à 4 km de la mer, découvrez cet appartement de 3 pièces au calme de 59 m² à BREST (29200). Il profite d'une vue dégagée et est exposé à l'ouest. Il s'organise comme suit : un hall, deux chambres de 9 m² et 11 m² exposées à l'est et une cuisine américaine aménagée donnant sur le Salon, créant un espace de vie de 26.79 m² . Il comporte également une salle de bains avec toilettes de 5.84 m². Cet appartement bénéficie d'un chauffage collectif économique. Cet appartement comporte des équipements ayant un fort intérêt tels que la fibre optique, des fenêtres en pvc double vitrage et des volets roulants. De l'espace complémentaire est apporté par une terrasse de 10 m² exposée Ouest. Il est situé au premier étage d'un immeuble contemporain récent de trois étages avec interphone. Il s'agit d'une copropriété de 75 lots. Cet appartement est en bon état général. Il est mis en vente avec une place de parking. Dans un quartier calme, l'appartement est proche de toutes commodités : il est situé à 1 km des commerces et à cinq minutes des écoles. On trouve tous les types d'établissements scolaires (de la maternelle au lycée) à moins de 10 minutes à pied. Un arrêt de bus se situe à une minute du bien. Il y a aussi le tram à deux minutes. L'aéroport Brest-Bretagne est accessible à 6 km. On trouve des restaurants, des commerces, quatre supermarchés, des boulangeries et un bureau de poste dans les environs. Le montant moyen des charges annuelles est de 1 300 euros. Les informations sur les risques auxquels ce bien est exposé sont disponibles sur le site Géorisques : www.georisques.gouv.fr. Envie d'en savoir plus sur cet appartement en vente ? Prenez contact avec notre équipe. (6.25 % honoraires TTC à la charge de l'acquéreur.) Copropriété de 75 lots - dont 40 lots habitation. (Pas de procédure en cours). Charges annuelles : 1350 euros.
Voir plus

Référence: SI00465-RS
Bien en copropriété. Nombre de lots : 75. Charges de copropriété : 1350 €.
Honoraires d'agence de 6.25% à la charge de l'acquéreur
Barème des honoraires
DPE
A
B
C
D
E
F
G
GES
A
B
C
D
E
F
G

Prêt immobilier

Vous souhaitez connaître votre capacité d’emprunt et trouver le meilleur crédit immobilier ?
Réaliser une simulation gratuite

Appartement à BREST
Appartement à BREST
Appartement à BREST
Appartement à BREST
Appartement à BREST
Appartement à BREST
Appartement à BREST
Appartement à BREST
Appartement à BREST
Appartement à BREST
Appartement à BREST
Appartement à BREST
Appartement à BREST
Appartement à BREST
Appartement à BREST
Appartement à BREST
Appartement à BREST
Appartement à BREST
Appartement à BREST
Appartement à BREST
Ce site est protégé par reCAPTCHA la Politique de confidentialité et les Conditions d’utilisation de Google s’appliquent.
Obtenir un prêt immobilier au meilleur taux ?

En poursuivant votre navigation sans modifier vos paramètres, vous acceptez l'utilisation de cookies susceptibles de réaliser des statistiques de visite. Cliquez ici pour plus d'informations