Exclusivite " le mayer "

— Tours 37100 —
237 500 €
77 m²
4 pièces
parkingbalcon/terrasseascenseur

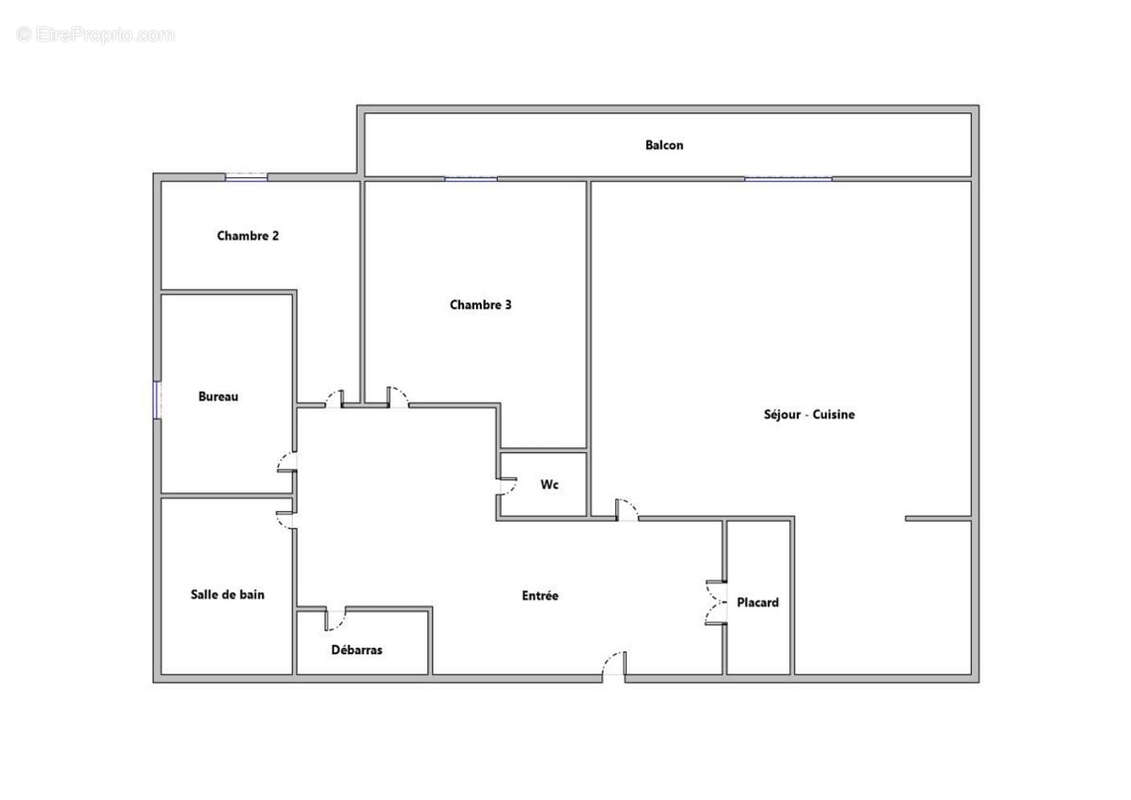
Pour ne pas dire le Meilleur ! Découvrez en EXCLUSIVITE, ce Spacieux T4 de 77 m2, situé au 3ème étage avec ascenseur d'une copropriété récente avec des prestations complètes. Tout y est ... Grande entrée avec placard desservant, le Séjour et sa Cuisine équipée-aménagée donnant sur une terrasse de 12 m2. Un WC séparé, une Grande salle de bains avec double vaque, 2 grandes chambres et un bureau. Ce bien est idéalement conçu pour votre famille car, au delà de ses volumes confortables et ses performances énergétiques très économe ( DPE : C ), vous bénéficierez de 2 places de stationnements ( en sous-sol et extérieur ) . Plutôt rare dans le coin ! Situé dans un quartier dynamique de TOURS NORD, entre 2 arrêts de TRAM ( Ligne A ) et à proximité des commerces, vos enfants pourront aller se dégourdir les jambes dans le parc au pied de l'immeuble. Vous l'avez trouvé, votre pépite, alors ne tardez plus, contactez nous pour visiter car des produits comme cela ne restent pas longtemps sur le marché ! (5.56 % honoraires TTC à la charge de l'acquéreur.) Copropriété de 60 lots - dont 30 lots habitation. (). Charges annuelles : 1215 euros. Sébastien Descharles (EI) Agent Commercial - Numéro RSAC : 2024AC00092 - TOURS.
Voir plus

Référence: 5841
Bien en copropriété. Nombre de lots : 60. Charges de copropriété : 1215 €.
Honoraires d'agence de 5.56% à la charge de l'acquéreur
Barème des honoraires
DPE
A
B
C
D
E
F
G
GES
A
B
C
D
E
F
G

Prêt immobilier

Vous souhaitez connaître votre capacité d’emprunt et trouver le meilleur crédit immobilier ?
Réaliser une simulation gratuite

Appartement à TOURS
Appartement à TOURS
Appartement à TOURS
Appartement à TOURS
Appartement à TOURS
Appartement à TOURS
Appartement à TOURS
Appartement à TOURS
Appartement à TOURS
Appartement à TOURS
Appartement à TOURS
Appartement à TOURS
Ce site est protégé par reCAPTCHA la Politique de confidentialité et les Conditions d’utilisation de Google s’appliquent.
Obtenir un prêt immobilier au meilleur taux ?

En poursuivant votre navigation sans modifier vos paramètres, vous acceptez l'utilisation de cookies susceptibles de réaliser des statistiques de visite. Cliquez ici pour plus d'informations