Bénéficiez des services de nos partenaires locaux soigneusement sélectionnés
pour vous accompagner dans votre parcours d'achat immobilier

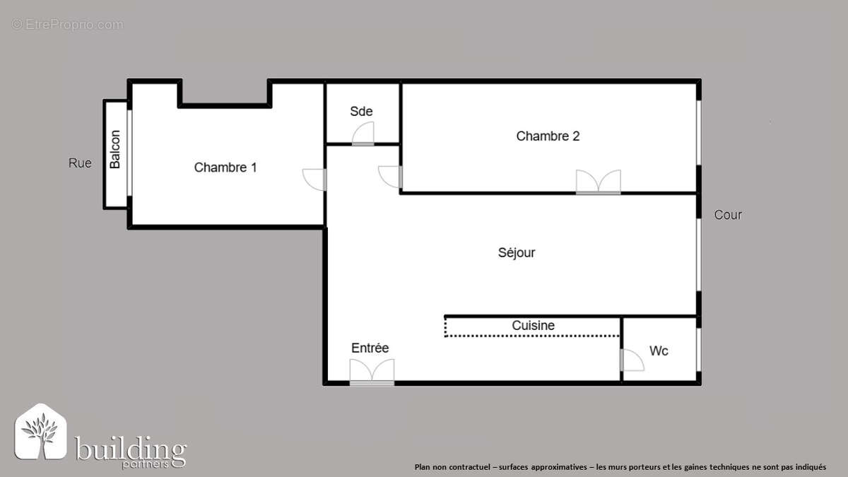
À vendre - ternes - appartement de 51,96 m²

— Paris-17e 75017 —
695 000 €
55 m²
3 pièces
balcon/terrasse

Nos partenaires locaux
Au coeur du quartier prisé des Ternes, BUILDING PARTNERS vous propose à la vente cet appartement 3 pièces de 51,96 m² , situé au 4e étage par escalier d'un immeuble ancien de bon standing, au sein d'une résidence sécurisée. Entièrement refait à neuf, ce bien calme et lumineux séduit par son plan fluide, son agencement optimisé et ses prestations contemporaines. Il se compose d'une entrée, d'un séjour convivial avec cuisine ouverte aménagée et équipée, de deux grandes chambres, d'une salle d'eau moderne, ainsi que de toilettes séparées. Une cave en sous-sol complète ce bien. Situé à proximité immédiate des commerces, des écoles et des transports, cet appartement bénéficie d'un emplacement recherché alliant dynamisme et authenticité au coeur du 17e arrondissement. Ce bien rare à la vente séduira aussi bien un couple, un primo-accédant ou un investisseur à la recherche d'un cadre de vie élégant et fonctionnel. N'hésitez pas à nous contacter pour plus d'informations ou organiser une visite. Depuis 1993, BUILDING PARTNERS accompagne les propriétaires dans la vente de biens immobiliers de standing sur l'ouest parisien. Notre force : une organisation unique avec deux rôles experts. Les Brokers, spécialisés dans la prospection et la valorisation de votre bien. Les Sellers, experts en négociation et en mise en relation avec notre portefeuille d'acheteurs qualifiés. Avec 5 agences implantées au coeur des quartiers les plus recherchés (Paris 16e, Paris 17e, Neuilly, Levallois, Courbevoie), nous vous offrons une visibilité maximale, un accompagnement personnalisé et un engagement total jusqu'à la signature. Confiez-nous votre bien pour une vente rapide, au meilleur prix. Estimation offerte, confidentielle et sans engagement. Copropriété de 56 lots - dont 27 lots habitation. (Pas de procédure en cours). Charges annuelles : 1479 euros.
Voir plus

Référence: 11910
Bien en copropriété. Nombre de lots : 56. Charges de copropriété : 1479 €.
Honoraires à la charge du vendeur.
Barème des honoraires
DPE
A
B
C
D
E
F
G
GES
A
B
C
D
E
F
G

Prêt immobilier

Vous souhaitez connaître votre capacité d’emprunt et trouver le meilleur crédit immobilier ?
Réaliser une simulation gratuite

Appartement à PARIS-17E
Appartement à PARIS-17E
Appartement à PARIS-17E
Appartement à PARIS-17E
Appartement à PARIS-17E
Appartement à PARIS-17E
Appartement à PARIS-17E
Appartement à PARIS-17E
Appartement à PARIS-17E
Appartement à PARIS-17E
Appartement à PARIS-17E
Appartement à PARIS-17E
Appartement à PARIS-17E
Appartement à PARIS-17E
Appartement à PARIS-17E
Appartement à PARIS-17E
Appartement à PARIS-17E
Appartement à PARIS-17E
Ce site est protégé par reCAPTCHA la Politique de confidentialité et les Conditions d’utilisation de Google s’appliquent.
Obtenir un prêt immobilier au meilleur taux ?

En poursuivant votre navigation sans modifier vos paramètres, vous acceptez l'utilisation de cookies susceptibles de réaliser des statistiques de visite. Cliquez ici pour plus d'informations