Appartement 42m² à clermont-ferrand

— Clermont-Ferrand 63100 —
184 700 €
42 m²
2 pièces
parkingbalcon/terrasseascenseur

Iad France - Pierre Magerand ([Coordonnées masquées]) vous propose : Appartement T2 avec balcon à Clermont-Ferrand.

Située à l'angle de l'avenue Barbier Daubrée et de la rue Bernard Brunhes, la résidence contemporaine Conversio, propose un cadre de vie idéal entre le vieux Clermont et le quartier des Carmes. Cette résidence allie confort, performance énergétique et modernité, tout en profitant d'un environnement calme et verdoyant, proche du centre-ville et des transports. Disponible 2027.

Un appartement raffiné :
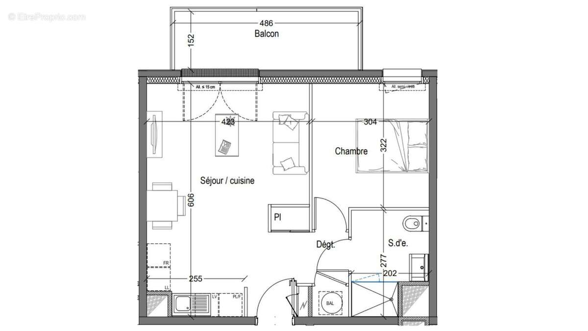
Situé au 5 ème étage, cet appartement T2 de 42 m² environ habitables se prolonge par un balcon de 7 m² environ.

- Séjour / cuisine de 25 m² environ.
- Chambre confortable.
- Salle d'eau moderne.
- Annexes incluses : 1 box en sous-sol.

De belles prestations :
- Chauffage par pompe à chaleur et ballon thermodynamique.
- Volets roulants motorisés.
- Espaces verts paysagers et locaux vélos sécurisés

L'art de vivre à Clermont-Ferrand :
- À 200 m de l'arrêt de bus (lignes 3 et 4) et 550 m du tramway ligne A.
- Écoles et lycées accessibles à pied (Sidoine Apollinaire, Godefroy de Bouillon).
- À 10 min à vélo de la Place de Jaude et du centre historique.
- Proximité immédiate des commerces, services et espaces verts.
- Accès rapide aux autoroutes A75, A89 et A71.

N'hésitez pas à me contacter pour plus d'informations ou pour un accompagnement sur mesure.

Honoraires d'agence à la charge du vendeur. Bien non soumis au DPE. Les informations sur les risques auxquels ce bien est exposé sont disponibles sur le site Géorisques : www.georisques.gouv.fr. La présente annonce immobilière a été rédigée sous la responsabilité éditoriale de M. Pierre Magerand EI (ID 86098), mandataire indépendant en immobilier (sans détention de fonds), agent commercial de la SAS I@D France immatriculé au RSAC de Cusset sous le numéro 938729175, titulaire de la carte de démarchage immobilier pour le compte de la société I@D France SAS.
Retrouvez tous nos biens sur notre site internet. www.iadfrance.fr.
Informations LOI ALUR :
Honoraires charge vendeur. (gedeon_6727_31993050)
Voir plus

Référence: 1678313-2
Honoraires à la charge du vendeur.

Prêt immobilier

Vous souhaitez connaître votre capacité d’emprunt et trouver le meilleur crédit immobilier ?
Réaliser une simulation gratuite

Photo 1 - Appartement à CLERMONT-FERRAND
Photo 1
Photo 2 - Appartement à CLERMONT-FERRAND
Photo 2
Photo 3 - Appartement à CLERMONT-FERRAND
Photo 3
Photo 4 - Appartement à CLERMONT-FERRAND
Photo 4
Photo 5 - Appartement à CLERMONT-FERRAND
Photo 5
Photo 6 - Appartement à CLERMONT-FERRAND
Photo 6
Ce site est protégé par reCAPTCHA la Politique de confidentialité et les Conditions d’utilisation de Google s’appliquent.
Obtenir un prêt immobilier au meilleur taux ?

En poursuivant votre navigation sans modifier vos paramètres, vous acceptez l'utilisation de cookies susceptibles de réaliser des statistiques de visite. Cliquez ici pour plus d'informations