Bénéficiez des services de nos partenaires locaux soigneusement sélectionnés
pour vous accompagner dans votre parcours d'achat immobilier

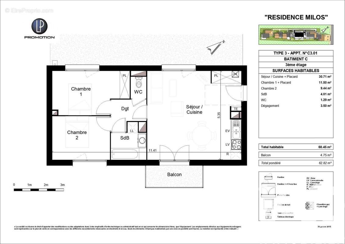
Appartement 60m² à toulouse

— Toulouse 31100 —
188 640 €
60 m²
3 pièces
balcon/terrasse

Nos partenaires locaux
Iad France - Valérie Schmitz vous propose : Toulouse - Dernier étage lumineux avec balcon et parking - T3 de 59 m²

Au sein d'une résidence récente, découvrez cet appartement T3 de 59 m², situé au 3e et dernier étage, offrant un cadre de vie à la fois lumineux, calme et agréable, dans le secteur recherché de Réguelongue / Basso Cambo.

Dès l'entrée, l'appartement séduit par sa clarté naturelle et sa distribution fonctionnelle. La pièce de vie, d'une superficie de plus de 30 m², accueille un séjour convivial avec cuisine ouverte. Cet espace, facile à aménager, s'ouvre sur un balcon exposé Est / Sud-Est, véritable prolongement du séjour, idéal pour profiter des matinées ensoleillées et d'une vue dégagée sur la verdure, sans vis-à-vis immédiat.

L'espace nuit est bien séparé et comprend deux chambres lumineuses, dont une avec placard, offrant des volumes confortables et un environnement propice au repos. Une salle de bains fonctionnelle, des WC indépendants et un dégagement optimisé complètent l'ensemble, sans perte de surface.

L'appartement se situe dans un environnement calme et préservé, en retrait des axes passants, tout en bénéficiant de la proximité immédiate des commerces, écoles, transports en commun, établissements de santé et des accès rapides à la rocade et aux zones d'activité de l'Ouest toulousain.

Le bien dispose également d'un stationnement sécurisé en sous-sol (N°21). Chauffage individuel au gaz, fibre optique et VMC complètent les prestations.

Cet appartement conviendra parfaitement à une résidence principale confortable, comme à un investissement locatif sécurisé, dans un secteur dynamique et recherché.

Un bien lumineux et prêt à vivre, où une visite suffira à confirmer le potentiel.
Pour toute information, contactez moi !

La presente annonce immobiliere vise 2 lots situés dans une copropriété de 42 lots au total et ne faisant l'objet d'aucune procédure en cours citée à l'article L. 721-1 du code de la construction et de l'habitation. Montant moyen mensuel de charges déclaré par le vendeur : 101.54¤ par mois (soit 1218.5 ¤ annuel). Honoraires d'agence à la charge du vendeur.
Information d'affichage énergétique sur ce bien : classe ENERGIE C indice 97 et classe CLIMAT C indice 18. Les informations sur les risques auxquels ce bien est exposé, y compris l'obligation légale de débroussaillement, sont disponibles sur le site Géorisques : http://www.georisques.gouv.fr.
La présente annonce immobilière a été rédigée sous la responsabilité éditoriale de Mme Valérie Schmitz mandataire indépendant en immobilier (sans détention de fonds), agent commercial de la SAS I@D France immatriculé au RSAC de TOULOUSE sous le numéro 988540589, titulaire de la carte de démarchage immobilier pour le compte de la société I@D France SAS.
Informations LOI ALUR :
Soumis au régime de copropriété.
Nombre de lots : 42.
Quote part annuelle(moyenne) : 1218.5 euros.
Honoraires charge vendeur. (gedeon_6727_32320007)
Voir plus

Référence: 1887379
Bien en copropriété. Nombre de lots : 42. Charges de copropriété : 1218 €.
Honoraires à la charge du vendeur.
DPE
A
B
C
D
E
F
G
GES
A
B
C
D
E
F
G

Prêt immobilier

Vous souhaitez connaître votre capacité d’emprunt et trouver le meilleur crédit immobilier ?
Réaliser une simulation gratuite

Photo 1 - Appartement à TOULOUSE
Photo 1
Photo 2 - Appartement à TOULOUSE
Photo 2
Photo 3 - Appartement à TOULOUSE
Photo 3
Photo 4 - Appartement à TOULOUSE
Photo 4
Photo 5 - Appartement à TOULOUSE
Photo 5
Photo 6 - Appartement à TOULOUSE
Photo 6
Photo 7 - Appartement à TOULOUSE
Photo 7
Ce site est protégé par reCAPTCHA la Politique de confidentialité et les Conditions d’utilisation de Google s’appliquent.
Obtenir un prêt immobilier au meilleur taux ?

En poursuivant votre navigation sans modifier vos paramètres, vous acceptez l'utilisation de cookies susceptibles de réaliser des statistiques de visite. Cliquez ici pour plus d'informations