Bénéficiez des services de nos partenaires locaux soigneusement sélectionnés
pour vous accompagner dans votre parcours d'achat immobilier

Maison 100m² à villecresnes

— Villecresnes 94440 —
250 000 €
100 m² / 380 m²
5 pièces
parkingjardin

Nos partenaires locaux
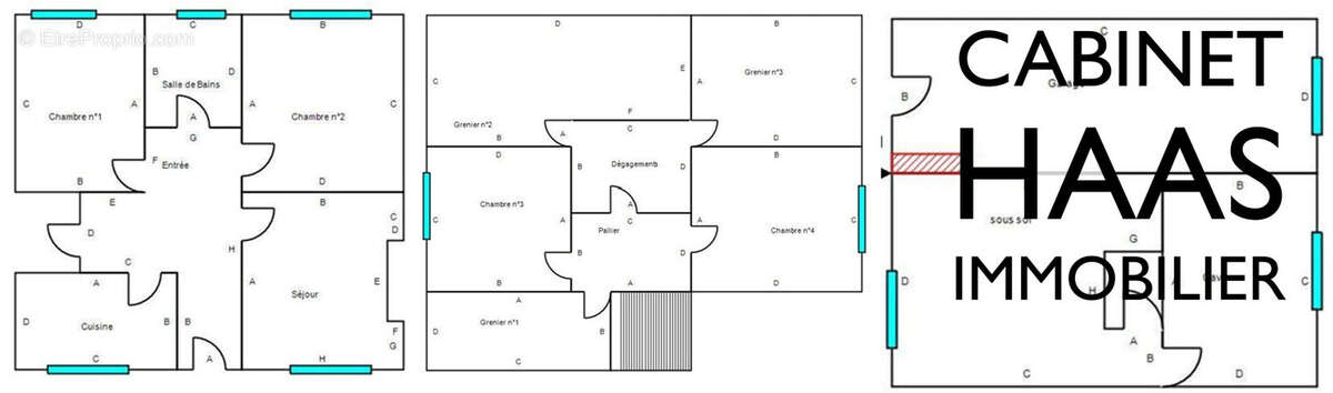
N'hésitez pas à regarder le croquis - Centre-ville Villecresnes - Sur une parcelle de 380 m², une maison à rénover d'une surface d'environ 126 m² au sol et qui se répartie sur trois niveaux :
- Rez-de-chaussée : une entrée, une cuisine, un dégagement, un séjour, deux chambres de 13 m², une salle de bain et WC.
- 1er étage : deux chambres, un dégagement et combles à aménager
- Sous-sol : total semi enterré avec garage.
- Jardin
Chauffage individuel gaz avec chaudière récente. Raccordement tout à l'égout à prévoir.
Les + : charmes de l'ancien avec hauteur sous plafonds et cheminée, possibilité de créer une chambre ou salle de sport ... dans la sous-sol semi enterré (déjà présence de fenêtres)

250 000 € dont 6% d'honoraires à la charge de l'acquéreur. DPE F. Les consommations annuelles sont estimées entre 3 871 € et 5 237 € (avant rénovation !)




Honoraires inclus de 6.38% TTC à la charge de l'acquéreur. Prix hors honoraires 235 000 €. Classe énergie G, Classe climat G Logement à consommation énergétique excessive. Montant estimé des dépenses annuelles d'énergie pour un usage standard : entre 3871.00 € et 5237.00 € sur les années 2021, 2022 et 2023 (abonnements compris). Les informations sur les risques auxquels ce bien est exposé sont disponibles sur le site Géorisques : georisques.gouv.fr.
.
Nous sommes une agence immobilière familiale indépendante spécialisée dans les métiers du syndic de copropriété, de la gestion locative et de la transaction immobilière.

Nous nous efforçons de concevoir une nouvelle vision de l'immobilier depuis le lancement Notre modèle repose sur nos valeurs, notre réactivité et nos collaborateurs de confiance.
Notre objectif était de mettre en place une agence familiale, indépendante et humaine.
Depuis, notre famille a élargi ses effectifs en conservant le même objectif :
répondre aux attentes de nos clients en tissant des liens entre nos trois métiers afin d'être
toujours plus agile.
N'hésitez pas à nous contacter pour nous confier votre projet.
Voir plus

Référence: VM388-HAAS
Honoraires d'agence de 6.38% à la charge de l'acquéreur
DPE
A
B
C
D
E
F
G
GES
A
B
C
D
E
F
G

Prêt immobilier

Vous souhaitez connaître votre capacité d’emprunt et trouver le meilleur crédit immobilier ?
Réaliser une simulation gratuite

Maison - Maison à VILLECRESNES
Maison
Maison (1) - Maison à VILLECRESNES
Maison (1)
croquis - Maison à VILLECRESNES
croquis
Ce site est protégé par reCAPTCHA la Politique de confidentialité et les Conditions d’utilisation de Google s’appliquent.
Obtenir un prêt immobilier au meilleur taux ?

En poursuivant votre navigation sans modifier vos paramètres, vous acceptez l'utilisation de cookies susceptibles de réaliser des statistiques de visite. Cliquez ici pour plus d'informations