Bénéficiez des services de nos partenaires locaux soigneusement sélectionnés
pour vous accompagner dans votre parcours d'achat immobilier

Voir tous les partenaires locaux

Vente t3 85m2 bordeaux (33000)

— Bordeaux 33000 —
379 000 €
85 m²
3 pièces

Nos partenaires locaux
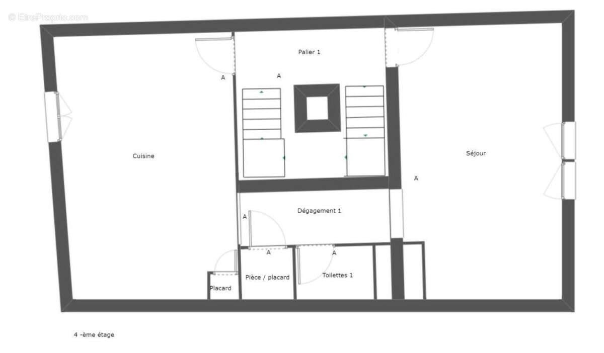
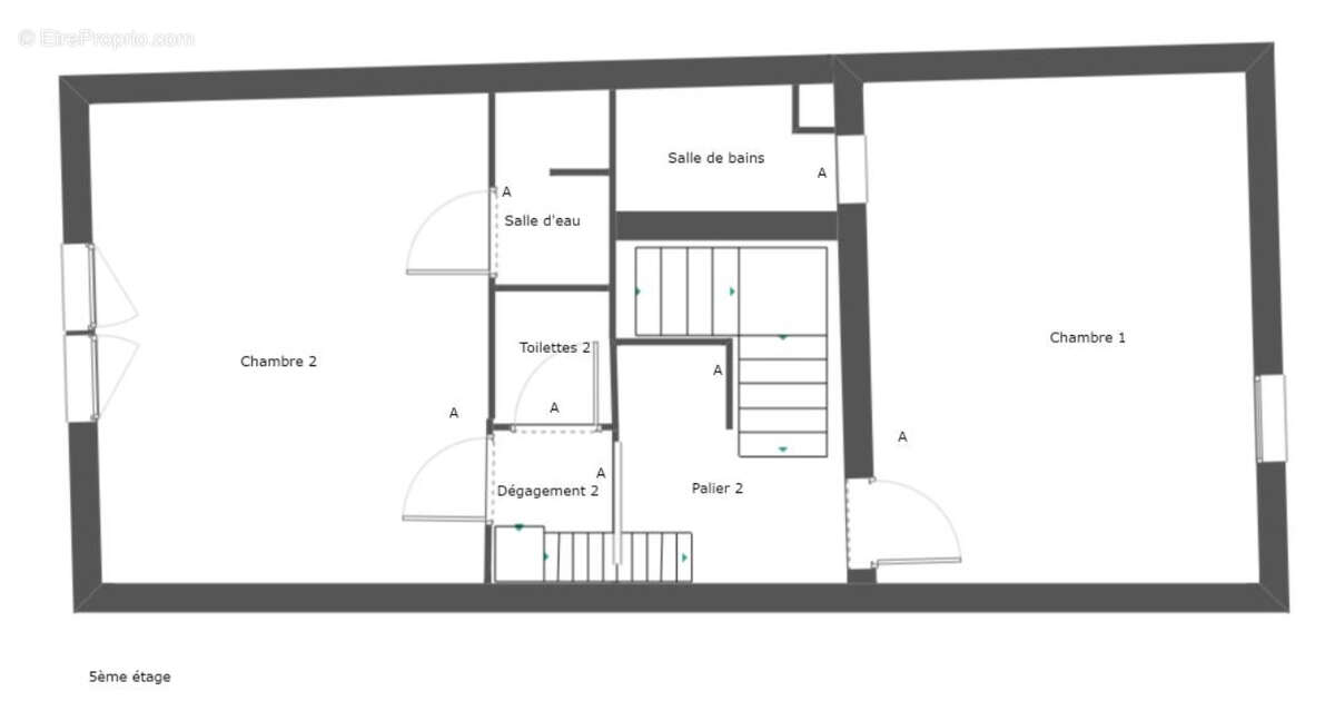
33000 - BORDEAUX - SAINT-PAUL. C'est au DERNIER ETAGE d'un bel immeuble à deux pas des quais et de la PLACE DE LA BOURSE que prend place cet appartement en DUPLEX ESPRIT MAISON avec VUES PANORAMIQUES d'une surface au sol totale de 107m2. Il comprend une entrée accueillante, une pièce de vie chaleureuse avec VUE sur la FLECHE de SAINT-MICHEL, une cuisine équipée/aménagée avec VUE REMARQUABLE sur LA GARONNE et le PONT DE PIERRE, un WC indépendant. A l'étage, vous trouverez l'espace nuit avec deux chambres format SUITE PARENTALE avec salle d'eau et salle de bains privatives dont une chambre avec un espace mezzanine, idéal pour un bureau. Un WC indépendant complète ce niveau. Comme un air de campagne à la ville pour cet appartement coup de coeur. Chauffage électrique à inertie dernière génération. FIBRE OPTIQUE. INTERPHONE. IDEALEMENT SITUE et CALME. A PROXIMITE DES BORDS DE GARONNE, du COURS ALSACE-ET-LORRAINE et des TRAM A, C et D. A 5 min A PIED de l'EGLISE SAINT-PIERRE et de LA PLACE DE LA BOURSE.
PRIX : 379 000 euros
DPE : D - GES : D. Montant moyen estimé des dépenses annuelles d'énergie pour un usage standard établi à partir des prix de l'énergie de l'année 2021 compris entre 1278 euros et 1730 euros
Pour visiter et vous accompagner dans votre projet, contactez Arnaud FRAYRET, au [Coordonnées masquées] ou par courriel à [Coordonnées masquées]
Cette présente annonce a été rédigée sous la responsabilité éditoriale de Arnaud FRAYRET agissant sous le statut d'agent commercial immatriculé au RSAC Nantes 837775543 auprès de la SAS PROPRIETES PRIVEES, Réseau national immobilier, au capital de 40000 euros, 44 ALLÉE DES CINQ CONTINENTS - ZAC LE CHÊNE FERRÉ, 44120 VERTOU, RCS Nantes n° 487 624 777 00040, Carte professionnelle T et G n° CPI 44[Coordonnées masquées]10 388 CCI Nantes-Saint Nazaire. Garantie GALIAN - 89 rue de la Boétie, 75008 Paris.
Mandat réf : 415950 - Le professionnel garantit et sécurise votre projet immobilier. (4.26 % honoraires TTC à la charge de l'acquéreur.)
Copropriété de 4 lots ().

Charges annuelles : 2671 euros.
Arnaud FRAYRET (EI) Agent Commercial - Numéro RSAC : STRASBOURG 837775543 - .
Les informations sur les risques auxquels ce bien est exposé sont disponibles sur le site Géorisques : www. georisques. gouv. fr
Voir plus

Référence: 415950SARY
Bien en copropriété. Nombre de lots : 4. Charges de copropriété : 222 €.
Honoraires d'agence de 4.26% à la charge de l'acquéreur
DPE
A
B
C
D
E
F
G
GES
A
B
C
D
E
F
G

Prêt immobilier

Vous souhaitez connaître votre capacité d’emprunt et trouver le meilleur crédit immobilier ?
Réaliser une simulation gratuite

Appartement à BORDEAUX
Appartement à BORDEAUX
Appartement à BORDEAUX
Appartement à BORDEAUX
Appartement à BORDEAUX
Appartement à BORDEAUX
Appartement à BORDEAUX
Appartement à BORDEAUX
Appartement à BORDEAUX
Appartement à BORDEAUX
Appartement à BORDEAUX
Appartement à BORDEAUX
Ce site est protégé par reCAPTCHA la Politique de confidentialité et les Conditions d’utilisation de Google s’appliquent.
Obtenir un prêt immobilier au meilleur taux ?

En poursuivant votre navigation sans modifier vos paramètres, vous acceptez l'utilisation de cookies susceptibles de réaliser des statistiques de visite. Cliquez ici pour plus d'informations