Bénéficiez des services de nos partenaires locaux soigneusement sélectionnés
pour vous accompagner dans votre parcours d'achat immobilier

Vente maison 210m2 bordeaux (33800)

— Bordeaux 33800 —
725 000 €
210 m²
9 pièces

Nos partenaires locaux
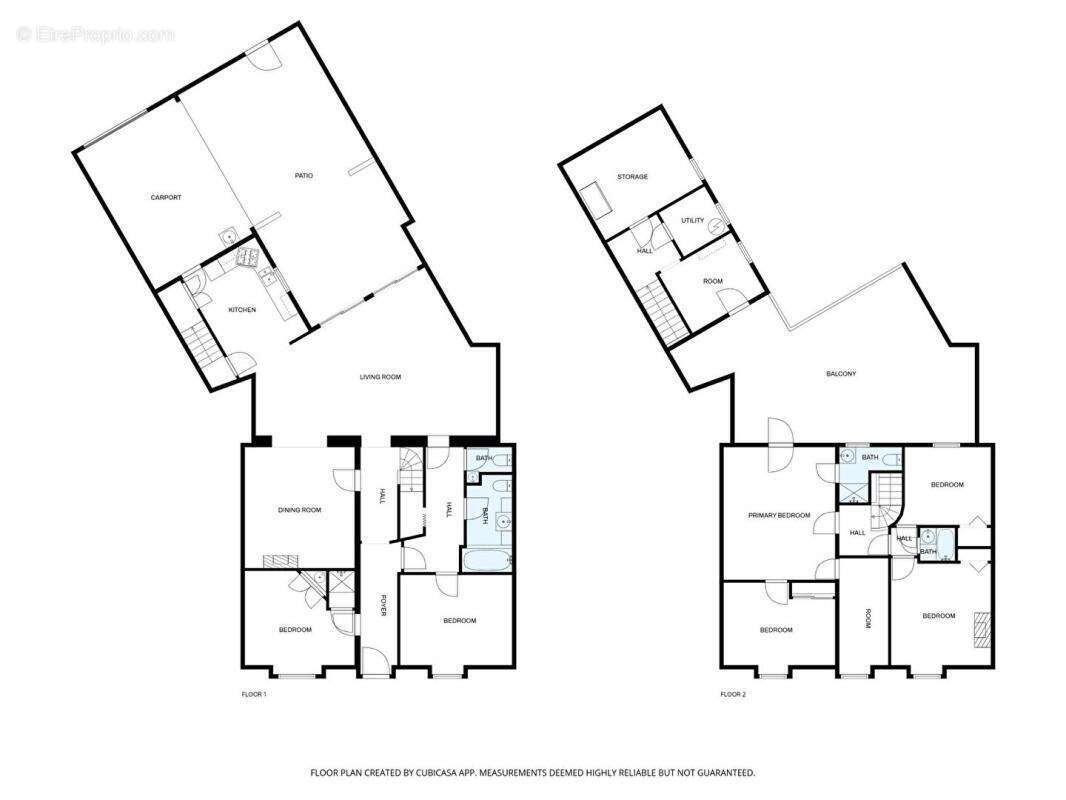
33800 - BORDEAUX - NANSOUTY. IDEAL INVESTISSEUR, PROFESSION LIBERALE ou RESIDENCE PRINCIPALE. Situé dans le quartier recherché NANSOUTY, A PROXIMITE de la PLACE NANSOUTY, cette ANCIENNE BOULANGERIE ENTIÈREMENT RÉHABILITÉE, avec TERRASSES et GARAGE, séduit par son POTENTIEL RARE. TRAVERSANT sur deux rues et ACCESSIBLE par les DEUX RUES, ce bien est distribué sur deux niveaux. Une belle entrée conduit à une VASTE pièce à vivre OUVERTE salon/salle-à-manger-cuisine de 70m2 donnant une terrasse de 50m2 exposée SUD avec arbres fruitiers. Deux chambres dont une avec douche privative, une salle de bains, un WC et un cellier complètent ce niveau. Un ÉLÉGANT ESCALIER EN PIERRE conduit à l'étage et dessert trois CHAMBRES LUMINEUSES, une salle de jeux, un bureau, une salle de bains, une salle d'eau avec WC. Une BELLE TERRASSE de 40m2 offrant un ESPACE EXTÉRIEUR AGRÉABLE pouvant accueillir un jacuzzi, porte à 90m2 la surface extérieure totale. En agréments, vous trouverez un GARAGE de 21m2 ainsi qu'un T2 de 26m2, aujourd'hui accessible par la cuisine, pouvant bénéficier d'un accès indépendant du reste de la maison pour générer des revenus locatifs. Ce bien offre de nombreuses POSSIBILITÉS D'AMÉNAGEMENT : DIVISER LE BIEN EN PLUSIEURS APPARTEMENTS, ou encore d'y INSTALLER UN CABINET PROFESSIONNEL notamment.
Des travaux d'embellissement sont à prévoir pour redonner toutes ses lettres de noblesse à cet ensemble immobilier qui présente un fort potentiel tant pour un usage familial que pour un projet mixte (professions libérales, investissement locatif, coliving). Il constitue un TRES BON PLACEMENT PATRIMONIAL. A 5 min A PIED de la PLACE NANSOUTY et ses commerces de bouche, son esprit village. A 15 min A PIED de la GARE SAINT-JEAN, du foodcourt de l'ATELIER DES CITERNES et du FUTUR PARC de 1,2ha. A 15 min A PIED du marché des Capucins, de la BARRIERE DE BEGLES, ses nombreux commerces (poissonnerie Vents et Marées) et son marché les mercredis.
PRIX : 725 000 euros
DPE : D - GES : D. Montant moyen estimé des dépenses annuelles d'énergie pour un usage standard établi à partir des prix de l'énergie de l'année 2021 : entre 1960 euros et 2700 euros
Pour visiter et vous accompagner dans votre projet, contactez Arnaud FRAYRET, au [Coordonnées masquées] ou par courriel à [Coordonnées masquées]
Cette présente annonce a été rédigée sous la responsabilité éditoriale de Arnaud FRAYRET agissant sous le statut d'agent commercial immatriculé au RSAC Nantes 837775543 auprès de la SAS PROPRIETES PRIVEES, Réseau national immobilier, au capital de 40000 euros, 44 ALLÉE DES CINQ CONTINENTS - ZAC LE CHÊNE FERRÉ, 44120 VERTOU, RCS Nantes n° 487 624 777 00040, Carte professionnelle T et G n° CPI 44[Coordonnées masquées]10 388 CCI Nantes-Saint Nazaire. Garantie GALIAN - 89 rue de la Boétie, 75008 Paris.
Mandat réf : 425167 - Le professionnel garantit et sécurise votre projet immobilier. (3.57 % honoraires TTC à la charge de l'acquéreur.)

Arnaud FRAYRET (EI) Agent Commercial - Numéro RSAC : STRASBOURG 837775543 - .
Les informations sur les risques auxquels ce bien est exposé sont disponibles sur le site Géorisques : www. georisques. gouv. fr
Voir plus

Référence: 425167DARY
Honoraires d'agence de 3.57% à la charge de l'acquéreur
DPE
A
B
C
D
E
F
G
GES
A
B
C
D
E
F
G

Prêt immobilier

Vous souhaitez connaître votre capacité d’emprunt et trouver le meilleur crédit immobilier ?
Réaliser une simulation gratuite

Appartement à BORDEAUX
Appartement à BORDEAUX
Appartement à BORDEAUX
Appartement à BORDEAUX
Appartement à BORDEAUX
Appartement à BORDEAUX
Appartement à BORDEAUX
Appartement à BORDEAUX
Appartement à BORDEAUX
Appartement à BORDEAUX
Appartement à BORDEAUX
Appartement à BORDEAUX
Appartement à BORDEAUX
Appartement à BORDEAUX
Appartement à BORDEAUX
Appartement à BORDEAUX
Appartement à BORDEAUX
Ce site est protégé par reCAPTCHA la Politique de confidentialité et les Conditions d’utilisation de Google s’appliquent.
Obtenir un prêt immobilier au meilleur taux ?

En poursuivant votre navigation sans modifier vos paramètres, vous acceptez l'utilisation de cookies susceptibles de réaliser des statistiques de visite. Cliquez ici pour plus d'informations