Bénéficiez des services de nos partenaires locaux soigneusement sélectionnés
pour vous accompagner dans votre parcours d'achat immobilier

Appartement rare sur le secteur

— Vaux-Le-Penil 77000 —
185 000 €
67 m²
3 pièces
parkingbalcon/terrasseascenseur

Nos partenaires locaux
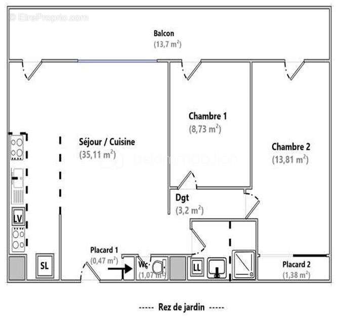
Découvrez cet appartement de 67.51 m², situé au rez-de-chaussée d'une copropriété bien entretenue. Niché dans une ville dynamique, ce bien lumineux vous offre un cadre de vie idéal avec ses 3 pièces dont une terrasse et un parking.

L'intérieur bien agencé se compose d'un séjour convivial et d'une cuisine fonctionnelle. Vous apprécierez la cave pour un espace de stockage supplémentaire. Sans travaux à prévoir, cet appartement est prêt à vous accueillir.

Proche des transports, commerces et services, vous bénéficiez d'un emplacement privilégié pour un mode de vie pratique et agréable.

N'attendez plus pour découvrir ce lieu paisible et fonctionnel, et contactez NATACHA YVER pour une visite.

Cette annonce référence 314649 vous est présentée par votre agent commercial BSK Immobilier NATACHA YVER (EI) immatriculé au RSAC de MELUN (77000) sous le numéro 92233251500027.

Prix du bien : 185 000,00 €
Les honoraires d'agence sont à la charge du vendeur.

A propos de la copropriété :
Pas de procédure en cours.
Nombre de lots : 602
Charges prévisionnelles annuelles : 2 326,14 €

A propos des performances énergétiques :
Date de réalisation du diagnostic énergétique : 25/03/2025
Score DPE : 256 kWhEP/m²/an
Score GES : 53 kgepCO2/m²/an
Montant estimé des dépenses annuelles d'énergie pour un usage standard : entre 1470.00 € et 1960.00 € par an. Prix moyens des énergies indexés sur l'année 2021 (abonnements compris).

Les informations sur les risques auxquels ce bien est exposé sont disponibles sur le site Géorisques : www.georisques.gouv.fr
Voir plus

Référence: 314649
Bien en copropriété. Nombre de lots : 602. Charges de copropriété : 193 €.
Honoraires à la charge du vendeur.
DPE
A
B
C
D
E
F
G
GES
A
B
C
D
E
F
G

Prêt immobilier

Vous souhaitez connaître votre capacité d’emprunt et trouver le meilleur crédit immobilier ?
Réaliser une simulation gratuite

Appartement à VAUX-LE-PENIL
Appartement à VAUX-LE-PENIL
Appartement à VAUX-LE-PENIL
Appartement à VAUX-LE-PENIL
Appartement à VAUX-LE-PENIL
Appartement à VAUX-LE-PENIL
Appartement à VAUX-LE-PENIL
Appartement à VAUX-LE-PENIL
Appartement à VAUX-LE-PENIL
Appartement à VAUX-LE-PENIL
Appartement à VAUX-LE-PENIL
Ce site est protégé par reCAPTCHA la Politique de confidentialité et les Conditions d’utilisation de Google s’appliquent.
Obtenir un prêt immobilier au meilleur taux ?

En poursuivant votre navigation sans modifier vos paramètres, vous acceptez l'utilisation de cookies susceptibles de réaliser des statistiques de visite. Cliquez ici pour plus d'informations