Maison 150m² à bois-d'arcy

— Bois-D'arcy 78390 —
519 000 €
150 m² / 393 m²
6 pièces
jardin

78390 - BOIS-D'ARCY - QUARTIER RESIDENTIEL - 6 PIÈCES - 4 CHAMBRES - 150 M² - JARDIN 393 M² - CALME - LUMINEUX - SANS VIS A VIS.

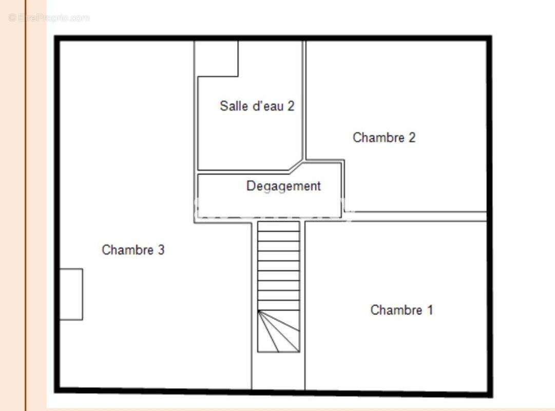
efficity vous propose cette charmante maison indépendante située dans un quartier résidentiel recherché de Bois-d'Arcy. Avec ses 6 pièces et ses 4 chambres, cette propriété de 240 m² utile (125 m² loi carrez) offre un cadre de vie idéal pour une famille en quête de tranquillité et de luminosité.

Cette maison, rénovée en 2010, est en excellent état général, offrant un espace de vie chaleureux et fonctionnel. Dès l'entrée, la luminosité naturelle inonde chaque pièce, créant une atmosphère agréable et accueillante. L'espace salon, salle à manger et véranda de 50 m² constitue un espace convivial de réception où partager des moments en famille ou entre amis.

Située sur un terrain de 393 m², la maison bénéficie d'une véranda chauffée et d'un jardin sans vis à vis exposé plein Sud, offrant ainsi un espace extérieur privilégié pour profiter des beaux jours en toute tranquillité. Le calme environnant garantit une atmosphère sereine et paisible, idéale pour se ressourcer après une journée bien remplie.

Le sous-sol total de 70 m² regroupe le garage, la buanderie, l'atelier, une cave de 15 m2, une chambre, un WC séparé et permet avec les 2 autres niveaux de la maison une organisation optimale des espaces de vie. L'exposition plein Sud assure une belle luminosité à toutes les pièces, créant une ambiance agréable et chaleureuse.

Construite entre 1980, cette maison vient d'être rénovée (pompe à chaleur et peinture complète). Ne manquez pas cette opportunité d'acquérir une maison lumineuse, calme et fonctionnelle dans un quartier résidentiel recherché de Bois-d'Arcy.
Les informations sur les risques auxquels ce bien est exposé sont disponibles sur le site Georisque : georisques. gouv. fr
Jacques Clave De Otaola - EI - est Agent Commercial mandataire en immobilier, immatriculé au Registre Spécial des Agents Commerciaux du Tribunal de Commerce de Versailles sous le n°788817237.
Siège social du mandant : effiCity, 48 avenue de Villiers - 75017 PARIS - Société par Actions Simplifiée, société au capital de 132 373,05 euros, immatriculée au RCS Paris 497 617 746 et titulaire de la Carte professionnelle CPI 75[Coordonnées masquées]02 025 - CCI Paris IDF - Caisse de Garantie : GALIAN Assurances 89 rue de la Boétie 75008 Paris
Voir plus

Référence: 201655
Honoraires d'agence de 3.8% à la charge de l'acquéreur
Barème des honoraires
DPE
A
B
C
D
E
F
G
GES
A
B
C
D
E
F
G

Prêt immobilier

Vous souhaitez connaître votre capacité d’emprunt et trouver le meilleur crédit immobilier ?
Réaliser une simulation gratuite

Maison à BOIS-D'ARCY
Maison à BOIS-D'ARCY
Maison à BOIS-D'ARCY
Maison à BOIS-D'ARCY
Maison à BOIS-D'ARCY
Maison à BOIS-D'ARCY
Maison à BOIS-D'ARCY
Maison à BOIS-D'ARCY
Maison à BOIS-D'ARCY
Maison à BOIS-D'ARCY
Maison à BOIS-D'ARCY
Maison à BOIS-D'ARCY
Maison à BOIS-D'ARCY
Maison à BOIS-D'ARCY
Maison à BOIS-D'ARCY
Ce site est protégé par reCAPTCHA la Politique de confidentialité et les Conditions d’utilisation de Google s’appliquent.
Obtenir un prêt immobilier au meilleur taux ?

En poursuivant votre navigation sans modifier vos paramètres, vous acceptez l'utilisation de cookies susceptibles de réaliser des statistiques de visite. Cliquez ici pour plus d'informations