Bénéficiez des services de nos partenaires locaux soigneusement sélectionnés
pour vous accompagner dans votre parcours d'achat immobilier

Appartement 24m² à montreuil

— Montreuil 93100 —
213 000 €
25 m²
2 pièces

Nos partenaires locaux
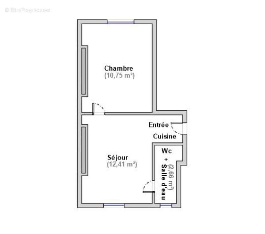
Nous vous proposons à 600m du métro Bérault et du RER Vincennes, dans une copropriété ancienne entièrement rénové, ne nécessitant aucun travaux, un charmant 2 pièces au 3 éme étage au calme comprenant une entrée avec une cuisine semi-ouverte aménagée et équipée, un séjour, une chambre avec placard et une salle d'eau avec WC. Une cave complète ce bien.

Nombre de lots : 24 dont 12 lots d'habitation.
Charges annuelles : 955€
Pas de procédure en cours.
Honoraires à la charge du vendeur.

La présente annonce immobilière a été rédigée sous la responsabilité éditoriale de Hawa DIARRA immatriculé au Registre des Sociétés du Tribunal de Commerce de Paris sous le numéro RCS : 937 605 921
Les informations sur les risques auxquels ce bien est exposé sont disponibles sur le site Géorisques : www.georisques.gouv.fr

La présente annonce immobilière a été rédigée sous la responsabilité éditoriale de Monsieur JAHMAN EI, Agent commercial inscrit au RSAC sous le numéro 830 556 502 Paris.


Voir plus

Référence: SWIX5738C
Bien en copropriété. Nombre de lots : 24. Charges de copropriété : 1680 €.
Honoraires à la charge du vendeur.
Barème des honoraires
DPE
A
B
C
D
E
F
G
GES
A
B
C
D
E
F
G

Prêt immobilier

Vous souhaitez connaître votre capacité d’emprunt et trouver le meilleur crédit immobilier ?
Réaliser une simulation gratuite

Appartement à MONTREUIL
Appartement à MONTREUIL
Appartement à MONTREUIL
Appartement à MONTREUIL
Appartement à MONTREUIL
Appartement à MONTREUIL
Appartement à MONTREUIL
Appartement à MONTREUIL
Ce site est protégé par reCAPTCHA la Politique de confidentialité et les Conditions d’utilisation de Google s’appliquent.
Obtenir un prêt immobilier au meilleur taux ?

En poursuivant votre navigation sans modifier vos paramètres, vous acceptez l'utilisation de cookies susceptibles de réaliser des statistiques de visite. Cliquez ici pour plus d'informations