Bénéficiez des services de nos partenaires locaux soigneusement sélectionnés
pour vous accompagner dans votre parcours d'achat immobilier

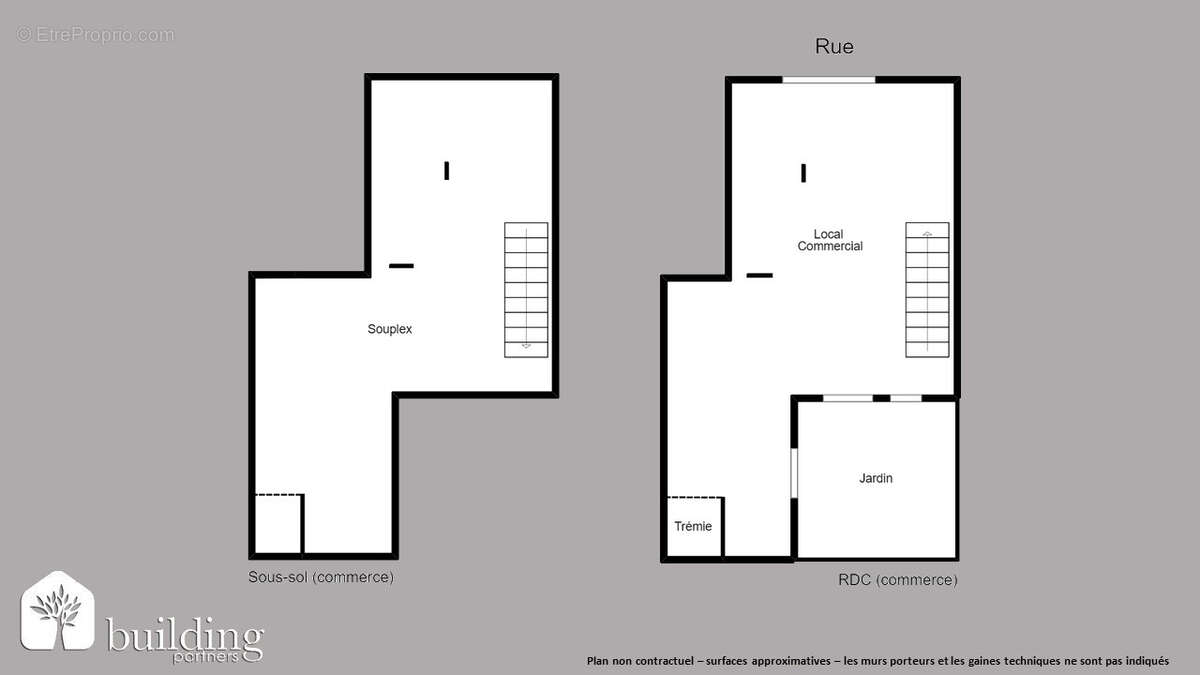
À vendre - local commercial - batignolles - 236,5m² + jardin privatif de 37m²

— Paris-17e 75017 —
1 923 525 €
240 m²
1 pièce

Nos partenaires locaux
Idéalement situé au coeur des Batignolles, BUILDING PARTNERS vous propose ce bien rare : dans un immeuble de standing, un local commercial situé au RDC et sous-sol de 236,5m² Carrez (RDC : 115.35m² / SS : 121.15m²) et 37m² de jardin privatif. Cet immeuble séduit par son esthétique, sa grande luminosité, son agencement optimal et la qualité de ses prestations. L'emplacement est idéal, dans un quartier vivant et très recherché. N'hésitez pas à nous contacter pour obtenir plus d'informations ou organiser une visite privée. Depuis 1993, BUILDING PARTNERS accompagne les propriétaires dans la vente de biens immobiliers de standing sur l'Ouest Parisien. Notre force : Une organisation unique avec deux rôles experts : >Les Brokers, spécialisés dans la prospection et la valorisation de votre bien, >Les Sellers, experts en négociation et en mise en relation avec notre portefeuille d'acheteurs qualifiés. Avec 5 agences implantées au coeur des quartiers les plus recherchés (Paris 16e, Paris 17e, Neuilly, Levallois, Courbevoie), nous vous offrons une visibilité maximale, un accompagnement personnalisé et un engagement total jusqu'à la signature. Confiez-nous votre bien pour une vente rapide, au meilleur prix. Estimation offerte, confidentielle et sans engagement. Copropriété de 10 lots - dont 8 lots habitation.(Pas de procédure en cours).
Voir plus

Référence: 12144
Bien en copropriété. Nombre de lots : 10.
Honoraires à la charge du vendeur.
Barème des honoraires

Prêt immobilier

Vous souhaitez connaître votre capacité d’emprunt et trouver le meilleur crédit immobilier ?
Réaliser une simulation gratuite

Commerce à PARIS-17E
Commerce à PARIS-17E
Commerce à PARIS-17E
Commerce à PARIS-17E
Commerce à PARIS-17E
Commerce à PARIS-17E
Commerce à PARIS-17E
Commerce à PARIS-17E
Commerce à PARIS-17E
Commerce à PARIS-17E
Commerce à PARIS-17E
Commerce à PARIS-17E
Commerce à PARIS-17E
Ce site est protégé par reCAPTCHA la Politique de confidentialité et les Conditions d’utilisation de Google s’appliquent.
Obtenir un prêt immobilier au meilleur taux ?

En poursuivant votre navigation sans modifier vos paramètres, vous acceptez l'utilisation de cookies susceptibles de réaliser des statistiques de visite. Cliquez ici pour plus d'informations