Bénéficiez des services de nos partenaires locaux soigneusement sélectionnés
pour vous accompagner dans votre parcours d'achat immobilier

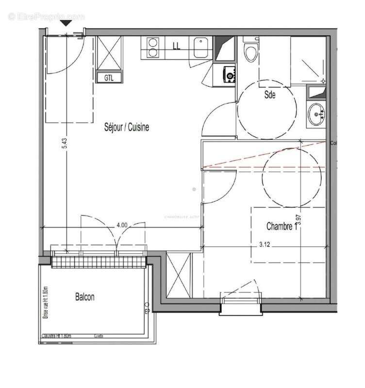
Appartement 42m² à cenon

— Cenon 33150 —
189 000 €
42 m²
2 pièces
parkingbalcon/terrasseascenseur

Nos partenaires locaux
Situé à Cenon, quartier Mairie, au pied du tramway, cet appartement bénéficie d'un emplacement particulièrement recherché, face à l'arrêt Carnot – Mairie de Cenon (ligne A), offrant ainsi un accès direct et rapide au centre de Bordeaux et à l'ensemble de la métropole. Au sein d'une résidence récente, l'appartement de 42m2 se compose d'une pièce de vie lumineuse avec cuisine américaine, ouverte sur un grand balcon, véritable prolongement de l'espace intérieur. La partie nuit offre une grande chambre avec placards intégrés, ainsi qu'une salle de douche avec toilettes, fonctionnelle et bien agencée. Une place de stationnement privative complète ce bien, un atout appréciable au quotidien. Grâce à sa localisation stratégique, sa résidence moderne et ses prestations, cet appartement constitue une opportunité idéale pour un investissement personnel ou professionnel avec par exemple la possibilité de récupération de la TVA selon le régime para hôtelier applicable. Un bien clé en main, parfaitement adapté à un investissement sécurisé ou à un mode de vie urbain privilégiant les transports en commun. Contactez votre Agent AXO - L'immobilier Actif au [Coordonnées masquées], Anne MARTINEZ-CHARPENTIER (E.I) Agent Commercial RSAC 523.299.386 Bordeaux. Plus d'informations sur www.axo.immo (réf. 85002122362). Honoraires à la charge du vendeur. Les informations sur les risques auxquels ce bien est exposé sont disponibles sur le site Géorisques : https://www.georisques.gouv.fr/
Voir plus

Référence: 33973
Bien en copropriété. Nombre de lots : 154. Charges de copropriété : 810 €.
Honoraires à la charge du vendeur.
Barème des honoraires
DPE
A
B
C
D
E
F
G
GES
A
B
C
D
E
F
G

Prêt immobilier

Vous souhaitez connaître votre capacité d’emprunt et trouver le meilleur crédit immobilier ?
Réaliser une simulation gratuite

Appartement à CENON
Appartement à CENON
Appartement à CENON
Appartement à CENON
Appartement à CENON
Appartement à CENON
Appartement à CENON
Appartement à CENON
Ce site est protégé par reCAPTCHA la Politique de confidentialité et les Conditions d’utilisation de Google s’appliquent.
Obtenir un prêt immobilier au meilleur taux ?

En poursuivant votre navigation sans modifier vos paramètres, vous acceptez l'utilisation de cookies susceptibles de réaliser des statistiques de visite. Cliquez ici pour plus d'informations