Bénéficiez des services de nos partenaires locaux soigneusement sélectionnés
pour vous accompagner dans votre parcours d'achat immobilier

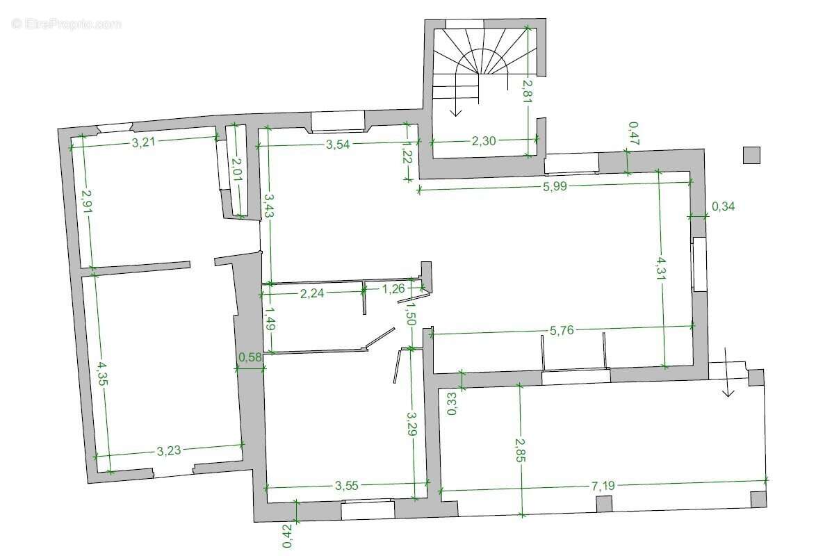
Maison 154m² à meyrargues

— Meyrargues 13650 —
508 800 €
154 m² / 4 000 m²
6 pièces
parkingbalcon/terrasse

Nos partenaires locaux
À 15 minutes d'Aix-en-Provence, découvrez un bien rare au fort potentiel : une maison R+1 avec dépendances, à réinventer entièrement selon votre goût et votre projet. Au calme et sans vis à vis.
Le RdC d'environ 118 m² dont une terrasse couverte est à repenser dans la distribution des pièces. L'étage de plus de 76m² bordé d'un balcon-coursive de plus de 30m² est hors d'eau et et pourra accueillir jusqu'à 3 ou 4 chambres ou bureaux à définir. La hauteur sous plafond permet également d'envisager une grande mezzanine.
Le terrain de près de 4000m² est plat et joliment arboré (pommier, pruniers, cognassiers, acacias, vigne et plantes aromatiques). Une source d'eau claire alimente le site en abondance et sans interruption. Elle peut aisément alimenter la maison en eau potable, un bassin d'agrément, une piscine et un système d'arrosage.
Des équipements solaires permettraient de compléter l'esprit d'autonomie du lieu.
Des devis ont été établis pour l'ensemble des travaux intérieurs pour l'habitation principale pour environ 200K€.
Cette propriété est donc l'occasion de constituer un bien hors du commun à un coût raisonnable que ce soit pour un lieu d'habitation, un espace en partie commercial pour un particulier ou pour un investisseur. Son emplacement permet un accès rapide aux écoles, commerces, transports en commun, et à la gare SNCF non loin.
Les informations sur les risques auxquels ce bien est exposé sont disponibles sur le site Géorisques : www.georisques.gouv.fr » AGENCE HAMILTON PROVENCE - Patrick SINEGRE - [Coordonnées masquées] - Plus d'informations sur www.agence-hamilton.com (réf. 12031373219)
Voir plus

Référence: DA9C4873A6934298
Honoraires à la charge du vendeur.

Prêt immobilier

Vous souhaitez connaître votre capacité d’emprunt et trouver le meilleur crédit immobilier ?
Réaliser une simulation gratuite

Maison à MEYRARGUES
Maison à MEYRARGUES
Maison à MEYRARGUES
Maison à MEYRARGUES
Maison à MEYRARGUES
Maison à MEYRARGUES
Maison à MEYRARGUES
Maison à MEYRARGUES
Maison à MEYRARGUES
Maison à MEYRARGUES
Maison à MEYRARGUES
Maison à MEYRARGUES
Maison à MEYRARGUES
Maison à MEYRARGUES
Maison à MEYRARGUES
Maison à MEYRARGUES
Maison à MEYRARGUES
Maison à MEYRARGUES
Maison à MEYRARGUES
Maison à MEYRARGUES
Ce site est protégé par reCAPTCHA la Politique de confidentialité et les Conditions d’utilisation de Google s’appliquent.
Obtenir un prêt immobilier au meilleur taux ?

En poursuivant votre navigation sans modifier vos paramètres, vous acceptez l'utilisation de cookies susceptibles de réaliser des statistiques de visite. Cliquez ici pour plus d'informations