Maison d'habitation avec local commercial et 539m2 de terrain cl

— Autun 71400 —
195 000 €
128 m² / 539 m²
5 pièces

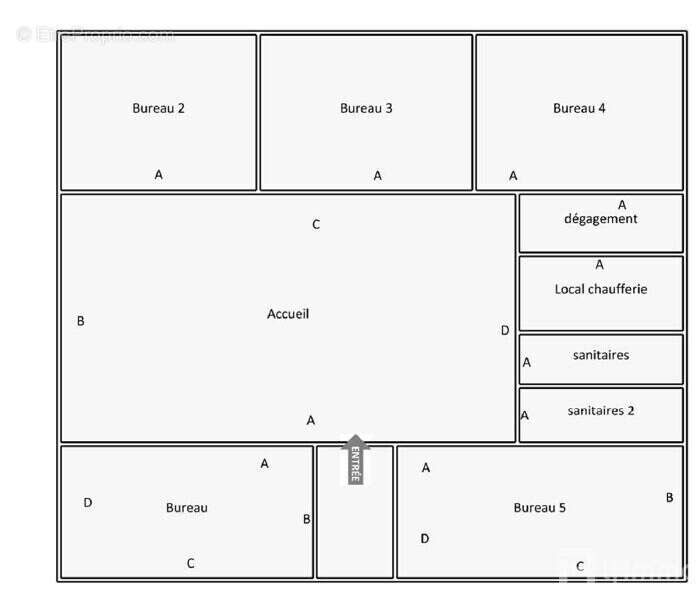
Je vous propose une maison d'habitation avec local commercial pouvant accueillir du public sur 539m2 de terrain clos et arboré à l'arrière avec des remises et orienté plein Sud, située à proximité du centre ville et de ses commerces. Elle se compose au RDC d'un local commercial d'environ 117m2 desservant un accueil et cinq bureaux et des sanitaires. Au 1er étage, un bel escalier vous conduit à un logement de 128m2 bien entretenu desservant un salon, un séjour tous deux parquetés, une cuisine aménagée et équipée, trois chambres spacieuses dont une avec salle d'eau, une salle de bain et un WC tous deux indépendants.
Double vitrage et volets roulants
Fibre
Le plus de cette maison, un spacieux grenier d'une superficie totale et aménageable.
Chaudière à gaz neuve, eau, électricité indépendant pour chaque niveau.
Toiture en très bon état
N'hésitez plus, bien à visiter rapidement!
Visites sur RDV

Annonce publiée par Catherine Boidron (EI) votre agent commercial en immobilier LF immo à Saint Germain Les Corbeil, 91250 immatriculé au RSAC de CHALON SUR SAONE sous le n°483 742 722 000 26. Consultez nos tarifs sur le site LF immo.

Les informations sur les risques auxquels ce bien est exposé sont disponibles sur le site Géorisques : www.georisques.gouv.fr.
Voir plus

Référence: fr063566
Honoraires à la charge du vendeur.
DPE
A
B
C
D
E
F
G
GES
A
B
C
D
E
F
G

Prêt immobilier

Vous souhaitez connaître votre capacité d’emprunt et trouver le meilleur crédit immobilier ?
Réaliser une simulation gratuite

Maison à AUTUN
Maison à AUTUN
Maison à AUTUN
Maison à AUTUN
Maison à AUTUN
Maison à AUTUN
Maison à AUTUN
Maison à AUTUN
Maison à AUTUN
Maison à AUTUN
Maison à AUTUN
Maison à AUTUN
Maison à AUTUN
Maison à AUTUN
Maison à AUTUN
Maison à AUTUN
Maison à AUTUN
Maison à AUTUN
Maison à AUTUN
Maison à AUTUN
Maison à AUTUN
Maison à AUTUN
Maison à AUTUN
Maison à AUTUN
Maison à AUTUN
Maison à AUTUN
Ce site est protégé par reCAPTCHA la Politique de confidentialité et les Conditions d’utilisation de Google s’appliquent.
Obtenir un prêt immobilier au meilleur taux ?

En poursuivant votre navigation sans modifier vos paramètres, vous acceptez l'utilisation de cookies susceptibles de réaliser des statistiques de visite. Cliquez ici pour plus d'informations