Bénéficiez des services de nos partenaires locaux soigneusement sélectionnés
pour vous accompagner dans votre parcours d'achat immobilier

Appartements t4 neufs - cave et places de parking

— Grandcamp-Maisy 14450 —
361 532 €
90 m²
4 pièces

Nos partenaires locaux
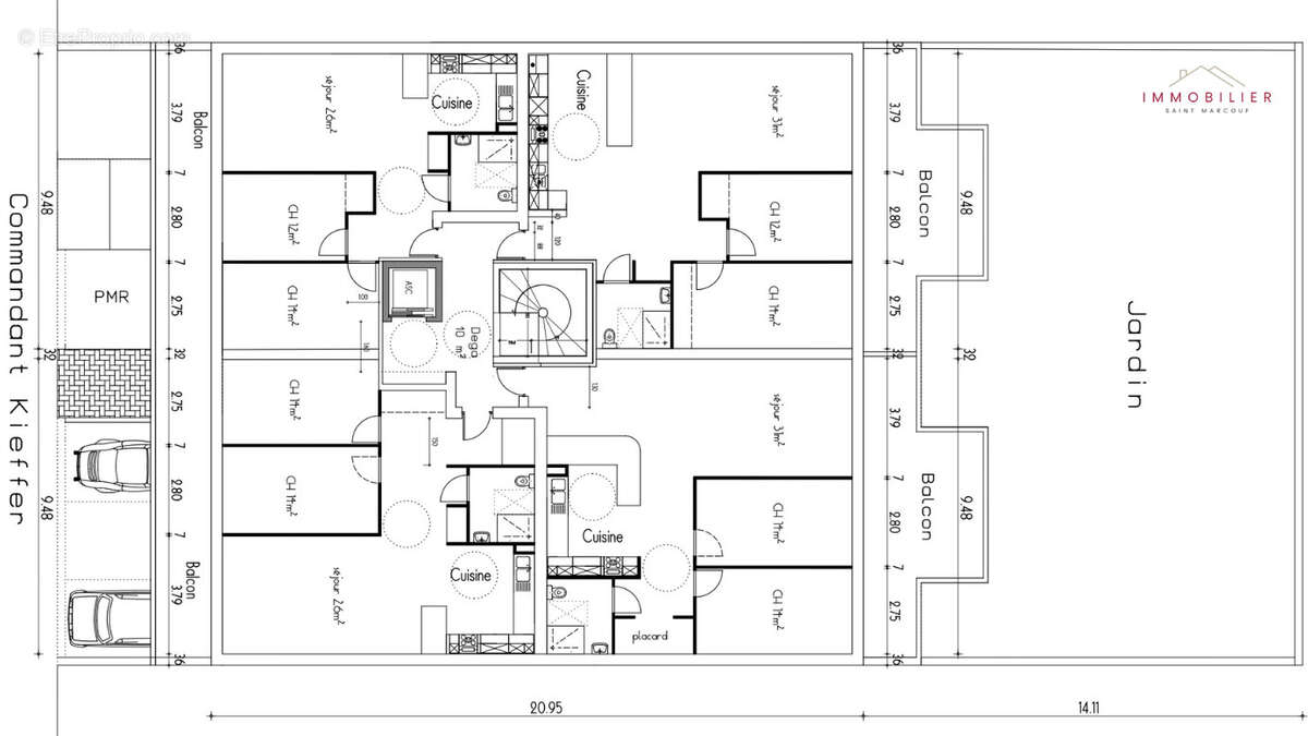
Venez découvrir les plans et acquérir votre appartement neuf idéalement situé à proximité du centre-ville de Grandcamp-Maisy.
L'immeuble, réparti sur trois niveaux, comprend sept appartements T4 spacieux allant de 90,18 m2 à 95,33 m2. Chaque logement dispose d’une cave privative et de deux places de parking.
Construit selon les normes actuelles d’isolation et de performance énergétique, cet immeuble garantit confort et qualité. Les prix s’étendent de 361 532 € à 382 178 € frais d’agence inclus.
Pour plus d’informations ou pour réserver votre appartement sur plan, n'hésitez pas à nous contacter !
Voir plus

Référence: 2266
Barème des honoraires

Prêt immobilier

Vous souhaitez connaître votre capacité d’emprunt et trouver le meilleur crédit immobilier ?
Réaliser une simulation gratuite

Appartement à GRANDCAMP-MAISY
Appartement à GRANDCAMP-MAISY
Appartement à GRANDCAMP-MAISY
Appartement à GRANDCAMP-MAISY
Appartement à GRANDCAMP-MAISY
Appartement à GRANDCAMP-MAISY
Ce site est protégé par reCAPTCHA la Politique de confidentialité et les Conditions d’utilisation de Google s’appliquent.
Obtenir un prêt immobilier au meilleur taux ?

En poursuivant votre navigation sans modifier vos paramètres, vous acceptez l'utilisation de cookies susceptibles de réaliser des statistiques de visite. Cliquez ici pour plus d'informations