Bénéficiez des services de nos partenaires locaux soigneusement sélectionnés
pour vous accompagner dans votre parcours d'achat immobilier

Trois pièces - doly - romainvilles

— Paris-19e 75019 —
359 000 €
57 m²
2 pièces
parkingascenseur

Nos partenaires locaux
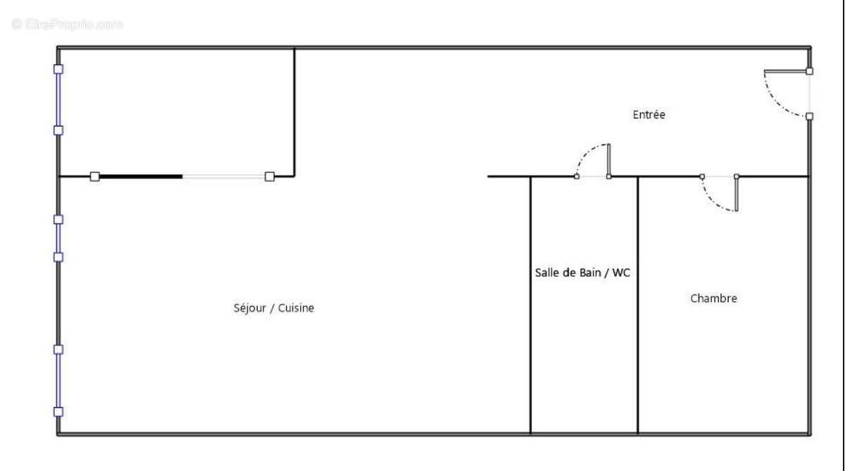
Situé à deux stations de la Porte des Lilas, à 3 minutes de la station Serge Gainsbourg ( ligne 11 ) ,du marché et des commerces, DOLY vous présente , ce bel appartement en parfait état situé dans une belle résidence du centre de Romainville,

Situé au deuxième étage sur trois par ascenseur, cet appartement de 57m2 sur rue et jardin se compose d'un spacieux séjour bénéficiant de la luminosité des trois fenêtres.

Ce grand espace de vie de plus de 30m2 est agrémenté d' une cuisine américaine entièrement équipée et d'un bureau pourvu de portes coulissantes et pouvant faire office de chambre d'appoint.

L'entrée aménageable dessert également une vaste chambre avec dressing tout hauteur au calme sur les jardins de la copropriété, une grande salle de bains avec baignoire, machine à laver et toilette ( possibilité de séparer les toilettes aisément ).

Une place de parking en sous-sol proposée au prix de 18 000€

La copropriété comporte deux entrées : avenue de Verdun et rue de Romainville
Voir plus

Référence: DOM26730-7
Honoraires d'agence de 5% à la charge de l'acquéreur
DPE
A
B
C
D
E
F
G
GES
A
B
C
D
E
F
G

Prêt immobilier

Vous souhaitez connaître votre capacité d’emprunt et trouver le meilleur crédit immobilier ?
Réaliser une simulation gratuite

Appartement à PARIS-19E
Appartement à PARIS-19E
Appartement à PARIS-19E
Appartement à PARIS-19E
Appartement à PARIS-19E
Appartement à PARIS-19E
Appartement à PARIS-19E
Ce site est protégé par reCAPTCHA la Politique de confidentialité et les Conditions d’utilisation de Google s’appliquent.
Obtenir un prêt immobilier au meilleur taux ?

En poursuivant votre navigation sans modifier vos paramètres, vous acceptez l'utilisation de cookies susceptibles de réaliser des statistiques de visite. Cliquez ici pour plus d'informations