Maison 208m² à angres

— Angres 62143 —
299 000 €
208 m² / 1 280 m²
5 pièces
parkingbalcon/terrasse

62143 - ANGRES - PAVILLON INDIVIDUEL - SECTEUR RESIDENTIEL CALME - 4 CHAMBRES - 208.0M² - A VISITER SANS TARDER !

Aurélie et Anthony HENOCQ, vos Conseillers immobilier Himmobilier by Efficity, vous proposent ce pavillon individuel en semi plein pied d'une surface de 208m² situé sur la commune d'Angres.

Au rez-de-chaussée, vous découvrez un hall d'entrée desservant un séjour spacieux avec sa cheminée feu de bois, une cuisine indépendante donnant l'accès vers un terrasse extérieure, deux chambres, un bureau, une salle de bain avec baignoire et douche, une véranda lumineuse.

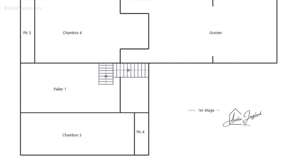
À l'étage, un grand palier de repos et deux autres chambres lumineuses complètent cet espace.

Nous continuons la visite avec le sous-sol complet comprenant un double garage, la chaufferie, la buanderie, une cave à vin et l'accès indépendant à une pièce de 39m².

A l'extérieur, vous apprécierez un magnifique jardin arboré et ses deux terrasses.
Vous bénéficiez de 6 places de stationnement intérieur, un vrai atout dans une propriété.

La maison est en bon état général, avec une exposition côté jardin idéale, offrant une luminosité naturelle tout au long de la journée.

Contactez-nous dès maintenant pour organiser une visite et laissez-vous séduire par le charme de cette propriété.
Les informations sur les risques auxquels ce bien est exposé sont disponibles sur le site Georisque : georisques. gouv. fr
Anthony Henocq - EI - est Agent Commercial mandataire en immobilier, immatriculé au Registre Spécial des Agents Commerciaux du Tribunal de Commerce de Arras sous le n°903611374.
Siège social du mandant : effiCity, 48 avenue de Villiers - 75017 PARIS - Société par Actions Simplifiée, société au capital de 132 373,05 euros, immatriculée au RCS Paris 497 617 746 et titulaire de la Carte professionnelle CPI 75[Coordonnées masquées]02 025 - CCI Paris IDF - Caisse de Garantie : GALIAN Assurances 89 rue de la Boétie 75008 Paris
Voir plus

Référence: 200854
Honoraires à la charge du vendeur.
Barème des honoraires
DPE
A
B
C
D
E
F
G
GES
A
B
C
D
E
F
G

Prêt immobilier

Vous souhaitez connaître votre capacité d’emprunt et trouver le meilleur crédit immobilier ?
Réaliser une simulation gratuite

Maison à ANGRES
Maison à ANGRES
Maison à ANGRES
Maison à ANGRES
Maison à ANGRES
Maison à ANGRES
Maison à ANGRES
Maison à ANGRES
Maison à ANGRES
Maison à ANGRES
Maison à ANGRES
Maison à ANGRES
Maison à ANGRES
Maison à ANGRES
Maison à ANGRES
Ce site est protégé par reCAPTCHA la Politique de confidentialité et les Conditions d’utilisation de Google s’appliquent.
Obtenir un prêt immobilier au meilleur taux ?

En poursuivant votre navigation sans modifier vos paramètres, vous acceptez l'utilisation de cookies susceptibles de réaliser des statistiques de visite. Cliquez ici pour plus d'informations