Bénéficiez des services de nos partenaires locaux soigneusement sélectionnés
pour vous accompagner dans votre parcours d'achat immobilier

Petersbach - maison avec fort potentiel

— Petersbach 67290 —
81 000 €
130 m² / 382 m²
6 pièces
parkingbalcon/terrassejardin

Nos partenaires locaux
Nouveauté chez Immo Hanau ! Quelques photos IA pour vous aidez à vous projeter !

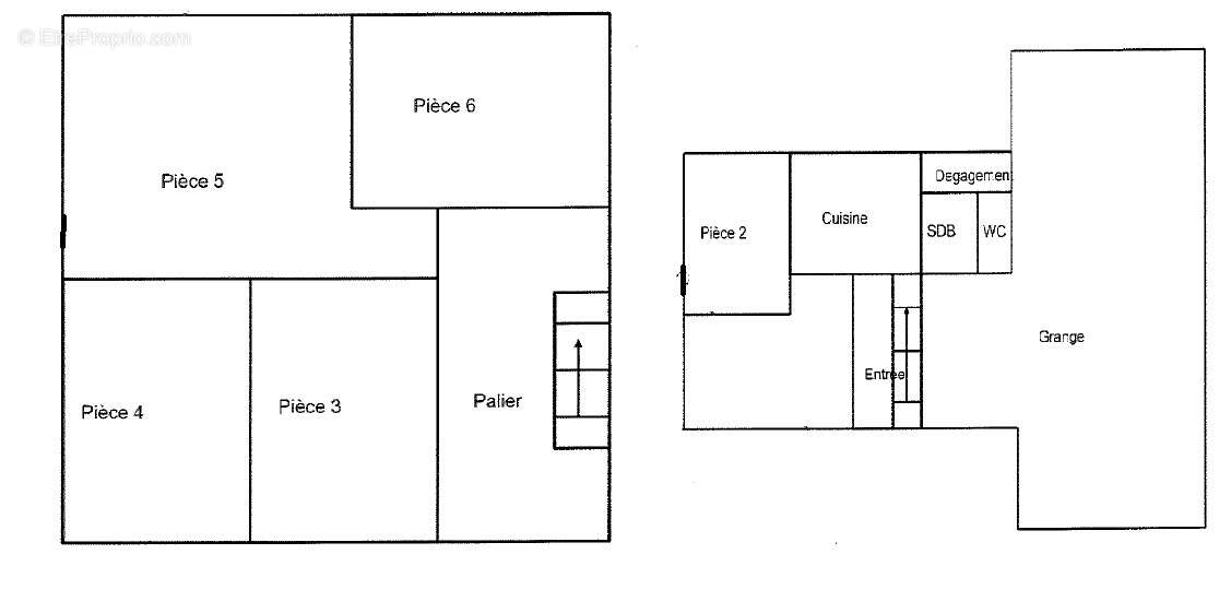
Dans la commune Petersbach, une maison construite avant 1949, comptant 6 pièces d'une surface habitable de 130,33 m2 habitable
Edifiée sur une parcelle de 382 m2, elle saura combler vos désirs de jardin.

La maison se dispose ainsi :
- Une entrée de 6,17 m2
- Une salle à manger 14,57 m2
- Un séjour de 23,65 m2
- Une cuisine séparée 12,84 m2
- Une salle de bains de 5,14 m2
- Un WC de 2,11 m2

Au premier :
- 4 Chambres de 9,24 m2 / 12,06 m2 / 21,64 m2 / 11,93 m2

Les +++ :
- Un garage
- Une grange

Les informations techniques :
- Simple et Double vitrage
- Chauffage au fioul de 2002
Voir plus

Référence: 4450
Honoraires d'agence de 8% à la charge de l'acquéreur
Barème des honoraires
DPE
A
B
C
D
E
F
G
GES
A
B
C
D
E
F
G

Prêt immobilier

Vous souhaitez connaître votre capacité d’emprunt et trouver le meilleur crédit immobilier ?
Réaliser une simulation gratuite

Maison à PETERSBACH
Maison à PETERSBACH
Maison à PETERSBACH
Maison à PETERSBACH
Maison à PETERSBACH
Maison à PETERSBACH
Maison à PETERSBACH
Maison à PETERSBACH
Maison à PETERSBACH
Maison à PETERSBACH
Maison à PETERSBACH
Maison à PETERSBACH
Maison à PETERSBACH
Ce site est protégé par reCAPTCHA la Politique de confidentialité et les Conditions d’utilisation de Google s’appliquent.
Obtenir un prêt immobilier au meilleur taux ?

En poursuivant votre navigation sans modifier vos paramètres, vous acceptez l'utilisation de cookies susceptibles de réaliser des statistiques de visite. Cliquez ici pour plus d'informations