Bénéficiez des services de nos partenaires locaux soigneusement sélectionnés
pour vous accompagner dans votre parcours d'achat immobilier

Appartement de 38m2, calme et en bon état, situé rue sébastien mercier à 450m du métro javel - andré citroën

— Paris-15e 75015 —
374 900 €
38 m²
2 pièces

Nos partenaires locaux
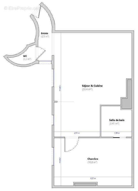
Equinimo, l’agence à commission fixe la plus recommandée (8 900 €), vous propose à la vente ce bien de 38m2, au 3ème et dernier étage, situé rue Sébastien Mercier à 450m du métro Javel André Citroën.
L’appartement, calme et en bon état, se compose d’un séjour-cuisine ouverte de 20,50m2, d’une chambre de 11m2 avec salle de bains et d’un WC indépendant. Le bien bénéficie de rangements intégrés et de fenêtres en double vitrage. Une cave est incluse dans la vente.
Les charges, de 114 euros par mois, incluent notamment l’eau froide et l’entretien des parties communes. L’eau chaude et le chauffage sont individuels électriques. La taxe foncière est de 879 euros. Pour davantage de précisions, le plan et la vidéo de présentation complète de ce bien, vous pouvez également consulter l'annonce sur le site Equinimo.
Voir plus

Bien en copropriété. Nombre de lots : 55.
Honoraires à la charge du vendeur.
Barème des honoraires
DPE
A
B
C
D
E
F
G
GES
A
B
C
D
E
F
G

Prêt immobilier

Vous souhaitez connaître votre capacité d’emprunt et trouver le meilleur crédit immobilier ?
Réaliser une simulation gratuite

Appartement à PARIS-15E
Appartement à PARIS-15E
Appartement à PARIS-15E
Appartement à PARIS-15E
Appartement à PARIS-15E
Appartement à PARIS-15E
Appartement à PARIS-15E
Ce site est protégé par reCAPTCHA la Politique de confidentialité et les Conditions d’utilisation de Google s’appliquent.
Obtenir un prêt immobilier au meilleur taux ?

En poursuivant votre navigation sans modifier vos paramètres, vous acceptez l'utilisation de cookies susceptibles de réaliser des statistiques de visite. Cliquez ici pour plus d'informations