Appartement neuf sur plan - epinay-sur-seine

— Epinay-Sur-Seine 93800 —
317 000 €
76 m²
4 pièces
ascenseur

APPARTEMENT NEUF SUR PLAN - EPINAY-SUR-SEINE

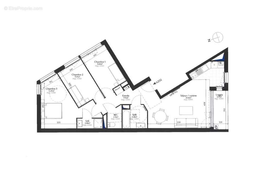
Moriss Immobilier vous présente cet appartement neuf de 80m2.

Découvrez ce spacieux appartement 4 pièces de 76 m² Carrez, au cœur d’une résidence dont la livraison est prévue au 2ème trimestre 2026.

L'appartement s'ouvre un séjour lumineux avec cuisine ouverte, donnant accès à un loggia, idéal pour profiter des fins de journée en toute tranquillité.
À l'opposé, l’espace nuit comprend trois chambres, ainsi que deux salle d’eau moderne et toilette séparé.

Deux places de stationnement sécurisées en sous-sol complètent ce bien.

Son emplacement privilégié constitue un atout majeur : à proximité immédiate des écoles, commerces et transports. Situé aux portes de Paris, Épinay-sur-Seine permet de rejoindre la capitale en 15 minutes en train, tout en bénéficiant d’un cadre de vie agréable au sein d’une ville dynamique.

Un appartement neuf, aux prestations soignées, parfaitement adapté aussi bien à un projet de résidence principale qu’à un investissement immobilier.

Frais de notaires réduits.
Voir plus

Référence: 86517418

Prêt immobilier

Vous souhaitez connaître votre capacité d’emprunt et trouver le meilleur crédit immobilier ?
Réaliser une simulation gratuite

Appartement à EPINAY-SUR-SEINE
Appartement à EPINAY-SUR-SEINE
Appartement à EPINAY-SUR-SEINE
Appartement à EPINAY-SUR-SEINE
Ce site est protégé par reCAPTCHA la Politique de confidentialité et les Conditions d’utilisation de Google s’appliquent.
Obtenir un prêt immobilier au meilleur taux ?

En poursuivant votre navigation sans modifier vos paramètres, vous acceptez l'utilisation de cookies susceptibles de réaliser des statistiques de visite. Cliquez ici pour plus d'informations