Appartement duplex neuf sur plan - epinay-sur-seine

— Epinay-Sur-Seine 93800 —
362 000 €
82 m²
4 pièces
balcon/terrasseascenseur

APPARTEMENT DUPLEX NEUF SUR PLAN - EPINAY-SUR-SEINE

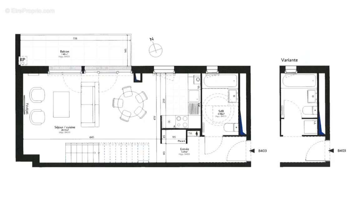
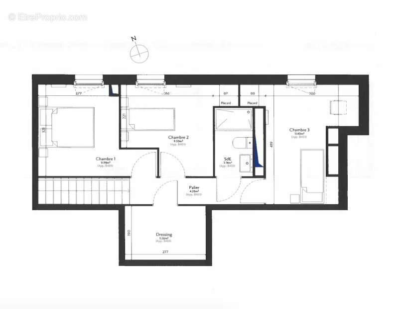
Moriss Immobilier vous présente ce duplex neuf de 89,88m2 au 4ème et 5ème étage.

Découvrez ce spacieux appartement 4 pièces de 82 m² Carrez, au cœur d’une résidence dont la livraison est prévue au 2ème trimestre 2026.

Le niveau principal offre un séjour lumineux avec cuisine ouverte, donnant accès à un balcon, idéal pour profiter des fins de journée en toute tranquillité.
À l’étage, l’espace nuit comprend trois chambres, un dressing ainsi qu’une salle d’eau moderne.

Deux places de stationnement sécurisées en sous-sol complètent ce bien.

Son emplacement privilégié constitue un atout majeur : à proximité immédiate des écoles, commerces et transports. Situé aux portes de Paris, Épinay-sur-Seine permet de rejoindre la capitale en 15 minutes en train, tout en bénéficiant d’un cadre de vie agréable au sein d’une ville dynamique.

Un appartement neuf, aux prestations soignées, parfaitement adapté aussi bien à un projet de résidence principale qu’à un investissement immobilier.

Frais de notaires réduits.
Voir plus

Référence: 86517274

Prêt immobilier

Vous souhaitez connaître votre capacité d’emprunt et trouver le meilleur crédit immobilier ?
Réaliser une simulation gratuite

Appartement à EPINAY-SUR-SEINE
Appartement à EPINAY-SUR-SEINE
Appartement à EPINAY-SUR-SEINE
Appartement à EPINAY-SUR-SEINE
Appartement à EPINAY-SUR-SEINE
Ce site est protégé par reCAPTCHA la Politique de confidentialité et les Conditions d’utilisation de Google s’appliquent.
Obtenir un prêt immobilier au meilleur taux ?

En poursuivant votre navigation sans modifier vos paramètres, vous acceptez l'utilisation de cookies susceptibles de réaliser des statistiques de visite. Cliquez ici pour plus d'informations