Bénéficiez des services de nos partenaires locaux soigneusement sélectionnés
pour vous accompagner dans votre parcours d'achat immobilier

Exclusif - thonon proche centre / t3 en attique avec terrasse, garage et parking

— Thonon-Les-Bains 74200 —
295 000 €
61 m²
3 pièces
parkingbalcon/terrasse

Nos partenaires locaux
EXCLUSIF – THONON / Secteur proche Centre et Concise :

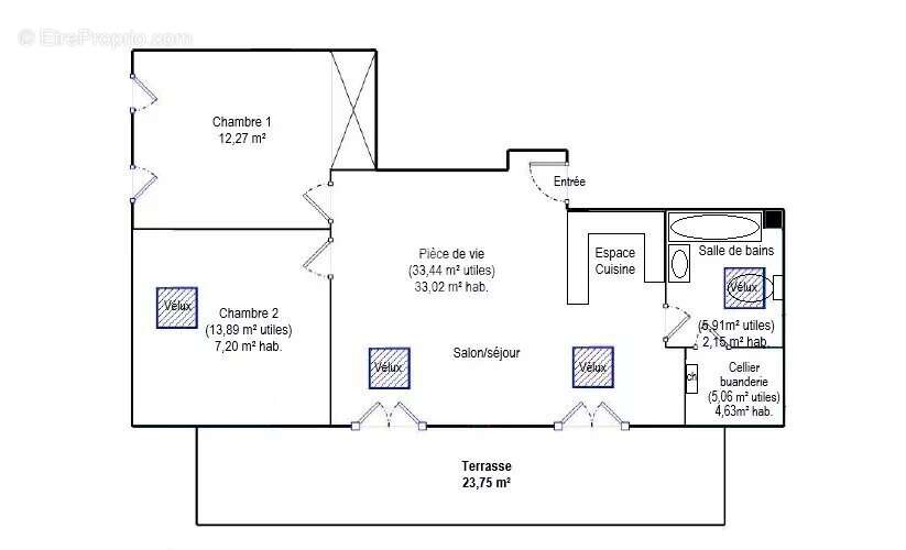
À deux pas du centre-ville, au sein d’une petite copropriété de caractère bien entretenue, découvrez ce très bel appartement Type 3 en attique de 70,57 m² utiles / 60,88 m² habitables.

Niché au calme et situé au dernier étage, il dispose d’une spacieuse terrasse de 23,75 m², idéalement exposée et offrant une vue dégagée avec échappée sur le lac. Cet appartement conjugue avec élégance confort contemporain et charme de l’ancien, grâce à ses poutres apparentes et ses volumes mansardés, créant une ambiance unique, chaleureuse et lumineuse.

L'appartement se compose :
- d'une belle pièce de vie de 33,44 m² avec coin cuisine aménagé et équipé, ouvert sur salon/séjour,
- de deux chambres confortables, dont une avec grand placard intégré,
- d'une salle de bains mansardée avec WC,
- d'un Cellier/buanderie fonctionnel.

En annexes :
- Un grand garage box avec mezzanine de rangement
- Un Stationnement privatif extérieur

Un bien plutôt rare sur ce secteur recherché, avec de très faibles charges, et à proximité immédiate de toutes les commodités : embarcadère, gare, transports, écoles, commerces… accessibles à pied.

À découvrir sans tarder !

--------------

Bien(s) soumis au statut de la copropriété
Une procédure en cours
Nombre de lots principaux : 8
Adapté PMR : Non
Quote-part charges générales année N-1 (2024) : 576,43 €
Provisions sur charges actuelles : 53,61 €/mois
(Fonds épargne travaux ALUR inclus : 2,70 €/mois)
Taxes Foncières : 919 €
Voir plus

Référence: 86488415
DPE
A
B
C
D
E
F
G
GES
A
B
C
D
E
F
G

Prêt immobilier

Vous souhaitez connaître votre capacité d’emprunt et trouver le meilleur crédit immobilier ?
Réaliser une simulation gratuite

Appartement à THONON-LES-BAINS
Appartement à THONON-LES-BAINS
Appartement à THONON-LES-BAINS
Appartement à THONON-LES-BAINS
Appartement à THONON-LES-BAINS
Appartement à THONON-LES-BAINS
Appartement à THONON-LES-BAINS
Appartement à THONON-LES-BAINS
Appartement à THONON-LES-BAINS
Appartement à THONON-LES-BAINS
Appartement à THONON-LES-BAINS
Appartement à THONON-LES-BAINS
Appartement à THONON-LES-BAINS
Appartement à THONON-LES-BAINS
Appartement à THONON-LES-BAINS
Appartement à THONON-LES-BAINS
Appartement à THONON-LES-BAINS
Appartement à THONON-LES-BAINS
Ce site est protégé par reCAPTCHA la Politique de confidentialité et les Conditions d’utilisation de Google s’appliquent.
Obtenir un prêt immobilier au meilleur taux ?

En poursuivant votre navigation sans modifier vos paramètres, vous acceptez l'utilisation de cookies susceptibles de réaliser des statistiques de visite. Cliquez ici pour plus d'informations