Bénéficiez des services de nos partenaires locaux soigneusement sélectionnés
pour vous accompagner dans votre parcours d'achat immobilier

Menton bas borrigo 3 pieces étage élevé terrasse

— Menton 06500 —
360 000 €
65 m²
3 pièces
parkingbalcon/terrasse

Nos partenaires locaux
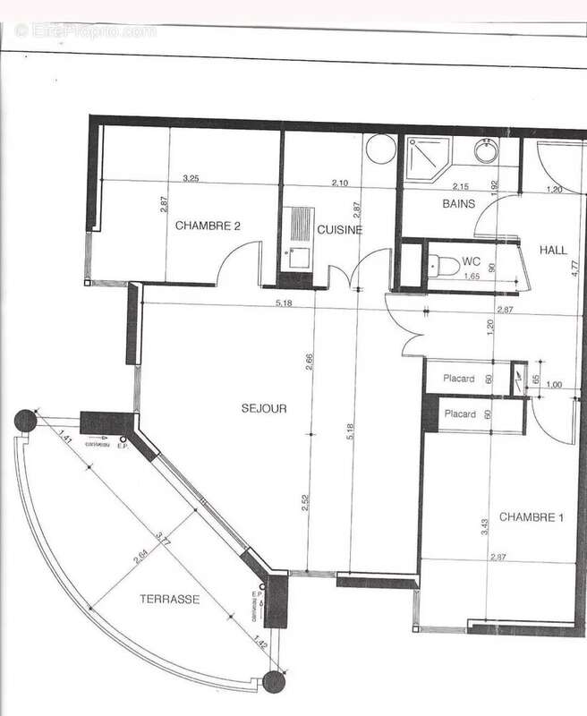
Menton Bas Borrigo 3 Pieces étage élevé terrasse
Menton – Quartier Borrigo
Appartement 3 pièces avec terrasse et vue panoramique

Situé dans une résidence sécurisée avec ascenseur, cet appartement de 3 pièces offre une superficie de 64,89 m² et séduit par sa vue dégagée et sa luminosité exceptionnelle grâce à une grande terrasse d’angle exposée sud-est.

En excellent état, il se compose d’une entrée, d’un séjour spacieux avec cuisine ouverte, d’une salle de douche avec WC, ainsi que de deux chambres confortables.
Son véritable atout : une terrasse panoramique, parfaite pour profiter de moments de détente en toute tranquillité.

Le chauffage et l’eau chaude sont individuels et électriques, garantissant une gestion autonome de la consommation énergétique.

Idéalement situé dans le bas de la vallée du Borrigo, l’appartement bénéficie d’un accès rapide au centre-ville de Menton et aux plages.
Un garage en sous-sol est disponible au prix de 35000€
Voir plus

Référence: 86517878

Prêt immobilier

Vous souhaitez connaître votre capacité d’emprunt et trouver le meilleur crédit immobilier ?
Réaliser une simulation gratuite

Appartement à MENTON
Appartement à MENTON
Appartement à MENTON
Appartement à MENTON
Appartement à MENTON
Appartement à MENTON
Appartement à MENTON
Appartement à MENTON
Appartement à MENTON
Appartement à MENTON
Appartement à MENTON
Appartement à MENTON
Ce site est protégé par reCAPTCHA la Politique de confidentialité et les Conditions d’utilisation de Google s’appliquent.
Obtenir un prêt immobilier au meilleur taux ?

En poursuivant votre navigation sans modifier vos paramètres, vous acceptez l'utilisation de cookies susceptibles de réaliser des statistiques de visite. Cliquez ici pour plus d'informations