Appartement 3 pieces de 63 m² en rdj à villeneuve-loubet (vaugrenier)

— Villeneuve-Loubet 06270 —
334 000 €
63 m² / 22 m²
3 pièces
parkingbalcon/terrassejardinascenseur

VILLENEUVE-LOUBET, VAUGRENIER - APPARTEMENT 3 PIECES TRAVERSANT de 63 m² en REZ-de-JARDIN !
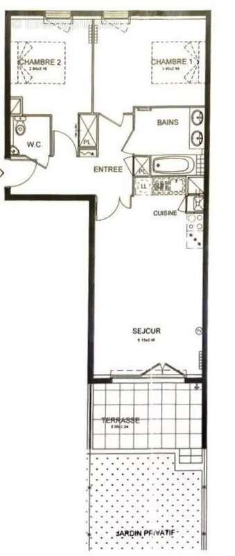
Le bien est climatisé, exposée SUD / EST et en arrivant dans l'entrée, celle-ci dessert successivement :

APPARTEMENT 3 PIECES TRAVERSANT de 63 m² en REZ-de-JARDIN ! Le bien est climatisé, exposée SUD / EST et en arrivant dans l'entrée, celle-ci dessert successivement :
un WC séparé avec toilettes suspendues, lave-mains et espace machine à laver/sèche linge, Une 1ère chambre de 10 m² avec deux placards, Une 2ème chambre de 12 m² avec un grand placard, Une grande salle de bain avec double vasque et baignoire, Une pièce de vie de 25 m² avec cuisine équipée + salon, Une terrasse couverte, Un jardin de au calme, sans vis-à-vis & Un garage avec électricité, fermé en sous sol en option.

Ses points forts :
- Proximité immédiate de tous les commerces à pied, écoles maternelle/primaire
- 10 minutes à pied des plages
- 5 minutes à pied de la gare SNCF de Villeneuve-Loubet
- 5 minutes à pied du parc départemental de Vaugrenier
- Accès rapide à Sophia Antipolis et à l'autoroute
- Stationnement gratuit devant la résidence
- Voisinage agréable et quartier résidentiel calme
- Faibles charges de copropriété (environ 110€/mois) incluant : eau froide/entretien parties communes/espaces verts/ascenseur/électricité individuelle garage
- Garantie décennale jusqu'en décembre 2028
Voir plus

Référence: 86486997
Barème des honoraires
DPE
A
B
C
D
E
F
G
GES
A
B
C
D
E
F
G

Prêt immobilier

Vous souhaitez connaître votre capacité d’emprunt et trouver le meilleur crédit immobilier ?
Réaliser une simulation gratuite

Appartement à VILLENEUVE-LOUBET
Appartement à VILLENEUVE-LOUBET
Appartement à VILLENEUVE-LOUBET
Appartement à VILLENEUVE-LOUBET
Appartement à VILLENEUVE-LOUBET
Appartement à VILLENEUVE-LOUBET
Appartement à VILLENEUVE-LOUBET
Appartement à VILLENEUVE-LOUBET
Appartement à VILLENEUVE-LOUBET
Appartement à VILLENEUVE-LOUBET
Appartement à VILLENEUVE-LOUBET
Appartement à VILLENEUVE-LOUBET
Appartement à VILLENEUVE-LOUBET
Appartement à VILLENEUVE-LOUBET
Ce site est protégé par reCAPTCHA la Politique de confidentialité et les Conditions d’utilisation de Google s’appliquent.
Obtenir un prêt immobilier au meilleur taux ?

En poursuivant votre navigation sans modifier vos paramètres, vous acceptez l'utilisation de cookies susceptibles de réaliser des statistiques de visite. Cliquez ici pour plus d'informations