Bénéficiez des services de nos partenaires locaux soigneusement sélectionnés
pour vous accompagner dans votre parcours d'achat immobilier

Dernier étage terrasse

— Toulouse 31500 —
330 000 €
93 m²
4 pièces
parkingbalcon/terrasseascenseur

Nos partenaires locaux
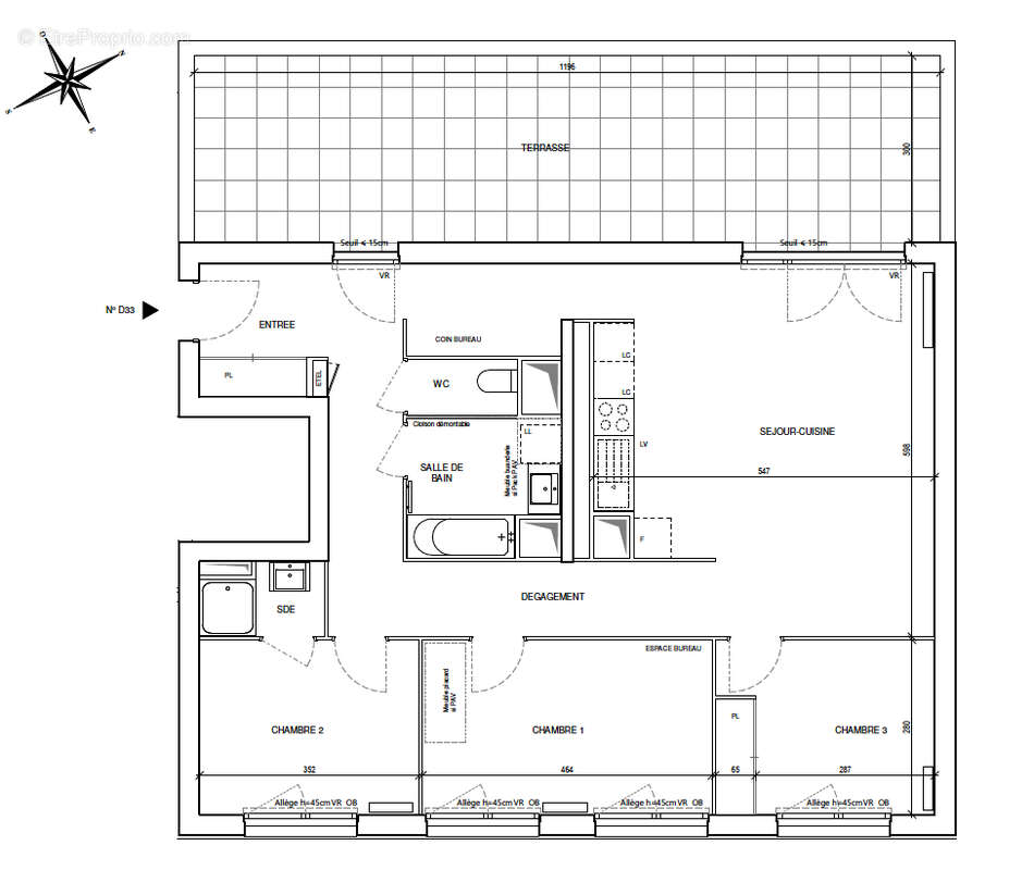
Toulouse Malpère, Dans le quartier qui rappelle les petits faubourg d'autrefois, au sud de Toulouse et à proximité immédiate de la rocade et de la future ligne de métro se niche ici ce bel appartement. Dans une copropriété sans ascenseur, en 3ème et dernier étage on retrouve cet appartement 4 pièces avec une vue dégagée. Composé d'une entrée avec placard, un séjour cuisine de 33,18m2 sur terrasse de 35,88m2 exposée Ouest, 2 chambres de12,99 et 9,82m2, une salle de bain, un wc et une suite parentale de 12,01m2 salle d'eau incluse. 1 parking sous-sol Baies vitrées équipées de volets roulants, à motorisation électrique dans le séjour. Le chauffage et la production d'eau chaude sont assurés par un réseau collectif de chaleur urbain. Les sols sont habillés de carrelage grand format 45 x 45 cm en grès cérame dans les séjours, dégagements, cuisines, salles de bains, salles d'eau et de parquet stratifié dans les chambres. Les salles de bains offrent des équipements sanitaires de qualité : radiateur sèche-serviettes, meuble vasque surmonté d'un miroir et d'une applique lumineuse, faïence à hauteur d'huisserie. Les murs et plafonds des pièces de vie sont revêtus d'une peinture lisse blanche. BIEN NON SOUMIS AU DPE Pour tout renseignement : Féänor MAMEO [Coordonnées masquées]
Voir plus

Référence: FAU-F33
Honoraires à la charge du vendeur.

Prêt immobilier

Vous souhaitez connaître votre capacité d’emprunt et trouver le meilleur crédit immobilier ?
Réaliser une simulation gratuite

Appartement à TOULOUSE
Appartement à TOULOUSE
Appartement à TOULOUSE
Appartement à TOULOUSE
Appartement à TOULOUSE
Appartement à TOULOUSE
Appartement à TOULOUSE
Appartement à TOULOUSE
Ce site est protégé par reCAPTCHA la Politique de confidentialité et les Conditions d’utilisation de Google s’appliquent.
Obtenir un prêt immobilier au meilleur taux ?

En poursuivant votre navigation sans modifier vos paramètres, vous acceptez l'utilisation de cookies susceptibles de réaliser des statistiques de visite. Cliquez ici pour plus d'informations