Bénéficiez des services de nos partenaires locaux soigneusement sélectionnés
pour vous accompagner dans votre parcours d'achat immobilier

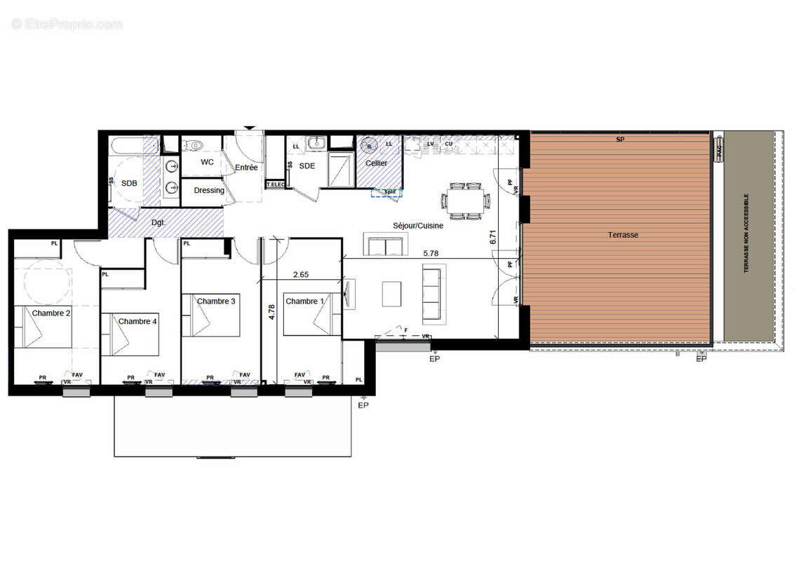
Grande terrasse

— Toulouse 31400 —
660 000 €
114 m²
5 pièces
parkingbalcon/terrasseascenseur

Nos partenaires locaux
Toulouse Ormeau, GRANDE TERRASSE DE 40,63M2 Bel appartement développant une entrée avec vestibule, un séjour cuisine de 41,87m2 exposé sud-est sur terrasse de 40,63m2, 4 chambres avec placard de 13,51, 13,35, 12,31 et 10,92m2, une salle bain, une salle d'eau, un wc indépendant et un cellier. 2 places de parkings en sou-sol. Prestations soignées : parquet contre-collé au sol, carrelage 45*45 pièces humides, PAC non réversible air pulsé séjour et radiateur dans les chambres, ballon thermodynamique eau chaude, peinture lisse, volets roulants motorisés ....... Avec ses airs d'authentique village, ce quartier incarne plus que jamais l'art de vivre toulousain avec ses commerces, ses restaurants, son marché, ses magasins. Car le coeur de Toulouse bat juste à côté, la place de l'Ormeau accueillera la ligne C du métro pour rejoindre la rue de Metz en seulement 3 stations. La douceur de vivre se ressent également à proximité du quartier boisé de la Côte Pavée où toutes les commodités sont réunies pour une vie de famille épanouie avec ses établissements scolaires réputés. Véritable poumon vert, le Parc de la Grande Plaine accueille de nombreuses activités sur plus de 10 hectares de verdure. Les rues qui encadrent l'appartement sont résidentielles et très arborées. Il règne ici un calme absolu où seul le chant des oiseaux du parc public bordant la résidence vient rompre le silence. Un privilège rare au coeur de Toulouse. BIEN NON SOUMIS AU DPE Pour tout renseignement : Féänor MAMEO [Coordonnées masquées]
Voir plus

Référence: POR-B21
Honoraires à la charge du vendeur.

Prêt immobilier

Vous souhaitez connaître votre capacité d’emprunt et trouver le meilleur crédit immobilier ?
Réaliser une simulation gratuite

Appartement à TOULOUSE
Appartement à TOULOUSE
Appartement à TOULOUSE
Appartement à TOULOUSE
Appartement à TOULOUSE
Ce site est protégé par reCAPTCHA la Politique de confidentialité et les Conditions d’utilisation de Google s’appliquent.
Obtenir un prêt immobilier au meilleur taux ?

En poursuivant votre navigation sans modifier vos paramètres, vous acceptez l'utilisation de cookies susceptibles de réaliser des statistiques de visite. Cliquez ici pour plus d'informations