Bénéficiez des services de nos partenaires locaux soigneusement sélectionnés
pour vous accompagner dans votre parcours d'achat immobilier

Grande terrasse

— Toulouse 31300 —
369 900 €
81 m²
3 pièces
parkingbalcon/terrasseascenseur

Nos partenaires locaux
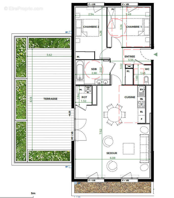
Toulouse St Martin du Touch BELLE TERRASSE DE 29,62m2 En 3ème et dernier étage d'un copropriété intimiste de 15 lots on vous présente ici ce grand appartement 3 pièces idéalement agencé. Composé d'une entrée avec vestibule, un séjour cuisine de 41,65m2 exposé sud-ouest sur terrasse de 29,62m3, un espace buanderie, un wc, une salle de bain et 2 chambres de 11,37 et 11,03m2. 1 place de parking. Prestations soignées : isolation renforcée, chaudière gaz individuelle, carrelage 45*45, parquet stratifié au sol, peinture lisse, volets roulants électriques dans le séjour ....... Longeant la petite rivière du Touch, qui serpente paisiblement avant de rejoindre la Garonne, ce quartier toulousain offre un cadre de vie unique, où la tranquillité et la convivialité règnent. Tel un coeur villageois authentique, avec ses petites rues pavillonnaires et son ambiance chaleureuse, Saint-Martin-du-Touch n'est pourtant qu'à deux pas du dynamisme de Toulouse. Avec l'arrivée de la future ligne C du métro, qui, en 2028, desservira directement le quartier et le reliera au centre-ville en moins de 15 minutes, ce secteur connait une véritable évolution. Déjà très bien connecté grâce à ses deux lignes de bus, sa gare, sa proximité avec l'aéroport, l'autoroute et la rocade, le quartier s'apprête à devenir encore plus accessible et plus attractif que jamais. Saint-Martin-du-Touch est également le voisin immédiat de l'immense site Airbus, l'un des plus grands bassins d'emploi de France. Idéal pour la vie de famille, Saint-Martin-du-Touch dispose d'écoles maternelle et élémentaire, et les activités sportives ne manquent pas : gymnase, salle d'escalade, squash et padel sont au rendez-vous. Situé à moins de 8 mn en voiture de la base de loisirs de La Ramée et à seulement 5 km du zénith, le quartier est un lieu stratégique pour profiter des événements culturels de la ville. Proche du centre palpitant de Toulouse, dont le dynamisme et la croissance économique offrent sans cesse d'innombrables opportunités à une population jeune et énergique. BIEN NON SOUMIS AU DPE Pour tout renseignement : Féänor MAMEO [Coordonnées masquées]
Voir plus

Référence: JLO-A301

Prêt immobilier

Vous souhaitez connaître votre capacité d’emprunt et trouver le meilleur crédit immobilier ?
Réaliser une simulation gratuite

Appartement à TOULOUSE
Appartement à TOULOUSE
Appartement à TOULOUSE
Ce site est protégé par reCAPTCHA la Politique de confidentialité et les Conditions d’utilisation de Google s’appliquent.
Obtenir un prêt immobilier au meilleur taux ?

En poursuivant votre navigation sans modifier vos paramètres, vous acceptez l'utilisation de cookies susceptibles de réaliser des statistiques de visite. Cliquez ici pour plus d'informations