Bénéficiez des services de nos partenaires locaux soigneusement sélectionnés
pour vous accompagner dans votre parcours d'achat immobilier

Grande terrasse de 31m2

— Blagnac 31700 —
337 336 €
96 m²
4 pièces
parkingbalcon/terrasseascenseur

Nos partenaires locaux
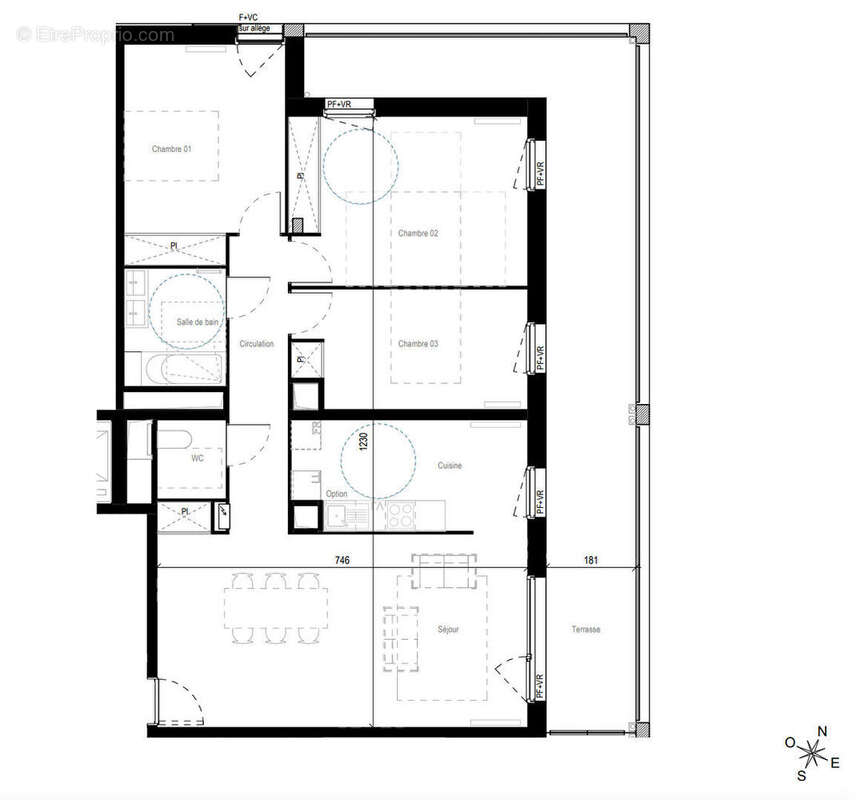
Blagnac Patinoire, Au 5ème étage sur 7 on vous propose ici un appartement fonctionnel avec une généreuse terrasse de 31,33m2. Composé d'un séjour cuisine de 40,16m2 exposé EST donnant sur la terrasse, , 3 chambres de 16,34, 13,73 et 11,13m2, une salle de bain et un wc indépendant. Pour compléter le bien vous disposez de 2 places de parkings en sous-sol et une cave. Côté prestation : label RT2012, carrelage au sol, parquet stratifié dans les chambres, peinture lisse sur les murs, volets roulants électrqiues dans le séjour, chauffage biomasse en production collective et comptage individuel, isolation renforcée ..... Dans cette copropriété l'appartement s'implante harmonieusement au sein de ce quartier novateur, située le long de la rue des Mimosas, de la rue des Muguets et de l'avenue des Pins. Chacun de ces 3 axes disposent d'un accès piétons et vélos. Emmenager ici c'est bénéficier d'une localisation pratique et aux nombreux atouts : A 2 pas du tramway T1 pour rejoindre Blagnac centre en 13 minutes* ou Toulouse en 25 minutes*. A seulement 5 minutes à pied* de la Place des Marronniers (supermarché, boulangerie, pharmacie...). A 5 minutes à pied* de l'École Élémentaire René Cassin. A 9 minutes à pied* du Parc du Ritouret et du Lac Odyssud TVA 5,50% zone ANRU sous conditions de ressources voir conditions en agence. BIEN NON SOUMIS AU DPE Pour tout renseignement : Féänor MAMEO [Coordonnées masquées]
Voir plus

Référence: CDC-B50
Honoraires à la charge du vendeur.

Prêt immobilier

Vous souhaitez connaître votre capacité d’emprunt et trouver le meilleur crédit immobilier ?
Réaliser une simulation gratuite

Appartement à BLAGNAC
Appartement à BLAGNAC
Ce site est protégé par reCAPTCHA la Politique de confidentialité et les Conditions d’utilisation de Google s’appliquent.
Obtenir un prêt immobilier au meilleur taux ?

En poursuivant votre navigation sans modifier vos paramètres, vous acceptez l'utilisation de cookies susceptibles de réaliser des statistiques de visite. Cliquez ici pour plus d'informations