Grande terrasse

— Pibrac 31820 —
309 000 €
82 m²
4 pièces
parkingbalcon/terrasse

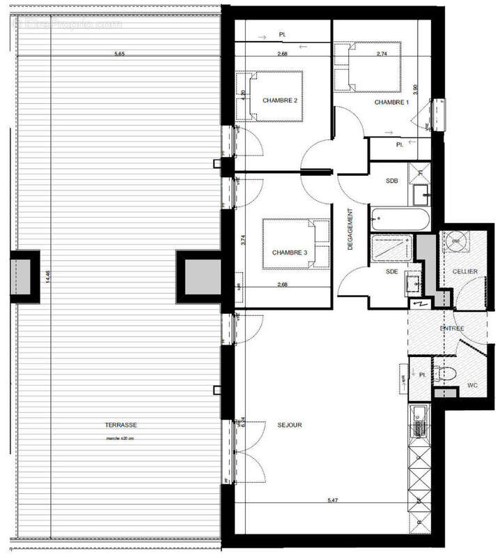
Pibrac, DERNIER ETAGE SUR GRANDE TERRASSE DE 78,97m2 En 2ème et dernier étage d'une copropriété sans ascenseur on vous propose cet appartement fonctionnel composé : d'une entrée avec placard, un séjour cuisine de 33,25m2 exposé ouest sur terrasse de 78.97m2, une salle de bain, une salle d'eau, un wc indépendant, un cellier et 3 chambres 10,02, 11,26 et 10,02m2. 2 places de parking en sous-sol complètent ce bien. Prestations soignées : carrelage 45*45 au sol, parquet stratifié au sol, peinture lisse murs et plafonds, PAC air split dans le séjour et panneau rayonnant dans les chambres, ballon thermodynamique pour l'eau chaude, volets roulants motorisés ..... Commune prisée de l'Ouest Toulousain située à 10 km à l'ouest de Toulouse, Pibrac offre un emplacement privilégié, et recherché pour tous ses avantages conjugués : une vie paisible aux portes de la campagne avoisinante, sans sacrifier l'effervescence économique et culturelle de la Ville rose. Bien desservie par les transports en commun, Pibrac dispose également d'accès rapides aux axes routiers desservant Toulouse et les grands bassins d'emploi de son agglomération. Le pôle aéronautique accueillant l'aéroport Toulouse-Blagnac, Airbus et de nombreux sous-traitants, se trouve à moins de 12 minutes en voiture. Grâce à cette localisation idéale, les habitants de Pibrac bénéficient d'un cadre de vie idéal pour concilier facilement tous les aspects de leur vie personnelle ou familiale avec leurs impératifs professionnels. Toulouse et les villes voisines sont accessibles en train, reliant la station de métro Arènes sur la ligne A, ou se prolongeant jusqu'à la gare de Toulouse Matabiau, pour se déplacer dans l'agglomération et emprunter les grandes lignes nationales. BIEN NON SOUMIS AU DPE Pour tout renseignement : Féänor MAMEO [Coordonnées masquées]
Voir plus

Référence: PAS-C21
Honoraires à la charge du vendeur.

Prêt immobilier

Vous souhaitez connaître votre capacité d’emprunt et trouver le meilleur crédit immobilier ?
Réaliser une simulation gratuite

Appartement à PIBRAC
Appartement à PIBRAC
Appartement à PIBRAC
Appartement à PIBRAC
Appartement à PIBRAC
Appartement à PIBRAC
Ce site est protégé par reCAPTCHA la Politique de confidentialité et les Conditions d’utilisation de Google s’appliquent.
Obtenir un prêt immobilier au meilleur taux ?

En poursuivant votre navigation sans modifier vos paramètres, vous acceptez l'utilisation de cookies susceptibles de réaliser des statistiques de visite. Cliquez ici pour plus d'informations