Bénéficiez des services de nos partenaires locaux soigneusement sélectionnés
pour vous accompagner dans votre parcours d'achat immobilier

Grande terrasse

— Toulouse 31400 —
389 900 €
83 m²
4 pièces
parkingbalcon/terrasseascenseur

Nos partenaires locaux
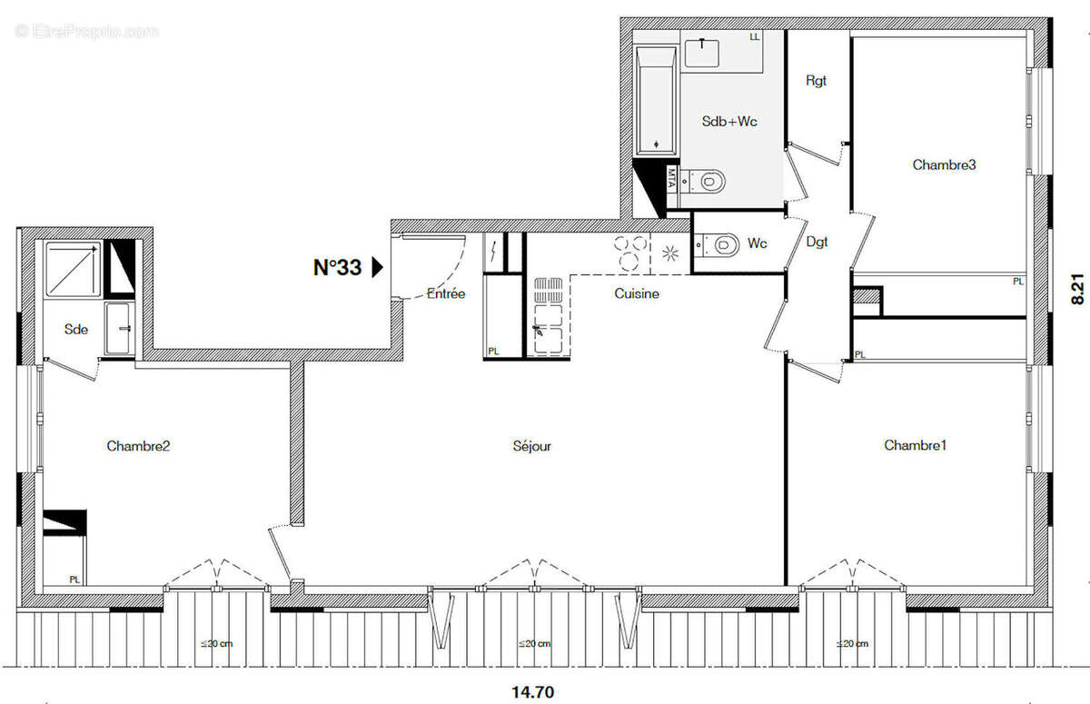
Toulouse Malpère, EXCEPTIONNEL 134M2 DE TERRASSE ACCESSION A PRIX MAITRISE DESTINE A LA RESIDENCE PRINCIPALE SOUS CONDITIONS DE RESSOURCES (VOIR EN AGENCE) En 3ème étage sur 7 , on vous propose ici cet appartement 4 pièces composé d'une entrée avec vestibule, un séjour cuisine de 30,68m2 exposé sud sur terrasse de 134,30m2, une salle de bain-wc, un wc indépendant, une suite parentale de 13,95m2 salle d'eau incluse et 2 chambres de 13,61 et 10,60m2 2 places de parking en sous-sol Prestations soignées : carrelage 45*45 au sol, peinture lisse murs et plafonds, chauffage biomasse collectif avec compteur individuel .... Ecoquartier centré sur le respect de l'environnement, le quartier offre une vie «comme à la campagne», entouré d'espaces verts, au calme et à l'abri du tumulte de l'hypercentre. Les amoureux de nature et de sport bénéficient d'un vaste réseau de pistes cyclables et de footing au sein du bois de l'Hers, le long du ruisseau de la Marcaissonne, de la rivière de l'Hers ou en direction du Parc Catala. Ici, tout est facilement accessible et tous les modes de déplacement sont possibles : bus (Liaison Multimodale Sud-Est reliant Malepère à la ligne B du métro, Linéo 9), métro avec les futures stations, voiture avec le périphérique tout proche. Les habitants profitent de la proximité du centre commercial Saint-Orens et de ses enseignes. Pour le quotidien, le coeur commerçant de la place de l'Ormeau est à seulement 1,5 km. Un projet de réaménagement du quartier prévoit la création d'une place commerciale et d'équipements publics (scolaires et culturels) qui viendront renforcer l'offre déjà existante. En résumé c'est un quartier jeune, dynamique offrant un confort de vie sans pareil, pour aujourd'hui et encore plus pour demain. BIEN NON SOUMIS AU DPE Pour tout renseignement : Féänor MAMEO [Coordonnées masquées]
Voir plus

Référence: REV-A33

Prêt immobilier

Vous souhaitez connaître votre capacité d’emprunt et trouver le meilleur crédit immobilier ?
Réaliser une simulation gratuite

Appartement à TOULOUSE
Appartement à TOULOUSE
Appartement à TOULOUSE
Appartement à TOULOUSE
Appartement à TOULOUSE
Appartement à TOULOUSE
Appartement à TOULOUSE
Appartement à TOULOUSE
Appartement à TOULOUSE
Appartement à TOULOUSE
Appartement à TOULOUSE
Appartement à TOULOUSE
Appartement à TOULOUSE
Appartement à TOULOUSE
Appartement à TOULOUSE
Ce site est protégé par reCAPTCHA la Politique de confidentialité et les Conditions d’utilisation de Google s’appliquent.
Obtenir un prêt immobilier au meilleur taux ?

En poursuivant votre navigation sans modifier vos paramètres, vous acceptez l'utilisation de cookies susceptibles de réaliser des statistiques de visite. Cliquez ici pour plus d'informations