Bénéficiez des services de nos partenaires locaux soigneusement sélectionnés
pour vous accompagner dans votre parcours d'achat immobilier

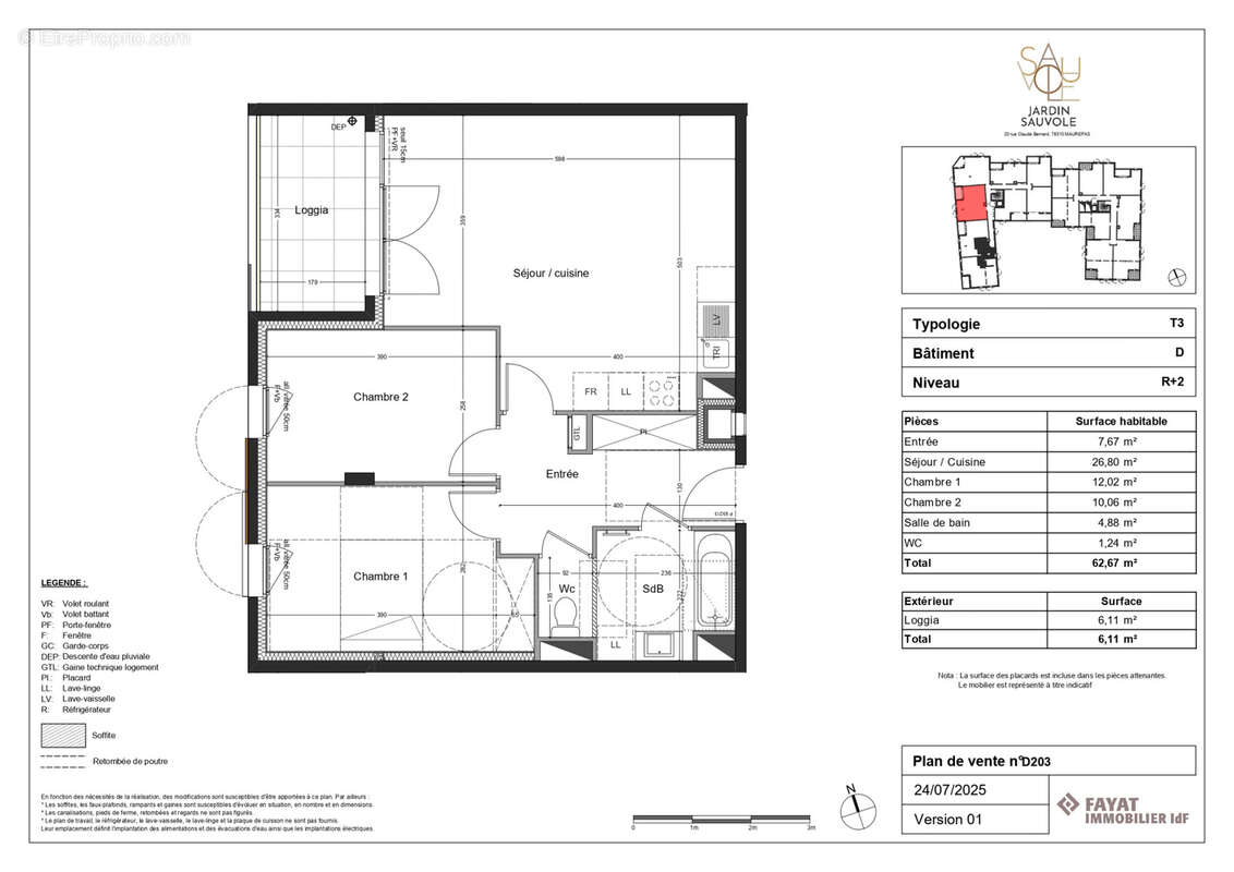
F3 - maurepas - mars 2027 - jardin de sauvole - loggia

— Maurepas 78310 —
285 725 €
63 m²
3 pièces
parking

Nos partenaires locaux
Christine de BLB Immobilier propose un appartement de type F3, situé au 20 Rue Claude Bernard à Maurepas, au 2ᵉ étage sur 5, avec une livraison prévue fin mars 2027. Caractéristiques du bien : - surface de 62,67 m2, - exposition Nord/Est, - loggia attenante au séjour, - salle de bains, - ascenseur, - place de parking en sous-sol, - volets roulants manuels dans le séjour et battants dans les chambres, - appartement conforme aux normes RE2020 avec certification HQE en vigueur au moment de la livraison. Environnement : - résidence à venir « Jardin Sauvole », - proximité des commodités de Maurepas (commerces, transports, services).
Informations complémentaires : - entrée dans les lieux prévue le 30 mars 2027. Informations financières : - prix honoraires inclus : 285.725€, soit 275.000€ net vendeur dont 94.500 € répartis comme suit : 19.411 € au vendeur en paiement comptant, 73.589 € à la banque (prêt ou comptant), 1.500 € à la Caisse des Dépôts et Consignations, - frais de notaire réduits. Cet appartement à venit est une opportunité rare à ne pas manquer ! Contactez Christine LAMY BLB Immobilier [Coordonnées masquées] Disponible 7J/7 Agence de Maurepas.
Voir plus

Bien en copropriété. Nombre de lots : 240.
Honoraires d'agence de 3.9% à la charge de l'acquéreur
Barème des honoraires

Prêt immobilier

Vous souhaitez connaître votre capacité d’emprunt et trouver le meilleur crédit immobilier ?
Réaliser une simulation gratuite

Appartement à MAUREPAS
Appartement à MAUREPAS
Appartement à MAUREPAS
Appartement à MAUREPAS
Ce site est protégé par reCAPTCHA la Politique de confidentialité et les Conditions d’utilisation de Google s’appliquent.
Obtenir un prêt immobilier au meilleur taux ?

En poursuivant votre navigation sans modifier vos paramètres, vous acceptez l'utilisation de cookies susceptibles de réaliser des statistiques de visite. Cliquez ici pour plus d'informations