Appartement 34,76 m² avec balcon et cave

— Cambo-Les-Bains 64250 —
189 000 €
34 m²
2 pièces
balcon/terrasse

Liberkeys vous propose en exclusivité ce charmant appartement de 34,76 m² (loi Carrez) situé à Cambo-les-Bains, une ville réputée pour sa douceur de vivre au cœur du Pays Basque.

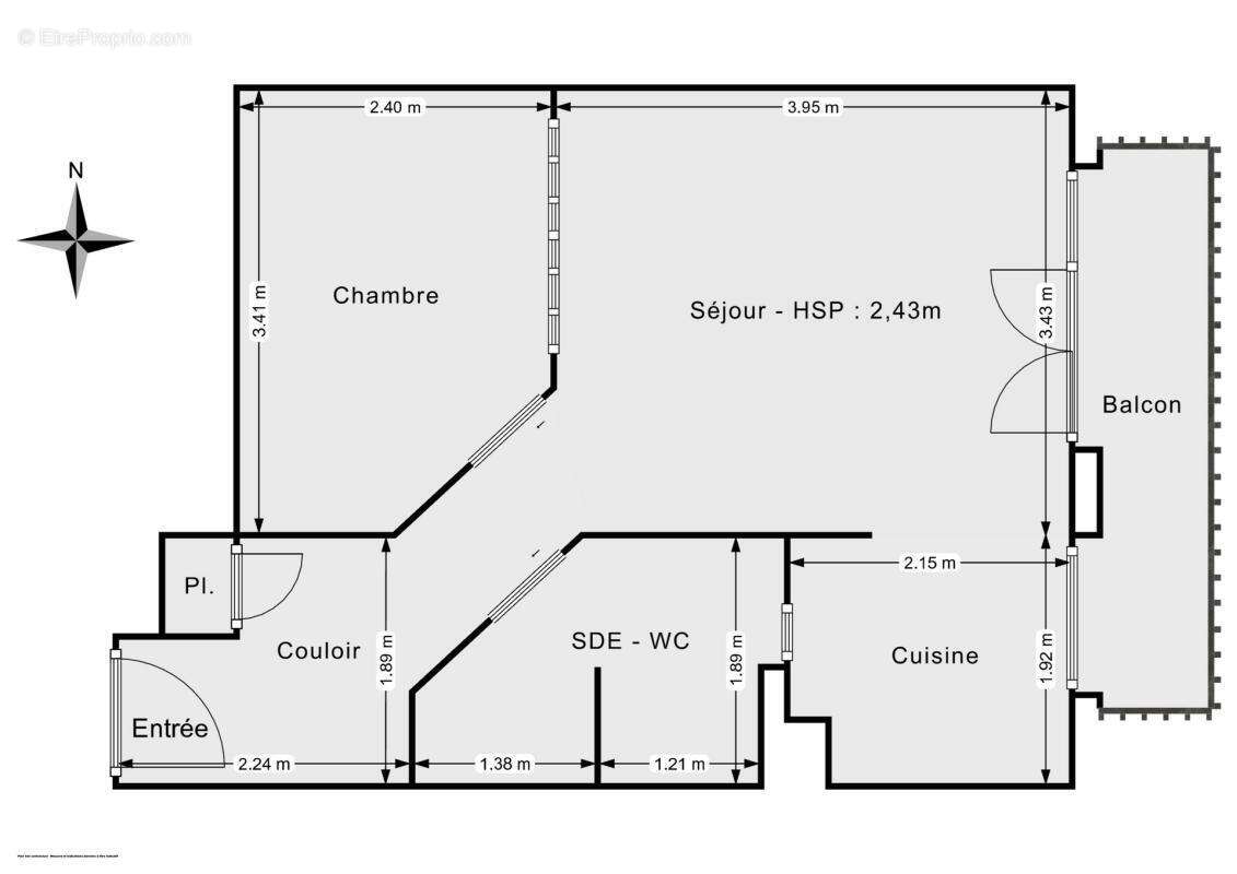
L'entrée distribue un séjour lumineux ouvrant sur un agréable balcon, idéal pour savourer vos moments de détente et profiter d'une belle exposition au soleil.

La cuisine américaine optimise l'espace et le rend convivial, parfait pour recevoir ou cuisiner en toute simplicité.
L'espace nuit vous offre un cocon douillet, complétée par une salle de bains moderne et des toilettes pour plus de confort au quotidien.

Vous apprécierez le calme de la résidence, à seulement quelques pas des commerces, des célèbres thermes de Cambo-les-Bains, des espaces verts et de toutes les commodités essentielles. La présence d'une cave est un réel atout pour plus de rangement.

DPE projetté avec amélioration jusqu'à la lettre A si besoin !

Côté pratique : copropriété bien entretenue avec des charges mensuelles de 77 € et une taxe foncière de 533 €.

Montant estimé des dépenses annuelles d'énergie pour un usage standard : entre 680 € et 950 € par an. Prix moyens des énergies indexés sur l'année 2021 (abonnements compris).

Ce bien vous plaît ? Visitez-le virtuellement en 3D sur le site de Liberkeys ou contactez directement votre conseiller. Gravaud Florian, agent commercial immatriculé au RSAC de Bayonne sous le numéro 979 458 239. Référence annonce : DOM27003. Date de réalisation du diagnostic : 14/11/2025. Les honoraires sont à la charge de l'acheteur.
Voir plus

Référence: DOM27003
Bien en copropriété. Nombre de lots : 68. Charges de copropriété : 77 €.
Honoraires d'agence de 5.29% à la charge de l'acquéreur
DPE
A
B
C
D
E
F
G
GES
A
B
C
D
E
F
G

Prêt immobilier

Vous souhaitez connaître votre capacité d’emprunt et trouver le meilleur crédit immobilier ?
Réaliser une simulation gratuite

Appartement à CAMBO-LES-BAINS
Appartement à CAMBO-LES-BAINS
Appartement à CAMBO-LES-BAINS
Appartement à CAMBO-LES-BAINS
Appartement à CAMBO-LES-BAINS
Appartement à CAMBO-LES-BAINS
Appartement à CAMBO-LES-BAINS
Appartement à CAMBO-LES-BAINS
Appartement à CAMBO-LES-BAINS
Appartement à CAMBO-LES-BAINS
Appartement à CAMBO-LES-BAINS
Appartement à CAMBO-LES-BAINS
Ce site est protégé par reCAPTCHA la Politique de confidentialité et les Conditions d’utilisation de Google s’appliquent.
Obtenir un prêt immobilier au meilleur taux ?

En poursuivant votre navigation sans modifier vos paramètres, vous acceptez l'utilisation de cookies susceptibles de réaliser des statistiques de visite. Cliquez ici pour plus d'informations