Immeuble 83980

— Le Lavandou 83980 —
1 150 000 €
240 m²
10 pièces

A vendre - Immeuble - Bastide à SAINT CLAIR. - 83980 Le Lavandou

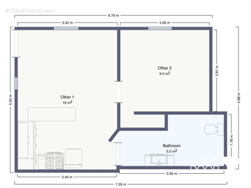
Bastide datant de 1948, divisée en plusieurs appartements, avec compteurs d'eau et électricité séparés:

L'ensemble est idéalement situé proche de la plage de Saint Clair et dans un quartier à l'abri des nuisances sonores et de la circulation routière.

Composé d'un grand appartement au rez-de-chaussée et de 3 appartements à l'étage dont 2 avec aperçu mer.

Une rénovation sera obligatoire pour une opération achat - revente à la découpe ou en un bloc;.
Un bien destiné aux marchands de biens ou pour les personnes recherchant un bien à rénover à usage d'habitation proche de la mer et des belles plages du Lavandou.

Pour plus d'informations, je vous remercie de contacter
Alain BECAUD -THE DOOR MAN - [Coordonnées masquées] - [Coordonnées masquées] Honoraires charge vendeur.
DPE : D.
Estimation du coût annuel d'énergie, montant mini : 860 € - montant maxi : 1200 €.
Les informations sur les risques auxquels ce bien est exposé sont disponibles sur le site Géorisques : https://georisques.gouv.fr. Sur ce site seront également consultables une fiche d'information sur les obligations de débroussaillement et une carte des zones soumises à cette obligation.
La présente annonce immobilière a été rédigée sous la responsabilité éditoriale de BECAUD Alain, mandataire indépendant en immobilier (sans détention de fonds), agent commercial de la SASU THE DOOR MAN, titulaire de la carte de démarchage immobilier pour le compte de la société THE DOOR MAN SASU.
Voir plus

Référence: 9305
Honoraires à la charge du vendeur.
Barème des honoraires
DPE
A
B
C
D
E
F
G
GES
A
B
C
D
E
F
G

Prêt immobilier

Vous souhaitez connaître votre capacité d’emprunt et trouver le meilleur crédit immobilier ?
Réaliser une simulation gratuite

Maison à LE LAVANDOU
Maison à LE LAVANDOU
Maison à LE LAVANDOU
Maison à LE LAVANDOU
Maison à LE LAVANDOU
Maison à LE LAVANDOU
Maison à LE LAVANDOU
Maison à LE LAVANDOU
Maison à LE LAVANDOU
Maison à LE LAVANDOU
Ce site est protégé par reCAPTCHA la Politique de confidentialité et les Conditions d’utilisation de Google s’appliquent.
Obtenir un prêt immobilier au meilleur taux ?

En poursuivant votre navigation sans modifier vos paramètres, vous acceptez l'utilisation de cookies susceptibles de réaliser des statistiques de visite. Cliquez ici pour plus d'informations