Charmant t2 d'environ 47m² avec terrasse, jardinet, garage et piscine, résidence la closerie au muy

— Le Muy 83490 —
181 000 €
46 m²
2 pièces
parkingbalcon/terrassejardinascenseurpiscine

Découvrez en exclusivité ce joli appartement T2 de plain-pied, niché dans l'une des résidences les plus appréciées du Muy : une copropriété récente et parfaitement entretenue, livrée en avril 2016.

Situé dans un environnement calme, sécurisé et très verdoyant, ce bien offre un cadre de vie idéal aussi bien pour une résidence principale que pour un pied-à-terre de vacances, ou encore un investissement locatif de qualité.

Les atouts du logement:

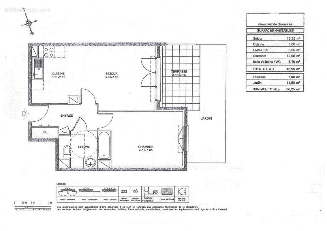
47 m² habitables parfaitement agencés

Plain-pied : aucun escalier, accès simple et confortable

Terrasse + jardinet privatif, exposés Est, profitant d'une belle lumière matinale

Grande pièce de vie avec cuisine américaine aménagée et équipée, ouverte sur la terrasse par une large baie vitrée

Chambre spacieuse, elle aussi exposée Est, donnant sur le jardinet

Salle de bain moderne avec WC et sèche serviettes.

Rangements (placard intégré)

Un vrai plus : un garage fermé

Au premier niveau du parking souterrain sécurisé, facilement accessible par ascenseur ou escalier.

La résidence La Closerie : un véritable petit havre provençal

Résidence sécurisée : portail automatique, portillon, sas d'entrée

Espaces verts méditerranéens : oliviers, fontaine, allées soignées

Belle piscine réservée aux copropriétaires, accès par badge

Ambiance calme, sereine et conviviale

Copropriété entretenue, idéale pour des séjours vacances ou une vie à l'année

Ce cadre est particulièrement adapté à une personne seule, quelqu'un recherchant la sécurité, le calme, la facilité d'entretien, tout en bénéficiant d'un environnement préservé.
Mais c'est aussi une adresse rêvée pour un pied-à-terre : jardinet, piscine, et proximité de la mer.

Localisation stratégique, distances et temps de trajet
Mer et plages

Plages de Fréjus, Saint-Raphaël : 20 km, 22 min

Sainte-Maxime : 23 km, 25 min

Golfe de Saint-Tropez (Port-Grimaud) : 27 km, 30 min

Lac et nature

Lac de Sainte-Croix / Gorges du Verdon : 62 km, 1h05
(Accès très apprécié pour les week-ends nature)

Transports

Gare TGV Les Arcs-Draguignan : 10 km, 12 min
(Paris en 4h40 environ)

Aéroport International de Nice : 73 km, 45 à 50 min
(Accès simple via A8)

Commodités proches

Commerces, supermarchés, médecins, restaurants : à moins de 5 minutes

Accès rapide A8 : 4 minutes

Pourquoi ce bien va plaire
Idéal pied-à-terre de vacances

Petit jardin, terrasse, piscine, mer à 20 minutes : le combo parfait.

Parfait pour une personne seule ou une personne âgée

Plain-pied, sécurisée, calme, jardin facile à entretenir, garage.

Excellent investissement locatif

Résidence récente, prestations prisées, forte demande sur le secteur.

Aucun travaux à prévoir

Vous arrivez, vous posez vos valises.

En résumé : un petit bijou à découvrir absolument

Un appartement lumineux, confortable, très bien exposé, avec un jardinet privé, dans une résidence élégante au charme provençal.
Et en plus : la piscine, la sécurité, le garage, et une localisation parfaite entre mer et nature.

Un bien rare dans ce secteur très demandé.
Son Prix: 181 000 euros Honoraires agence inclus.

Possibilité d'acheter, une place de parking supplémentaire.

DPE: C 107 kWh/m² par an
GES: C 20 Kg CO2/m²/an

Montant estimé des dépenses annuelles d'énergie pour un usage standard entre 260 et 410 euros Prix moyens des énergies indexés au 1er janvier 2021.

Pour visiter et vous accompagner dans votre projet, contactez Frédéric REYTER, au [Coordonnées masquées] ou, par courriel à [Coordonnées masquées]. Selon l'article L.561.5 du Code Monétaire et Financier, pour l'organisation de la visite, la présentation d'une pièce d'identité vous sera demandée. Cette annonce a été rédigée sous la responsabilité éditoriale de Frederic REYTER agissant sous le statut d'agent commercial immatriculé au RSAC DRAGUIGNAN 517789954 auprès de SAS PROPRIETES PRIVEES, au capital de 44 920 euros, ZAC LE CHÊNE FERRÉ - 44 ALLÉE DES CINQ CONTINENTS 44120 VERTOU ; SIRET 487 624 777 00040, RCS Nantes. Carte Professionnelle Transactions sur immeubles et fonds de commerce (T) et Gestion immobilière (G) n° CPI 44[Coordonnées masquées]10 388 délivrée par la CCI Nantes - Saint Nazaire. Compte séquestre n°3[Coordonnées masquées] BPA SAINT-SEBASTIEN-SUR-LOIRE (44230). Garantie GALIAN-SMABTP - 89 rue de la Boétie, 75008 Paris - n°28137 J pour 2 000 000 euros pour T et 120 000 euros pour G. Assurance responsabilité civile professionnelle par GALIAN-SMABTP n° de police 28137.J Mandat réf : 432211- Le professionnel garantit et sécurise votre projet immobilier.
Copropriété de 158 lots - dont 62 lots habitation. ().

Charges annuelles : 1187 euros.
Frederic REYTER (EI) Agent Commercial - Numéro RSAC : DRAGUIGNAN 517789954 - .
Les informations sur les risques auxquels ce bien est exposé sont disponibles sur le site Géorisques : www. georisques. gouv. fr
Voir plus

Référence: 432211FREY
Bien en copropriété. Nombre de lots : 158. Charges de copropriété : 98 €.
Honoraires à la charge du vendeur.
DPE
A
B
C
D
E
F
G
GES
A
B
C
D
E
F
G

Prêt immobilier

Vous souhaitez connaître votre capacité d’emprunt et trouver le meilleur crédit immobilier ?
Réaliser une simulation gratuite

Appartement à LE MUY
Appartement à LE MUY
Appartement à LE MUY
Appartement à LE MUY
Appartement à LE MUY
Appartement à LE MUY
Appartement à LE MUY
Appartement à LE MUY
Appartement à LE MUY
Appartement à LE MUY
Appartement à LE MUY
Appartement à LE MUY
Appartement à LE MUY
Appartement à LE MUY
Appartement à LE MUY
Ce site est protégé par reCAPTCHA la Politique de confidentialité et les Conditions d’utilisation de Google s’appliquent.
Obtenir un prêt immobilier au meilleur taux ?

En poursuivant votre navigation sans modifier vos paramètres, vous acceptez l'utilisation de cookies susceptibles de réaliser des statistiques de visite. Cliquez ici pour plus d'informations